+9 fotó
Hirdetéskód: 8933757
Referenciaszám: HZ018054-5176710
Frissítve: 1 hónapja
Budapest XVIII. kerület eladó ikerház 4 szobás: 147 millió Ft
147 millió Ft
930,4 ezer Ft/m²
158 m²
360 m²
4 szoba
Eladó ház, Budapest 18. ker.
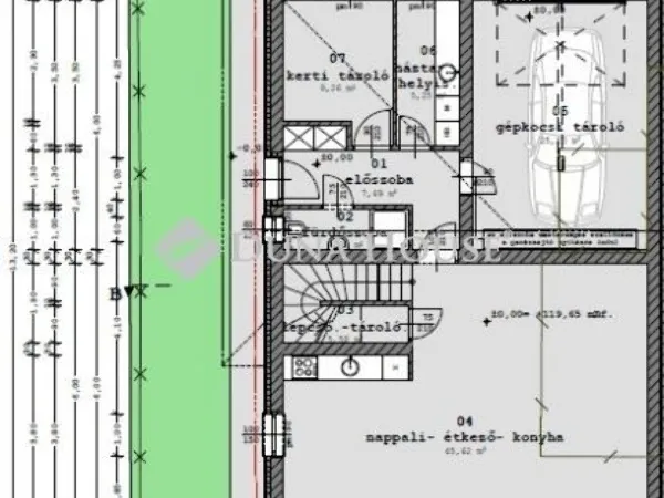
Megvételre kínálunk Budapest XVIII. kerületében, Pestszentimrén, Újpéteri telepen magas műszaki tartalommal készülő új építésű ikerházakMost épülő ikerház mindkét fele elérhető, saját, 360 m²-es leválasztott telekrésszel,saját kerttel és teljesen önálló bejárattal.Az ingatlanokhoz most ajándék 5 kw-os napelem benne van az árban!!!Az ingatlanok 158 nm hasznos alapterületűek, a mai trendnek megfelelően kiválóan alkalmas családok részére.A földszinten egy tágas, 46 m²-es amerikai konyhás nappali kapott helyet, amely közvetlenül a 18 m²-es, burkolt teraszra nyílikEzen a szinten található még egy szoba, fürdőszoba, háztartási helyiség, tároló és 25 m²-es, motoros kapuval felszerelt garázs.Az emelet három különnyíló hálószobát, gardróbot és fürdőszobát kerül kivitelezésre.Amiket a magas műszaki tartalomban benne van:modern hőszivattyús fűtési rendszer és padlófűtés minden szinten3 rétegű nyílászárók, motoros alumínium redőnnyel és szúnyoghálóvalHörmann motoros garázskapualap riasztórendszer kiépítéseburkolt terasz, térkövezett beálló és motoros nagykapuenergiatakarékos, korszerű építési megoldások5 db klíma kiállás előkészítése15 cm homlokzati dryvit hőszigetelésVárható átadás: 2026. IV. negyedévMegbízható, tapasztalt kivitelezőtől, referencia házakkal a közelben.
Tulajdonságok
Ikerház
Új építésű
Hőszivattyú
2026
A+
Vedd fel a kapcsolatot a hirdetővel

+36 1 690 09
Hitelkalkulátor
Második évtől
632 621 Ft A 13. hónaptól
7,99% 8,49%
Végig fix Futamidő: 20 év Banki visszahívás
Az OTP Bank munkatársai a neked megfelelő napszakban veszik fel veled a kapcsolatot. A becslés a hirdető által megadott adatokon alapul. A jelen tájékoztatás nem minősül ajánlattételnek és nem teljes körű, az egyes feltételek a hitelbírálat eredményétől függően változhatnak. Kérjük, a részletekről tájékozódj az OTP Bank fiókjaiban vagy az OTP Bank honlapján közzétett vonatkozó Üzletszabályzatokból és Hirdetményekből.
Vedd fel a kapcsolatot a hirdetővel

+36 1 690 09
Vedd fel a kapcsolatot a hirdetővel

+36 1 690 09
UI_KIT.CHARACTER_COUNTER__COMPONENT.ACTUAL_CHARACTER__SR_ONLY UI_KIT.CHARACTER_COUNTER__COMPONENT.MAXIMUM_CHARACTER__SR_ONLY
Hasonló eladó ingatlanok Újpéteritelep városrészben
Feltöltve: 1 éve
1
140 millió Ft 1,17 millió Ft/m²
Eladó ikerház, Budapest XVIII. kerület, Újpéteritelep
Frissítve: ma
14
133 millió Ft 760 ezer Ft/m²
Eladó családi ház, Budapest XVIII. kerület, Újpéteritelep

Frissítve: 2 napja
10
147,5 millió Ft 1,23 millió Ft/m²
Eladó ikerház, Budapest XVIII. kerület, Újpéteritelep


Fedezd fel a
hasonló házakat!Még további házak Budapest XVIII. kerület, Újpéteritelep városrészben 147 M Ft körüli értékben
Tovább a hirdetésekhez Frissítve: 14 napja
20
144,9 millió Ft 1,01 millió Ft/m²
Eladó családi ház, Budapest XVIII. kerület, Újpéteritelep

Frissítve: 21 napja
20
160 millió Ft 1,33 millió Ft/m²
Eladó családi ház, Budapest XVIII. kerület, Újpéteritelep
Frissítve: 1 hónapja
10
149,9 millió Ft 1,09 millió Ft/m²
Eladó családi ház, Budapest XVIII. kerület, Újpéteritelep
