+16 fotó
Hirdetéskód: 8923391
Referenciaszám: 3-5217
Frissítve: 11 napja
Budapest XX. kerület eladó ikerház 2 szobás: 85 millió Ft
85 millió Ft
944,4 ezer Ft/m²
90 m²
535 m²
2 szoba
XX. Kerület, Klapka utca, 90 m²-es, ikerház, 2 szobás, felújítandó állapotú
Kivételes lehetőség!
Reális áron kínálom ezt a jó állapotú, azonnal költözhető előkertes házat nagy kerttel Pesterzsébet csendes, kertárosias környezetében. Betonfödésmes, akár a tetőteret is be lehet építeni.
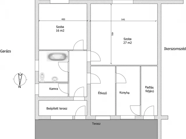
A beosztása ideális, a felső szinten akár külön bejáratú lakást is ki lehet alakítani.
A teraszról egy beépített teraszon keresztül jutunk az épületbe. Innen nyílnak a külön bejáratú szobák, a fürdő, , a kamra és az étkező, ami közvetlenül kapcsolódik a konyhához, de akár egybe is lehet nyitni.
A parkettás szobák nagy méretűek, tágas teret kínálnak a leendő lakóknak. A nagyobb szobában klíma is szolgálja a kényelmet.
A fürdőszoba ablakos, fürdőkádas, a melegvizet gázbojler biztosítja. A fürdő mellett található egy klassz kamra, amit akár külön WC-nek is át lehet alakítani.
A ház fűtését gázcirkó biztosítja.
Az épület előkertes, mellette garázs mögötte pedig nagy kert található, ami még gazdáskdásra is alkalma lehet, hiszen a teljes telekméret 535 m2.
Az ingatlannak egy tulajdonosa van, tehermentes.
Az ikerszomszéddal osztatlan közös tulajdonban van, használati megosztás készítése folyamatban, így hiteles ügyfeleknek is kínáljuk.
Érdeklődése esetén várom megtisztelő hívását akár hétvégén is.
Tulajdonságok
Ikerház
Felújítandó
Gázkazán
1980
Nem adta meg a hirdető
Nincs
Vedd fel a kapcsolatot a hirdetővel

+36 70 931 1
Hitelkalkulátor
Második évtől
365 801 Ft A 13. hónaptól
7,99%
Végig fix Futamidő: 20 év Banki visszahívás
Az OTP Bank munkatársai a neked megfelelő napszakban veszik fel veled a kapcsolatot. A becslés a hirdető által megadott adatokon alapul. A jelen tájékoztatás nem minősül ajánlattételnek és nem teljes körű, az egyes feltételek a hitelbírálat eredményétől függően változhatnak. Kérjük, a részletekről tájékozódj az OTP Bank fiókjaiban vagy az OTP Bank honlapján közzétett vonatkozó Üzletszabályzatokból és Hirdetményekből.
Vedd fel a kapcsolatot a hirdetővel

+36 70 931 1
Vedd fel a kapcsolatot a hirdetővel

+36 70 931 1
UI_KIT.CHARACTER_COUNTER__COMPONENT.ACTUAL_CHARACTER__SR_ONLY UI_KIT.CHARACTER_COUNTER__COMPONENT.MAXIMUM_CHARACTER__SR_ONLY
Hasonló eladó ingatlanok Budapest XX. kerületben
Frissítve: 7 napja
15
89,9 millió Ft 1,4 millió Ft/m²
Eladó családi ház, Budapest XX. kerület

Frissítve: ma
20
84,9 millió Ft 287,8 ezer Ft/m²
Eladó családi ház, Budapest XX. kerület

Frissítve: 7 napja
20
84,9 millió Ft 287,8 ezer Ft/m²
Eladó családi ház, Budapest XX. kerület


Fedezd fel a
hasonló házakat!Még további házak Budapest XX. kerületben 85 M Ft körüli értékben
Tovább a hirdetésekhez Frissítve: 12 napja
10
79,9 millió Ft 266,3 ezer Ft/m²
Eladó családi ház, Budapest XX. kerület
Frissítve: ma
15
89,9 millió Ft 1,4 millió Ft/m²
Eladó családi ház, Budapest XX. kerület

Frissítve: 21 napja
14
84,9 millió Ft 385,9 ezer Ft/m²
Eladó családi ház, Budapest XX. kerület

