+15 fotó
Hirdetéskód: 8983077
Referenciaszám: 394796
Feltöltve: 2 napja
Budapest XXIII. kerület eladó ikerház 5 szobás: 115 millió Ft
115 millió Ft
1,11 millió Ft/m²
104 m²
382 m²
5 szoba
Eladó ikerház Budapest, XXIII. kerület, 104nm, 115.000.000Ft - Orbánhegyen
Eladásra kínálunk egy jó állapotú ikerházat Budapest kertvárosi részén, Orbánhegyen.
Az ingatlan 104 négyzetméteres, 5 különálló szobával rendelkezik, ideális választás nagyobb családok számára.
A kertre néző kilátás minden évszakban gyönyörű, a 382 négyzetméteres kert pedig bőven teret ad kikapcsolódásra és szabadidős tevékenységekre.
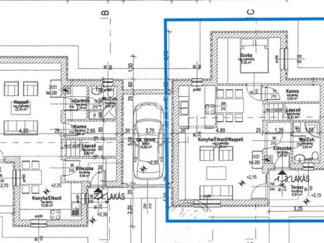
INGATLAN BEOSZTÁSA:
Földszint:
- előtér 3,23 m2,
- nappali + étkező 31,03 m2,
- konyha (szoba) 9,36 m2,
- fürdő + wc 3,63 m2,
- kamra 2,85 m2,
- terasz 6,81 m2.
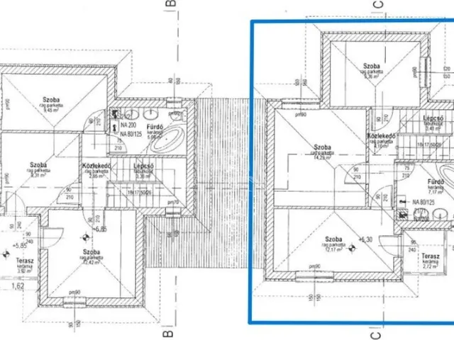
Emelet:
- szoba 9,36 m2,
- szoba 14,23 m2,
- szoba 12,17 m2,
- fürdő + wc 7,17 m2,
- közlekedő 4,1 m2,
- terasz 2,72 m2.
FELSZERELTSÉG:
- riasztó,
- fűtést gázkazán biztosítja,
- földszinten padlófűtés,
- hűtő-fűtő klíma,
- minőségi fa nyílászárók,
- elektromos kapunak kiállás rendelkezésre áll,
- földszinti teraszon kitekerős napernyő,
- gépkocsi beálló.
KÖZLEKEDÉS + környezet:
H6-os HÉV által Budapest Közvágóhíd 20 perc alatt elérhető, autóval pár perc az M0-ás autópálya. Buszok: 655-ös Volán busz (Népliget vá.), a 66-os és a 66E BKK járat (Határ út vá.). A közelben LIDL és Aldi nyújt bevásárlási lehetőséget. Iskola egy megálló távolságra.
Az ikerház kiválóan illeszkedik a környező kertvárosias hangulathoz, ideális otthona lehet a nyugalomra vágyóknak.
Befektetésnek is alkalmas, a környéken 450.000-600.000 Ft/hó + rezsi áron vannak hasonló kiadó ingatlanok, ami évente 7.000.000,- Ft bevételt is jelenthet.
Amivel segítjük az Ön ingatlanvásárlását:
- ingyenes hitelügyintézés,
- jogi háttér,
- földhivatali ügyintézés,
- energetikai tanúsítvány.
Irodánk 30 éves szakmai tapasztalattal áll ügyfelei rendelkezésére!
Várom szíves megkeresését!
Ne hagyja ki ezt a remek lehetőséget, tekintse meg ezt a csodálatos ingatlant! ...TOVÁBBI, TÖBBEZRES INGATLAN KÍNÁLAT: www.gdn-ingatlan.hu - GDN azonosító: 394796
Tulajdonságok
Ikerház
2
Jó állapotú
Gázkazán
2009
9 m²
Nem adta meg a hirdető
Vedd fel a kapcsolatot a hirdetővel
+36 20 268 3
Hitelkalkulátor
Második évtől
494 908 Ft A 13. hónaptól
7,99%
Végig fix Futamidő: 20 év Banki visszahívás
Az OTP Bank munkatársai a neked megfelelő napszakban veszik fel veled a kapcsolatot. A becslés a hirdető által megadott adatokon alapul. A jelen tájékoztatás nem minősül ajánlattételnek és nem teljes körű, az egyes feltételek a hitelbírálat eredményétől függően változhatnak. Kérjük, a részletekről tájékozódj az OTP Bank fiókjaiban vagy az OTP Bank honlapján közzétett vonatkozó Üzletszabályzatokból és Hirdetményekből.
Vedd fel a kapcsolatot a hirdetővel
+36 20 268 3
Vedd fel a kapcsolatot a hirdetővel
+36 20 268 3
UI_KIT.CHARACTER_COUNTER__COMPONENT.ACTUAL_CHARACTER__SR_ONLY UI_KIT.CHARACTER_COUNTER__COMPONENT.MAXIMUM_CHARACTER__SR_ONLY
Hasonló eladó ingatlanok Budapest XXIII. kerületben
Frissítve: 17 napja
20
115 millió Ft 653,4 ezer Ft/m²
Eladó házrész, Budapest XXIII. kerület

Frissítve: 7 napja
20
118,9 millió Ft 1,19 millió Ft/m²
Eladó családi ház, Budapest XXIII. kerület

Frissítve: 11 napja
20
120 millió Ft 674,2 ezer Ft/m²
Eladó családi ház, Budapest XXIII. kerület


Fedezd fel a
hasonló házakat!Még további házak Budapest XXIII. kerületben 115 M Ft körüli értékben
Tovább a hirdetésekhez Frissítve: 18 napja
7
115 millió Ft 460 ezer Ft/m²
Eladó családi ház, Budapest XXIII. kerület
Frissítve: 17 napja
20
115 millió Ft 653,4 ezer Ft/m²
Eladó házrész, Budapest XXIII. kerület

Frissítve: ma
20
116 millió Ft 828,6 ezer Ft/m²
Eladó ikerház, Budapest XXIII. kerület

