Hirdetéskód: 8850407
Referenciaszám: HZ079605
Frissítve: 12 napja
Dánszentmiklós eladó ikerház 3 szobás: 55 millió Ft
55 millió Ft
913 015 Ft/m² *
* A m² árat a hirdető adta meg.
60 m²
400 m²
3 szoba
Leírás
Budapest határától 50 km távolságra !
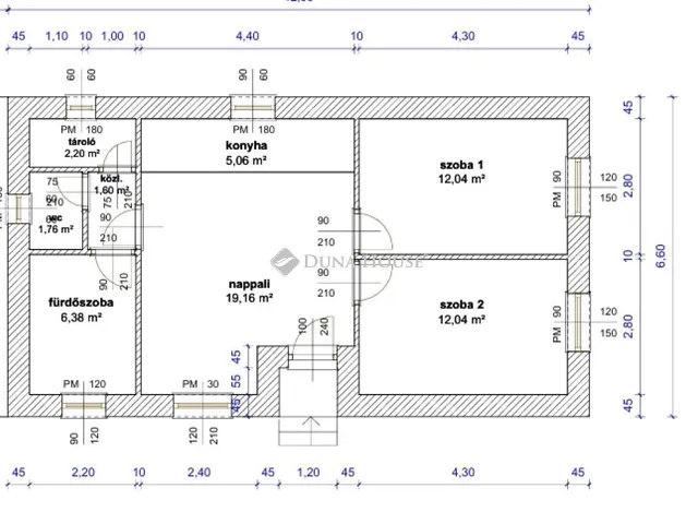
Több mint 20 éves tapasztalattal rendelkező profi kivitelezőtől kínálok megvételre Pest megyén belül , Dánszentmiklóson egy praktikus elrendezésű 60,25 nm fűtött lakótérrel rendelkező ikerház felet
.Az ingatlanok a fedett autó beállóknál csatlakoznak, így közös fal nincs az iker féllel.
Tartozik a lakáshoz 400 nm privát telek terület is .
Az ingatlan kialakítása :
-Amerikai konyhás nappali
-2 db hálószoba
-Háztartási helység
-Fürdőszoba
-Wc
-Előtér
-Nyitott terasz
-Fedett autó beálló
Műszaki leírás:
-Monolit beton sáv alapzat
-B 30 -as PTH tégla fal ( válaszfalak 10 cm PTH fal)
-15 cm polisztirol hőszigetelés
-10 cm polisztirol lábazat szigetelés
-Záró réteg : tört fehér nemes vakolat,
-aljzaton sötétbarna műgyanta lábazati vakolattal ellátva
Tető:
15*15.ös gerendázat
-2,5*15-ös szarufa
-10*15-ös ellen lécezéssel
-3*5-ös tető lécekkel ellátva
-Barna szinű tetőcseréppel fedve
A tető szigetelése 30 cm kőzetgyapottal ellátva.
Nyílászárók Fehér színű 3 rétegű műanyag ablakok
Az ingatlan fűtése Hőszivattyús fűtés padlón keresztül történő hőleadással.
Az ár tartalmaz egy darab Hűtő-Fűtő klímát.
Hideg meleg burkolatok 8000 Ft / nm árig választhatóak
Várható átadás 2026. Szeptember
Amennyiben hirdetésem felkeltette érdeklődését, várom megtisztelő hívását.
Tulajdonságok
Ikerház
Hőszivattyú
2026
Nem adta meg a hirdető
Vedd fel a kapcsolatot a hirdetővel
+36 53 999 3
Hitelkalkulátor
Második évtől
236 695 Ft A 13. hónaptól
7,99%
Végig fix Futamidő: 20 év Banki visszahívás
Az OTP Bank munkatársai a neked megfelelő napszakban veszik fel veled a kapcsolatot. A becslés a hirdető által megadott adatokon alapul. A jelen tájékoztatás nem minősül ajánlattételnek és nem teljes körű, az egyes feltételek a hitelbírálat eredményétől függően változhatnak. Kérjük, a részletekről tájékozódj az OTP Bank fiókjaiban vagy az OTP Bank honlapján közzétett vonatkozó Üzletszabályzatokból és Hirdetményekből.
Vedd fel a kapcsolatot a hirdetővel
+36 53 999 3
Vedd fel a kapcsolatot a hirdetővel
+36 53 999 3
UI_KIT.CHARACTER_COUNTER__COMPONENT.ACTUAL_CHARACTER__SR_ONLY UI_KIT.CHARACTER_COUNTER__COMPONENT.MAXIMUM_CHARACTER__SR_ONLY
Hasonló eladó ingatlanok Dánszentmiklóson
Frissítve: 12 napja
5
58,5 M Ft 740 506 Ft/m²
Eladó egyéb ház, Dánszentmiklós
Frissítve: 12 napja
5
56,9 M Ft 849 254 Ft/m²
Eladó ikerház, Dánszentmiklós

Frissítve: 12 napja
13
55 M Ft 916 667 Ft/m²
Eladó ikerház, Dánszentmiklós, Dózsa György utca


Fedezd fel a
hasonló házakat!Még további házak Dánszentmiklóson 55 M Ft körüli értékben
Tovább a hirdetésekhez Frissítve: 12 napja
5
56,9 M Ft 849 254 Ft/m²
Eladó ikerház, Dánszentmiklós

Frissítve: 12 napja
9
58,5 M Ft 750 000 Ft/m²
Eladó ikerház, Dánszentmiklós

Frissítve: ma
5
56,9 M Ft 849 254 Ft/m²
Eladó ikerház, Dánszentmiklós

