+2 fotó
Hirdetéskód: 8869555
Referenciaszám: P4795-1-0A-NA-002
Feltöltve: ma
Debrecen eladó ikerház 4 szobás: 125 millió Ft
125 millió Ft
1 016 260 Ft/m²
123 m²
150 m²
4 szoba
Hatvan utcai kertben, újépítésű ikerházi lakások eladóak !
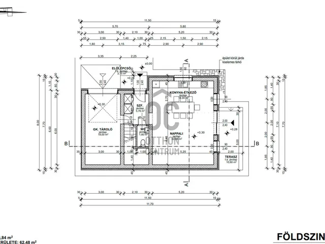
Ez az ingatlan az A 2 - es lakás, 123,26 m2 a hasznos alapterülete, földszint + emelet kialakítású + terasz + garázs .
Fszt : konyha - étkező - nappali, wc , lépcső emeletre + garázs helyiségekből áll.
Emelet : 3 szoba , az egyikhez gardrob szoba is tartozik, fürdő, háztartási helyiségekből áll
Projekt bemutatása
Debrecen csendes lakóövezeti részén, földszint + emelt kialakítású ikerházi lakások eladóak.
Földszint helyiségei : konyha - étkező - nappali, + terasz + garázs
Emelet helyiségei : 3 szoba, fürdő, háztartási helyiség + az egyik szobához gardrob szoba.
Az ingatlanok korszerű műszaki megoldásokkal, időtálló technológiával épülnek.
Főbb műszaki jellemzők : Porotherm NF 30 - as tégla falazat + 15 cm homlokzati szigetelés, 3 rtg hő és hangszigetelt nyílászárók, monolit vb födém, tetőszerkezet cserépfedéssel, IMMERGAS 24 Kw - os kondenzációs kazán biztosítja a fűtést, és a melegvizet, a fűtés : padlófűtés hőleadóval megoldott, szekcionált garázsajtó 2 db távirányítóval, stb...
A korszerű gépészet, modern elektromos hálózat és az igényes belső műszaki tartalom hozzájárulnak az élhető, modern lakás megvalósításához.
Várható átadás : 2026 nyara
ha felkeltettem az érdeklődését, kérem hívjon bizalommal !
Tulajdonságok
Ikerház
Új építésű
Gázkazán
2026
13,8 m²
Nem adta meg a hirdető
Vedd fel a kapcsolatot a hirdetővel
+36 70 465 6
Hitelkalkulátor
Második évtől
537 943 Ft A 13. hónaptól
7,99% 8,49%
Végig fix Futamidő: 20 év Banki visszahívás
Az OTP Bank munkatársai a neked megfelelő napszakban veszik fel veled a kapcsolatot. A becslés a hirdető által megadott adatokon alapul. A jelen tájékoztatás nem minősül ajánlattételnek és nem teljes körű, az egyes feltételek a hitelbírálat eredményétől függően változhatnak. Kérjük, a részletekről tájékozódj az OTP Bank fiókjaiban vagy az OTP Bank honlapján közzétett vonatkozó Üzletszabályzatokból és Hirdetményekből.
Vedd fel a kapcsolatot a hirdetővel
+36 70 465 6
Vedd fel a kapcsolatot a hirdetővel
+36 70 465 6
UI_KIT.CHARACTER_COUNTER__COMPONENT.REMAINING_SPACE__SR_ONLYUI_KIT.CHARACTER_COUNTER__COMPONENT.MAXIMUM_CHARACTER__SR_ONLY
Hasonló eladó ingatlanok Hatvan utcai kert városrészben
Frissítve: ma
9
134,99 M Ft 1 153 761 Ft/m²
Eladó sorház, Debrecen, Hatvan utcai kert

Frissítve: 25 napja
8
129,9 M Ft 1 110 256 Ft/m²
Eladó sorház, Debrecen, Hatvan utcai kert

Frissítve: 22 napja
14
119,99 M Ft 1 025 556 Ft/m²
Eladó sorház, Debrecen, Hatvan utcai kert


Fedezd fel a
hasonló házakat!Még további házak Debrecen, Hatvan utcai kert városrészben 125 M Ft körüli értékben
Tovább a hirdetésekhez Frissítve: 21 napja
14
119,99 M Ft 1 025 556 Ft/m²
Eladó sorház, Debrecen, Hatvan utcai kert
Frissítve: ma
5
129,9 M Ft 1 110 256 Ft/m²
Eladó sorház, Debrecen, Hatvan utcai kert

Frissítve: ma
9
134,99 M Ft 1 153 761 Ft/m²
Eladó sorház, Debrecen, Hatvan utcai kert

