+5 fotó
Hirdetéskód: 8988750
Referenciaszám: 5237
Feltöltve: ma
Érd eladó ikerház 5 szobás: 159 millió Ft
159 millió Ft
868,9 ezer Ft/m²
183 m²
422 m²
5 szoba
Kód: 5237 Prémium kategória, magas műszaki tartalom, N+4 szoba, 3 fürdő, garázs, hatalmas teraszok
Hivatkozzon erre, kód: 5237
- PRÉMIUM KATEGÓRIA
- ÚJ ÉPÍTÉSŰ IKERHÁZI LAKÁS
- IGÉNYES KIVITELEZÉS, EMELT SZINTŰ MŰSZAKI
- NAPPALI + 4 SZOBA, 3 FÜRDŐSZOBA, NAGY TERASZOK, SAJÁT KERT, 1 GK-S GARÁZS
- HŐSZIVATTYÚ PADLÓFŰTÉSSEL
Érdliget zöldövezeti részén, csendes környezetben kb. 422m2 saját kerttel rendelkező belső kétszintes, nappali + 4 szobás, 3 fürdőszobás + 1 gk-s garázs, összesen 183.13m2-es (teraszok felével) új építésű ikerházi lakás (1-es épület) leköthető igény szerinti befejezéssel.
Várható átadás: 2027. tavasz.
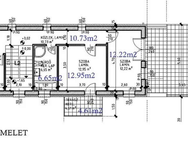
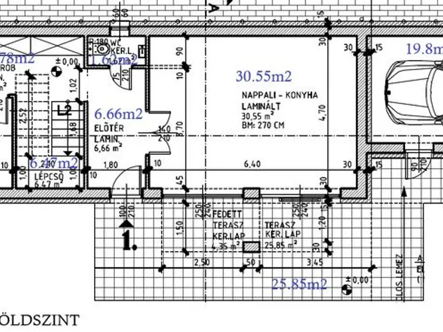
Az ingatlan szintenkénti felosztása a kövtkező:
Földszint (89.5m2 + terasz 25.85m2): előtér (6.66m2), nappali - konyha - étkező (30.55m2), wc (1.62m2), lépcső (6.47m2), gardrób (6.78m2), fürdőszoba (5.58m2), szoba (12.04m2), garázs (19.8m2).
Emelet (60.17m2 + 2 terasz 4.61m2 és 36.46m2): közlekedő (10.73m2), mosókonyha (2.7m2), 2 fürdőszoba (2.88m2, 6.65m2), 3 szoba (12.04m2, 12.95m2, 12.22m2).
Szerkezeti leírás: Beton alap. 30-as tégla főfalak + 10cm EPS hőszigetelés, 5cm lábazati szigetelés. 10-es tégla válaszfalak. A külső nyílászárók műanyag szerkezetűek, 3 rétegű 5 légkamrás üvegezéssel ellátva, redőnytokkal (kivéve fürdők és mosókonyha) és szúnyoghálókkal ellátva. A belső nyílászárók dekorfóliás ajtók. Vasbeton födém. Lapostető 20cm szigeteléssel + pvc vízszigetelés.
Műszaki: igény szerinti burkolatok - hideg burkolatok 7000Ft / m2 árig, meleg burkolatok 5000Ft / m2 árig, terasz burkolat 8000Ft / m2 árig, a beltéri ajtók 100.000Ft / db áron választhatók, rejtett tartályos geberit wc, elektromos nagykapu, elektromos garázsajtó, riasztó előkészítés.
Fűtés: Az ingatlan fűtését 14Kw-os hőszivattyú biztosítja, minden helyiségben padlófűtésen keresztül, illetve a fürdőkben felszerelésre kerül törülközőszárítós radiátor is.
Parkolás: 1 gépkocsi számára alkalmas garázsban lehetséges, valamint saját udvaron belül fedetlen-felszíni beálló áll rendelkezésre.
Megközelíthetőség és infrastruktúra: az ingatlan tömegközlekedéstől kiesőbb területen helyezkedik el, ezért legfőképp autóval rendelkező ügyfeleknek ajánljuk. Közintézmények, bevásárlási lehetőségek stb. hamar elérhetők!
További hasonló ingatlanok találhatók még a kínálatunkban!
Szüksége van hitelre? SEGÍTÜNK!
Bankfüggetlen hitel tanácsadónk díjmentesen áll az Ön rendelkezésére! Keressen bizalommal!
A hirdetésben szereplő adatok, információk, képek, alaprajzok stb... tájékoztató jellegűek! Irodánk az esetleges elírásokért felelősséget nem tud vállalni!
Tájékoztatjuk a Tisztelt Érdeklődőket, hogy az ingatlan hirdetésében szereplő telefonszám felhívásával Önök hozzájárulnak személyes adataik (név, telefonszám), a hirdetést feladó -Otthonplusz.hu Kft. - által a bizalmas kezeléshez és nyilvántartáshoz.
Tulajdonságok
Ikerház
2
Új építésű
Hőszivattyú
2026
Nem adta meg a hirdető
Vedd fel a kapcsolatot a hirdetővel
Otthon Plusz Ingatlaniroda Az iroda összes hirdetése
+36 20 582 9
Hitelkalkulátor
Második évtől
684 264 Ft A 13. hónaptól
7,99% 8,49%
Végig fix Futamidő: 20 év Banki visszahívás
Az OTP Bank munkatársai a neked megfelelő napszakban veszik fel veled a kapcsolatot. A becslés a hirdető által megadott adatokon alapul. A jelen tájékoztatás nem minősül ajánlattételnek és nem teljes körű, az egyes feltételek a hitelbírálat eredményétől függően változhatnak. Kérjük, a részletekről tájékozódj az OTP Bank fiókjaiban vagy az OTP Bank honlapján közzétett vonatkozó Üzletszabályzatokból és Hirdetményekből.
Vedd fel a kapcsolatot a hirdetővel
Otthon Plusz Ingatlaniroda Az iroda összes hirdetése
+36 20 582 9
Vedd fel a kapcsolatot a hirdetővel
Otthon Plusz Ingatlaniroda Az iroda összes hirdetése
+36 20 582 9
UI_KIT.CHARACTER_COUNTER__COMPONENT.ACTUAL_CHARACTER__SR_ONLY UI_KIT.CHARACTER_COUNTER__COMPONENT.MAXIMUM_CHARACTER__SR_ONLY
Hasonló eladó ingatlanok Érden
Frissítve: 7 napja
16
149 millió Ft 1,08 millió Ft/m²
Eladó ikerház, Érd
Frissítve: ma
20
160 millió Ft 640 ezer Ft/m²
Eladó családi ház, Érd

Frissítve: ma
10
169 millió Ft 281,7 ezer Ft/m²
Eladó családi ház, Érd


Fedezd fel a
hasonló házakat!Még további házak Érden 159 M Ft körüli értékben
Tovább a hirdetésekhez Frissítve: 7 napja
9
149 millió Ft 827,8 ezer Ft/m²
Eladó ikerház, Érd, Ligetszépe út

Frissítve: 7 napja
3
145 millió Ft 1,1 millió Ft/m²
Eladó családi ház, Érd

Frissítve: 7 napja
9
149 millió Ft 827,8 ezer Ft/m²
Eladó családi ház, Érd

