+5 fotó
Hirdetéskód: 8988806
Referenciaszám: 5238
Feltöltve: ma
Érd eladó ikerház 5 szobás: 179 millió Ft
179 millió Ft
972,8 ezer Ft/m²
184 m²
622 m²
5 szoba
Kód: 5238 Prémium kategória, új építés, magas műszaki, N+4 szoba, 2 fürdő, garázs, hatalmas teraszok
Hivatkozzon erre, kód: 5238
- PRÉMIUM KATEGÓRIA
- ÚJ ÉPÍTÉSŰ IKERHÁZI LAKÁS
- IGÉNYES KIVITELEZÉS, EMELT SZINTŰ MŰSZAKI
- NAPPALI + 4 SZOBA, 2 FÜRDŐSZOBA, NAGY TERASZOK, SAJÁT KERT, 1 GK-S GARÁZS
- HŐSZIVATTYÚ PADLÓFŰTÉSSEL
Érdliget zöldövezeti részén, csendes környezetben kb. 622m2 saját kerttel rendelkező belső kétszintes, nappali + 4 szobás, 2 fürdőszobás + 1 gk-s garázs, összesen 184.46m2-es (teraszok felével) új építésű ikerházi lakás (2-es épület) leköthető igény szerinti befejezéssel.
Várható átadás: 2027. tavasz.
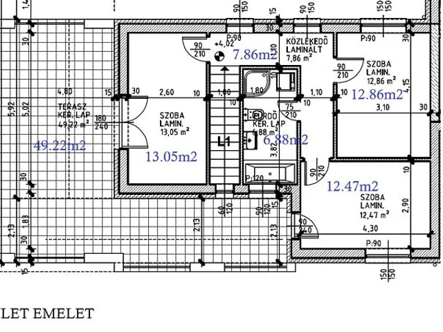
Az ingatlan szintenkénti felosztása a kövtkező:
Földszint (93.76m2 + terasz 25.95m2): előtér (5.48m2), nappali - konyha - étkező (32.56m2), közlekedő (11.97m2), kamra (1m2), wc (1.28m2), fürdőszoba (4.68m2), gépészet (0.99m2), lépcső (4.48m2), szoba (11.57m2), garázs (17.83m2), tároló (1.92m2).
Emelet (53.12m2 + terasz 49.22m2): közlekedő (7.86m2), fürdőszoba + wc (6.88m2), 3 szoba (13.05m2, 12.86m2, 12.47m2).
Szerkezeti leírás: Beton alap. 30-as tégla főfalak + 10cm EPS hőszigetelés, 5cm lábazati szigetelés. 10-es tégla válaszfalak. A külső nyílászárók műanyag szerkezetűek, 3 rétegű 5 légkamrás üvegezéssel ellátva, redőnytokkal (kivéve fürdők és mosókonyha) és szúnyoghálókkal ellátva. A belső nyílászárók dekorfóliás ajtók. Vasbeton födém. Lapostető 20cm szigeteléssel + pvc vízszigetelés.
Műszaki: igény szerinti burkolatok - hideg burkolatok 7000Ft / m2 árig, meleg burkolatok 5000Ft / m2 árig, terasz burkolat 8000Ft / m2 árig, a beltéri ajtók 100.000Ft / db áron választhatók, rejtett tartályos geberit wc, elektromos nagykapu, elektromos garázsajtó, riasztó előkészítés.
Fűtés: Az ingatlan fűtését 14Kw-os hőszivattyú biztosítja, minden helyiségben padlófűtésen keresztül, illetve a fürdőkben felszerelésre kerül törülközőszárítós radiátor is.
Parkolás: 1 gépkocsi számára alkalmas garázsban lehetséges, valamint saját udvaron belül fedetlen-felszíni beálló áll rendelkezésre.
Megközelíthetőség és infrastruktúra: az ingatlan tömegközlekedéstől kiesőbb területen helyezkedik el, ezért legfőképp autóval rendelkező ügyfeleknek ajánljuk. Közintézmények, bevásárlási lehetőségek stb. hamar elérhetők!
További hasonló ingatlanok találhatók még a kínálatunkban!
Szüksége van hitelre? SEGÍTÜNK!
Bankfüggetlen hitel tanácsadónk díjmentesen áll az Ön rendelkezésére! Keressen bizalommal!
A hirdetésben szereplő adatok, információk, képek, alaprajzok stb... tájékoztató jellegűek! Irodánk az esetleges elírásokért felelősséget nem tud vállalni!
Tájékoztatjuk a Tisztelt Érdeklődőket, hogy az ingatlan hirdetésében szereplő telefonszám felhívásával Önök hozzájárulnak személyes adataik (név, telefonszám), a hirdetést feladó -Otthonplusz.hu Kft. - által a bizalmas kezeléshez és nyilvántartáshoz.
Tulajdonságok
Ikerház
2
Új építésű
Hőszivattyú
2026
49 m²
Nem adta meg a hirdető
Vedd fel a kapcsolatot a hirdetővel
Otthon Plusz Ingatlaniroda Az iroda összes hirdetése
+36 20 582 9
Hitelkalkulátor
Második évtől
770 334 Ft A 13. hónaptól
7,99% 8,49%
Végig fix Futamidő: 20 év Banki visszahívás
Az OTP Bank munkatársai a neked megfelelő napszakban veszik fel veled a kapcsolatot. A becslés a hirdető által megadott adatokon alapul. A jelen tájékoztatás nem minősül ajánlattételnek és nem teljes körű, az egyes feltételek a hitelbírálat eredményétől függően változhatnak. Kérjük, a részletekről tájékozódj az OTP Bank fiókjaiban vagy az OTP Bank honlapján közzétett vonatkozó Üzletszabályzatokból és Hirdetményekből.
Vedd fel a kapcsolatot a hirdetővel
Otthon Plusz Ingatlaniroda Az iroda összes hirdetése
+36 20 582 9
Vedd fel a kapcsolatot a hirdetővel
Otthon Plusz Ingatlaniroda Az iroda összes hirdetése
+36 20 582 9
UI_KIT.CHARACTER_COUNTER__COMPONENT.ACTUAL_CHARACTER__SR_ONLY UI_KIT.CHARACTER_COUNTER__COMPONENT.MAXIMUM_CHARACTER__SR_ONLY
Hasonló eladó ingatlanok Érden
Frissítve: 4 napja
20
179,9 millió Ft 550,2 ezer Ft/m²
Eladó családi ház, Érd

Frissítve: 7 napja
10
169 millió Ft 281,7 ezer Ft/m²
Eladó családi ház, Érd, Tárnoki út

Frissítve: ma
10
169 millió Ft 281,7 ezer Ft/m²
Eladó családi ház, Érd


Fedezd fel a
hasonló házakat!Még további házak Érden 179 M Ft körüli értékben
Tovább a hirdetésekhez Frissítve: 4 napja
19
185 millió Ft 440,5 ezer Ft/m²
Eladó családi ház, Érd
Frissítve: 7 napja
20
165 millió Ft 863,9 ezer Ft/m²
Eladó családi ház, Érd, Asztalos utca

Frissítve: 5 napja
20
164,9 millió Ft 1,04 millió Ft/m²
Eladó családi ház, Érd
