

 +4 fotó 
Hirdetéskód: 8768176
 Frissítve: 1 napja 
Erdőkertes eladó ikerház 5 szobás: 92,5 millió Ft
 92,5 millió Ft 
 825 893 Ft/m² 
 112 m²  
 584 m²  
 5 szoba 
Erdőkertesen ikerház fél eladó!!!
 Új építésű ingatlanokra vonatkozó kedvezmények igénybe vehetők!!! /CSOK, támogatott hitel, illeték kedvezmény/.
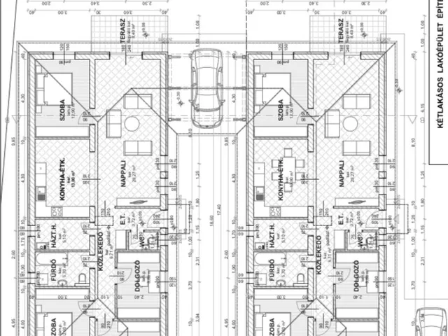
2.ház!!! /Alaprajzon a bal oldali/
Erdőkertesen  1.168 nm telekre épülő  egyszintes fedett kocsibeállóval érintkező amerikai konyhás-nappalis+ 4 szobás  ikerház eladó!!!
A ház nettó: 112,07 nm
Terasz: 8,40 nm
Telek: 584 nm
Parkolás:  zárd udvaron belül
Az ingatlan műszaki tartalma:
-30 pth tégla
-10 cm  grafitos dryvit szigetelés
- E gerenda,,  beton födém
-tető beton cserép, antracit színben 
-5 légkamrás, 3 rétegű hőszigetelt nyílászáró
Fűtés: 
-hőszivattyú
-padlófűtés
-fürdőszobában törölköző szárítós radiátor 
-klíma kiállás
Műszaki tartalom tartalmazza a szanitereket, beltéri ajtókat, burkolatokat.
Az ingatlan elosztása:
előszoba  3,72 nm
wc 1,75 nm
közlekedő 6,71 nm
nappali 29,27 nm
konyha-étkező 13,80 nm
szoba 12,90 nm
házt.helyiség 5,10 nm
fürdőszoba 5,70 nm
szoba 12,00 nm
szoba 12,24 nm
dolgozó 8,68 nm
terasz 8,40 nm
Infrastruktúrája:található:
Csendes utcában, de közel a buszmegállóhoz, a vonat kb. 15 percre található az ingatlantól. 
 
Tulajdonságok
Ikerház
1
Új építésű
Hőszivattyú
2025
8,4 m²
Nem adta meg a hirdető
Vedd fel a kapcsolatot a hirdetővel
 Bene Kriszti  Az iroda összes hirdetése 
 +36 20 231 6 
Hitelkalkulátor
 Második évtől 
 398 078 Ft  A 13. hónaptól 
 7,99%  8,49% 
 Végig fix  Futamidő: 20 év Banki visszahívás
Az OTP Bank munkatársai a neked megfelelő napszakban veszik fel veled a kapcsolatot. A becslés a hirdető által megadott adatokon alapul. A jelen tájékoztatás nem minősül ajánlattételnek és nem teljes körű, az egyes feltételek a hitelbírálat eredményétől függően változhatnak. Kérjük, a részletekről tájékozódj az OTP Bank fiókjaiban vagy az OTP Bank honlapján közzétett vonatkozó Üzletszabályzatokból és Hirdetményekből. 
Vedd fel a kapcsolatot a hirdetővel
 Bene Kriszti  Az iroda összes hirdetése 
 +36 20 231 6 
Vedd fel a kapcsolatot a hirdetővel
 Bene Kriszti  Az iroda összes hirdetése 
 +36 20 231 6 
UI_KIT.CHARACTER_COUNTER__COMPONENT.REMAINING_SPACE__SR_ONLYUI_KIT.CHARACTER_COUNTER__COMPONENT.MAXIMUM_CHARACTER__SR_ONLY
Hasonló eladó ingatlanok Erdőkertesen
 Frissítve: 3 napja 

 6 
 95 M Ft  1 010 638 Ft/m² 
 Eladó családi ház, Erdőkertes 

 Frissítve: 6 napja 

 10 
 100 M Ft  555 556 Ft/m² 
 Eladó családi ház, Erdőkertes 

 Frissítve: 11 napja 

 5 
 85 M Ft  867 347 Ft/m² 
 Eladó családi ház, Erdőkertes 


Fedezd fel a 
hasonló házakat!Még további házak Erdőkertesen 92,5 M Ft körüli értékben
 Tovább a hirdetésekhez  Frissítve: 3 napja 

 19 
 95 M Ft  1 043 956 Ft/m² 
 Eladó családi ház, Erdőkertes 
 Frissítve: 3 napja 

 19 
 95 M Ft  1 043 956 Ft/m² 
 Eladó családi ház, Erdőkertes 
 Frissítve: 20 napja 

 20 
 91,9 M Ft  464 141 Ft/m² 
 Eladó családi ház, Erdőkertes 


Töltsd fel hirdetésed ingyenesen!
Egyszerű 
