Hirdetéskód: 8901846
Referenciaszám: 24835
Frissítve: 7 napja
Göd eladó ikerház 5 szobás: 165,9 millió Ft
165,9 millió Ft
999 398 Ft/m²
166 m²
744 m²
5 szoba
Leírás
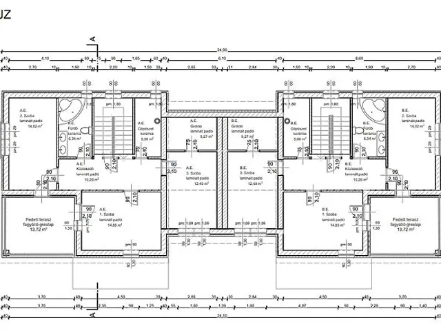
Alsógöd kertvárosában kínálunk eladásra két újépítésű, 166 m²-es családi házat, amelyhez 744 m²-es, külön elkerített kert tartozik.
A két lakóegység egy telken belül helyezkedik el, a megközelítés közös használatú magánúton történik, a házak ettől függetlenül önálló bejárattal és külön garázzsal rendelkeznek.
Az épület 30 cm-es téglafalazattal készül, 10 cm vastag külső dryvit hőszigeteléssel. A tető betoncserép fedést kap.
Az ingatlan korszerű műszaki tartalommal épül, a fűtést hőszivattyús rendszer biztosítja, a hőleadás padlófűtéssel történik. Az egész éves komfortot tovább növeli a 2 db inverteres klímaberendezés, melyek a vételár részét képezik, így az üzemeltetés energiatakarékos és kényelmes.
A külső nyílászárók műanyag szerkezetűek, hőszigetelő üvegezéssel kerülnek beépítésre, hozzájárulva az alacsony fenntartási költségekhez.
A lakótér tágas, jól átgondolt elrendezésű, kifejezetten családi életre tervezve.
Elosztása:
Földszint: Amerikai konyhás nappali, hálószoba, fürdőszoba, WC, garázs.
Emelet: 3 db Hálószoba, fürdőszoba, gépészeti helyiség és egy fedett terasz.
Az újépítés előnye, hogy nem igényel felújítást, azonnal költözhető állapotban van. A 744 m²-es, leválasztott kert valóban saját használatú, alkalmas pihenésre, gyerekeknek, kerti programokra vagy akár további fejlesztésekre is.
Várható átadás: 2026.December-2027.Január
Jelen esetben foglalózás után, hideg meleg burkolatok, beltéri nyílászárók, szaniterek választhatóak melyek a meghirdetett ár részét képezik a belső műszaki tartalom szerint.
Megtekintés érdekében vagy felmerülő kérdés esetén keresse irodánkat.
A hirdetésben szereplő adatok tájékoztató jellegűek.
Az ingatlan hitelre is megvásárolható. Bankfüggetlen tanácsadóink, az ország összes pénzintézete közül gyorsan és gördülékenyen találja meg az Önnek legmegfelelőbb konstrukciót, egyedi kedvezményekkel. A hitel és az ingatlan közvetítés vevőink részére díjmentes.
Tulajdonságok
Ikerház
2
Új építésű
Hőszivattyú
2026
14 m²
Nem adta meg a hirdető
Vedd fel a kapcsolatot a hirdetővel
+36 30 109 6
Hitelkalkulátor
Második évtől
713 958 Ft A 13. hónaptól
7,99% 8,49%
Végig fix Futamidő: 20 év Banki visszahívás
Az OTP Bank munkatársai a neked megfelelő napszakban veszik fel veled a kapcsolatot. A becslés a hirdető által megadott adatokon alapul. A jelen tájékoztatás nem minősül ajánlattételnek és nem teljes körű, az egyes feltételek a hitelbírálat eredményétől függően változhatnak. Kérjük, a részletekről tájékozódj az OTP Bank fiókjaiban vagy az OTP Bank honlapján közzétett vonatkozó Üzletszabályzatokból és Hirdetményekből.
Vedd fel a kapcsolatot a hirdetővel
+36 30 109 6
Vedd fel a kapcsolatot a hirdetővel
+36 30 109 6
UI_KIT.CHARACTER_COUNTER__COMPONENT.ACTUAL_CHARACTER__SR_ONLY UI_KIT.CHARACTER_COUNTER__COMPONENT.MAXIMUM_CHARACTER__SR_ONLY
Hasonló eladó ingatlanok Gödön
Frissítve: 7 napja
20
179 M Ft 596 667 Ft/m²
Eladó családi ház, Göd

Frissítve: ma
20
179,9 M Ft 817 727 Ft/m²
Eladó családi ház, Göd

Frissítve: ma
20
179,9 M Ft 817 727 Ft/m²
Eladó családi ház, Göd


Fedezd fel a
hasonló házakat!Még további házak Gödön 165,9 M Ft körüli értékben
Tovább a hirdetésekhez Frissítve: 7 napja
20
149,9 M Ft 908 485 Ft/m²
Eladó ikerház, Göd

Frissítve: 6 napja
20
179,9 M Ft 817 727 Ft/m²
Eladó családi ház, Göd

Frissítve: 7 napja
20
179,9 M Ft 817 727 Ft/m²
Eladó családi ház, Göd


