+3 fotó
Hirdetéskód: 8789906
Frissítve: 2 hónapja
Győr eladó ikerház 5 szobás: 101,9 millió Ft
101,9 millió Ft
789,9 ezer Ft/m²
129 m²
650 m²
5 szoba
Leírás
ÚJ ÉPÍTÉSŰ IKERHÁZ, TETŐTÉRREL RENDELKEZŐ LAKÁSA GYŐRSZENTIVÁNON -CSOK és KEDVEZMÉNYES HITEL LEHETŐSÉGGEL ELADÓ!
Az 650 nm-es telken minőségi anyagfelhasználással épülő, igényes tervezésű két lakóegység kerül kialakításra, önálló kis kertekkel, ingatlanonként kettő-kettő gépkocsi beállóval.
Az ingatlanok várható műszaki átadása 2026 IV. negyedév
Gondos tervezés, kiemelkedő műszaki tartalom, I. osztályú minőség, és a vevők igényeire szabható belső kialakítás jellemzik a lakásokat.
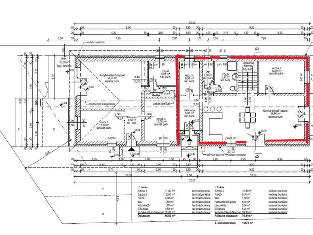
Az L2-es tetőtérrel rendelkező lakás hasznos alapterülete összesen: 129,28 m2
Földszint:
Előszoba Kerámia 6,27 m2
Szoba 1 Laminált parketta 12,90 m2
Konyha+ Étkező+ Nappali Kerámia 40,23 m2
WC Kerámia 1,80 m2
Fürdő Kerámia 6,30 m2
Háztartási helyiség Kerámia 6,08 m2
Lépcsőház Kerámia 5,94 m2
Földszint hasznos nettó alapterülete: 79,52 m2
Terasz Fagyálló kerámia 10,00 m2
Tetőtér:
Szoba 2 Laminált parketta 8,64 m2
Szoba 3 Laminált parketta 13,53 m2
Szoba 4 Laminált parketta 12,17 m2
Fürdő Kerámia 7,92 m2
Közlekedő Kerámia 2,64 m2
Lépcsőház Kerámia 4,86 m2
Tetőtér hasznos nettó alapterülete: 49,76 m2
A jól átgondolt tervezésnek köszönhetően az emeleti részen teljesen elkülönül a családi privát szféra a földszinti központi élettértől.
Műszaki jellemzők:
- 30 cm vastag Porotherm tégla tartófalak, 15 cm Austrotherm
hőszigeteléssel,
- Terrán tetőcserép, antracit színben,
- DRYVIT homlokzati vakolat-capuccino színben,
- DRYVIT homlokzati vakolat-sötétbarna színben,
- hőszivattyú padlófűtés,
- külső nyílászárók 3 rétegű hőszigetelt műanyag szerkezetűek, külső
oldaluk színezett,
- tereprendezett udvar,
- belső lépcsője acél tartószerkezetű és keményfa járólapos kivitelű,
- VELUX tetőtéri ablakok
Emelt színtű fűtéskész ára: 101.900.000 Ft.- 5% Áfa tartalommal, mely tartalmazza a telekhányadot is.
Igény esetén kulcsrakész befejezésre is van lehetőség!
További kérdés esetén állok rendelkezésére!
Tulajdonságok
Ikerház
2
Új építésű
Hőszivattyú
2026
Nem adta meg a hirdető
Vedd fel a kapcsolatot a hirdetővel
Markó Angéla E.V Az iroda összes hirdetése
+36 20 272 2
Hitelkalkulátor
Második évtől
438 531 Ft A 13. hónaptól
7,99% 8,49%
Végig fix Futamidő: 20 év Banki visszahívás
Az OTP Bank munkatársai a neked megfelelő napszakban veszik fel veled a kapcsolatot. A becslés a hirdető által megadott adatokon alapul. A jelen tájékoztatás nem minősül ajánlattételnek és nem teljes körű, az egyes feltételek a hitelbírálat eredményétől függően változhatnak. Kérjük, a részletekről tájékozódj az OTP Bank fiókjaiban vagy az OTP Bank honlapján közzétett vonatkozó Üzletszabályzatokból és Hirdetményekből.
Vedd fel a kapcsolatot a hirdetővel
Markó Angéla E.V Az iroda összes hirdetése
+36 20 272 2
Vedd fel a kapcsolatot a hirdetővel
Markó Angéla E.V Az iroda összes hirdetése
+36 20 272 2
UI_KIT.CHARACTER_COUNTER__COMPONENT.ACTUAL_CHARACTER__SR_ONLY UI_KIT.CHARACTER_COUNTER__COMPONENT.MAXIMUM_CHARACTER__SR_ONLY
Hasonló eladó ingatlanok Győrszentiván városrészben
Frissítve: 15 napja
15
93,6 millió Ft 520 ezer Ft/m²
Eladó családi ház, Győr, Győrszentiván

Frissítve: 3 hónapja
1
105 millió Ft 525 ezer Ft/m²
Eladó családi ház, Győr, Győrszentiván
Feltöltve: 2 hónapja
1
92,7 millió Ft 955,7 ezer Ft/m²
Eladó sorház, Győr, Győrszentiván

Fedezd fel a
hasonló házakat!Még további házak Győrben 101,9 M Ft körüli értékben
Tovább a hirdetésekhez Frissítve: 6 napja
20
105 millió Ft 700 ezer Ft/m²
Eladó családi ház, Győr, Győrszentiván

Frissítve: 8 napja
14
105 millió Ft 905,2 ezer Ft/m²
Eladó családi ház, Győr, Győrszentiván

Frissítve: 9 napja
20
97,5 millió Ft 780 ezer Ft/m²
Eladó családi ház, Győr, Győrszentiván

