Hirdetéskód: 8970170
Feltöltve: 3 napja
Hajdúsámson eladó ikerház 4 szobás: 70 millió Ft
70 millió Ft
642 202 Ft/m²
109 m²
400 m²
4 szoba
Ezt nem áprilisi tréfa!
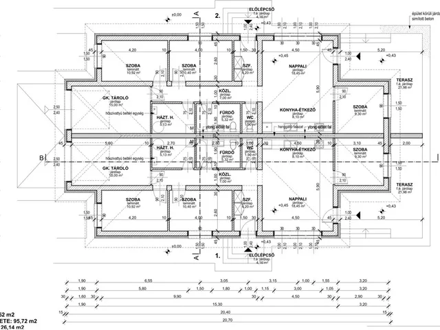
Hajdúsámson-Sámsonkert városrészén, a Dombos utcán, újonnan épülő, remek elrendezésű, 3 hálószoba + amerikai-konyha nappalis, garázzsal rendelkező, téglaépítésű ikerház 400nm-es telekhányaddal eladó.
Az ingatlan Porotherm 30-as téglából, 15 cm-es homlokzat szigeteléssel, 25 cm mennyezeti és 12 cm aljzatszigeteléssel készül.
- 121,9/109 nm
- nappali+3 szoba
- garázs
- 5 légkamrás, 3 rétegű nyílászárók kerülnek beépítésre
- tervezett fűtése hőszivattyúval történik padlófűtéssel,
- inverteres légkondicionáló
- 21,98 nm-es terasz
- burkolat választási lehetőség, 6000.-/nm
Tervezett átadás 1 éven belül!
A feltüntetett vételár tartalmazza a telekhányad árát is!
Akár már 20% önerővel foglalható!
Jelenleg épülő referencia házak megtekinthetőek!
Babaváró, 3%-os hitel igényelhető, melynek ügyintézése ingyenes!
Ár: 70.000.000.-
Érd: 06-30-9358-700
Tulajdonságok
Ikerház
1
Új építésű
Hőszivattyú
2027
22 m²
A
Vedd fel a kapcsolatot a hirdetővel
Karacs Ildikó Az iroda összes hirdetése
+36 30 935 8
Hitelkalkulátor
Második évtől
301 248 Ft A 13. hónaptól
7,99% 8,49%
Végig fix Futamidő: 20 év Banki visszahívás
Az OTP Bank munkatársai a neked megfelelő napszakban veszik fel veled a kapcsolatot. A becslés a hirdető által megadott adatokon alapul. A jelen tájékoztatás nem minősül ajánlattételnek és nem teljes körű, az egyes feltételek a hitelbírálat eredményétől függően változhatnak. Kérjük, a részletekről tájékozódj az OTP Bank fiókjaiban vagy az OTP Bank honlapján közzétett vonatkozó Üzletszabályzatokból és Hirdetményekből.
Vedd fel a kapcsolatot a hirdetővel
Karacs Ildikó Az iroda összes hirdetése
+36 30 935 8
Vedd fel a kapcsolatot a hirdetővel
Karacs Ildikó Az iroda összes hirdetése
+36 30 935 8
UI_KIT.CHARACTER_COUNTER__COMPONENT.ACTUAL_CHARACTER__SR_ONLY UI_KIT.CHARACTER_COUNTER__COMPONENT.MAXIMUM_CHARACTER__SR_ONLY
Hasonló eladó ingatlanok Sámsonkert városrészben
Frissítve: 10 napja
5
69,9 M Ft 751 613 Ft/m²
Eladó ikerház, Hajdúsámson, Sámsonkert

Frissítve: 10 napja
8
66,9 M Ft 719 355 Ft/m²
Eladó ikerház, Hajdúsámson, Sámsonkert

Feltöltve: 6 hónapja
4
69 M Ft 741 935 Ft/m²
Eladó ikerház, Hajdúsámson, Sámsonkert

Fedezd fel a
hasonló házakat!Még további házak Hajdúsámsonon 70 M Ft körüli értékben
Tovább a hirdetésekhez Frissítve: 9 napja
9
72 M Ft 800 000 Ft/m²
Eladó ikerház, Hajdúsámson, Sámsonkert

Frissítve: 9 napja
9
72 M Ft 800 000 Ft/m²
Eladó ikerház, Hajdúsámson, Sámsonkert

Frissítve: 7 napja
15
75 M Ft
Eladó ikerház, Hajdúsámson, Sámsonkert
