

+10 fotó
Hirdetéskód: 8201387
Referenciaszám: 29493
Frissítve: 18 napja
Kecskemét eladó ikerház 4 szobás: 110 millió Ft
110 millió Ft
940 171 Ft/m²
117 m²
533 m²
4 szoba
VÁLASSZA A MINŐSÉGET! KECSKEMÉT VACSIKÖZBEN 2024-ES ÉPÍTÉSŰ CSALÁDI HÁZ, AZONNALI KÖLTÖZÉSSEL!
VÁLASSZA A MINŐSÉGET! KECSKEMÉT VACSIKÖZBEN 2024_ES ÉPÍTÉSŰ CSALÁDI HÁZ, AZONNALI KÖLTÖZÉSSEL!
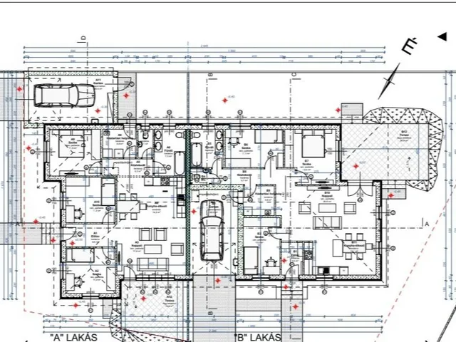
Eladásra kínálok kertvárosi környezetben, egy 533 m2-es telekre épült, 117 m2-es modern kivitelezésű, amerikai konyhás nappali + 3 szobás, energiatakarékos, padlófűtéses, klimatizált, teraszos családi házat, magas műszaki tartalommal.
Az ingatlant napfényes és tágas terek jellemzik. Elosztása kiváló, akár több gyermekes családok részére is, kényelmes otthont biztosít. A 39 m2-es amerikai konyhás nappali közvetlen teraszkapcsolatos, nagy méretű ablakai elektromos redőnnyel felszereltek. A 30 cm Ytong tégla főfalak, a 12 cm homlokzati szigetelés, a hőszigetelt Rehau műanyag nyílászárók garantálják a rendkívül kedvező fenntartást. A fűtésről gáz cirkó gondoskodik padlófűtés hőleadóval, a forró nyári napokon inverteres klímaberendezés biztosítja az ideális hőmérsékletet. A tágas utcafronti garázs elektromos garázskapuval ellátott.
Az ideális méretű 533 m2-es telek, tökéletes lehetőséget nyújt kikapcsolódásra, pihenésre az első tulajdonosainak hogy élvezhessék a kertes ház örömeit.
INGATLAN:
-telek: 533 m2
-nettó alapterület: 96.3 m2+ garázs 20.5
-bruttó: 140 m2
-Ytong tégla szerkezet
-térkövezett autóbeálló
-24.6 m2 terasz
HELYISÉGEK:
-Konyha+Étkező+Nappali : 39 m2
-Közlekedő : 6.7 m2
-Előtér : 3.6 m2
-Szoba 1 : 10.5 m2
-Szoba 2 : 11.1 m2
-Szoba 3 : 13.0 m2
-Fürdő : 6.2 m2
-WC : 1.5 m2
-Ht. helyiség : 4.6 m2
-Garázs : 20.5 m2
-Terasz : 24.6 m2
MŰSZAKI TARTALOM:
-Külső falazat 30-as Ytong tégla
-Válaszfalak 10-es Ytong tégla
- Könnyűszerkezetű födém, kerámia cserép
-12 cm homlokzati, 12 cm aljzat és 30 cm mennyezeti szigetelés
-Pasztell színű homlokzati nemesvakolat
-Lindab ereszcsatorna rendszer
-Rejtett redőnytokok, 3 rétegű hőszigetelt REHAU nyílászárók fehér színben
-Elektromos HÖRMANN garázskapu
-A energetikai besorolás
FINANSZÍROZÁS:
-CSOK+
Portfóliónkban több új építésű ingatlan található, tervezés alattiakról is tudunk információval szolgálni!
További információkért és megtekintéssel kapcsolatban várom hívását akár hétvégén is!
Adatbázisunkban további ingatlanokból választhat, hívjon bizalommal, hogy megtaláljuk a legmegfelelőbbet! Hitelre van szüksége? Teljes körű, bankfüggetlen, díjmentes hitelügyintézéssel állunk rendelkezésére. Ügyfeleinknek megbízható ügyvédi háttér, energetikai tanúsítvány készítése, ingyenes kiemelt ingatlan keresési szolgáltatás áll a rendelkezésre.
Ezúton tájékoztatjuk, hogy Ön, mint érdeklődő, a hirdetésben megjelölt telefonszám felhívásával hozzájárul személyes adatai – így különösen neve és telefonszáma -, a hirdetést feladó Ferszoltex Kft. általi - biztonságos és körültekintő - kezeléséhez, nyilvántartásához. Az Immo1 Adatvédelmi aloldalán találja a teljes körű tájékoztatást. immo1.hu/adatvedelem
Tulajdonságok
2024
Nem adta meg a hirdető
Vedd fel a kapcsolatot a hirdetővel
+36 30 515 1
Hitelkalkulátor
Második évtől
473 390 Ft A 13. hónaptól
7,99% 8,49%
Végig fix Futamidő: 20 év Banki visszahívás
Az OTP Bank munkatársai a neked megfelelő napszakban veszik fel veled a kapcsolatot. A becslés a hirdető által megadott adatokon alapul. A jelen tájékoztatás nem minősül ajánlattételnek és nem teljes körű, az egyes feltételek a hitelbírálat eredményétől függően változhatnak. Kérjük, a részletekről tájékozódj az OTP Bank fiókjaiban vagy az OTP Bank honlapján közzétett vonatkozó Üzletszabályzatokból és Hirdetményekből.
Vedd fel a kapcsolatot a hirdetővel
+36 30 515 1
Vedd fel a kapcsolatot a hirdetővel
+36 30 515 1
UI_KIT.CHARACTER_COUNTER__COMPONENT.REMAINING_SPACE__SR_ONLYUI_KIT.CHARACTER_COUNTER__COMPONENT.MAXIMUM_CHARACTER__SR_ONLY
Hasonló eladó ingatlanok Kecskeméten
Frissítve: 18 napja

20
120 M Ft 558 140 Ft/m²
Eladó családi ház, Kecskemét, Hetény-Belsőnyir tanya

Frissítve: 13 napja

11
108,9 M Ft 601 657 Ft/m²
Eladó családi ház, Kecskemét, Vacsiköz
Frissítve: 18 napja

20
109,9 M Ft 582 097 Ft/m²
Eladó családi ház, Kecskemét


Fedezd fel a
hasonló házakat!Még további házak Kecskeméten 110 M Ft körüli értékben
Tovább a hirdetésekhez Frissítve: 21 napja

15
105 M Ft 954 545 Ft/m²
Eladó családi ház, Kecskemét

Frissítve: 18 napja

8
109,9 M Ft 129 599 Ft/m²
Eladó családi ház, Kecskemét

Frissítve: 18 napja

20
99 M Ft 336 277 Ft/m²
Eladó családi ház, Kecskemét


Töltsd fel hirdetésed ingyenesen!
Egyszerű