+11 fotó
Hirdetéskód: 8970333
Referenciaszám: M309036-5201138
Frissítve: 4 napja
Marcali eladó ikerház 2+2 fél szobás: 35 millió Ft
35 millió Ft
411,8 ezer Ft/m²
85 m²
797 m²
2+2 fél szoba
Eladó Ház, Marcali
Balaton déli part környéke-ELADÓ ikerház-fél a Balatontól csupán 14 km-re!
Település: Marcali kertvárosi, központhoz közeli rész.
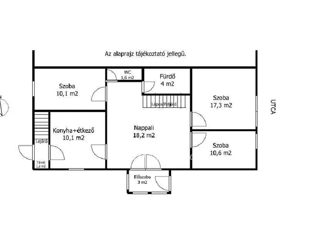
Lakóterület: 93 m2
Telek mérete: 797 m2
Építés éve: 1978
Eladásra kínálok egy hangulatos ikerház-felet Marcali kedvelt kertvárosi részén, a városközponthoz közel. Az ingatlan ideális lehet családoknak, de akár nyaralónak is, hiszen a Balaton mindössze 14 km-re található!
Helyiségek: Nappali, hálószoba, két kisebb szoba, konyha étkezővel, előszoba, kamra, különálló fürdőszoba és WC.
Szuterénben hangulatos olvasószoba. Tetőtér részben beépített, nappaliból feljárattal igény szerint tovább alakítható.
A szobák parkettások, a nappali laminált padlós.
További jellemzők:
- Garázs
- Nyílt tároló és utánfutó tároló
- Szépen gondozott kert
- Csendes, nyugodt környék
Közművek: Teljes közmű (víz, villany, gáz, csatorna) rendelkezésre áll. Fűtés gázkonvektorral és kandallókályhával, amely ősszel-tavasszal befűti az egész házat. A melegvizet boyler biztosítja.
Elhelyezkedés:
Marcali város járási központ, számos intézménnyel, boltokkal ( Tesco, Lidl, Aldi ), húsbolt, pékség, butikok sétáló utcával, vendéglátó helyekkel, iskolákkal, uszodával és gyógyfürdővel, kulturális programokkal. A Balaton-parti városok (pl. Balatonmáriafürdő) rövid autóútra elérhetők.
Otthon Start Hitelprogram
További információkért, a megtekintésért kérem, hívjon elérhetőségeimen.
Tulajdonságok
Ikerház
Átlagos
Egyéb
1978
Nem adta meg a hirdető
Vedd fel a kapcsolatot a hirdetővel

+36 70 373 9
Hitelkalkulátor
Második évtől
150 624 Ft A 13. hónaptól
7,99%
Végig fix Futamidő: 20 év Banki visszahívás
Az OTP Bank munkatársai a neked megfelelő napszakban veszik fel veled a kapcsolatot. A becslés a hirdető által megadott adatokon alapul. A jelen tájékoztatás nem minősül ajánlattételnek és nem teljes körű, az egyes feltételek a hitelbírálat eredményétől függően változhatnak. Kérjük, a részletekről tájékozódj az OTP Bank fiókjaiban vagy az OTP Bank honlapján közzétett vonatkozó Üzletszabályzatokból és Hirdetményekből.
Vedd fel a kapcsolatot a hirdetővel

+36 70 373 9
Vedd fel a kapcsolatot a hirdetővel

+36 70 373 9
UI_KIT.CHARACTER_COUNTER__COMPONENT.ACTUAL_CHARACTER__SR_ONLY UI_KIT.CHARACTER_COUNTER__COMPONENT.MAXIMUM_CHARACTER__SR_ONLY
Hasonló eladó ingatlanok Marcaliban
Feltöltve: 11 hónapja
1
38 millió Ft 593,8 ezer Ft/m²
Eladó családi ház, Marcali
Frissítve: 20 napja
20
38 millió Ft 400 ezer Ft/m²
Eladó családi ház, Marcali
Frissítve: 4 napja
20
32,5 millió Ft 357,1 ezer Ft/m²
Eladó családi ház, Marcali


Fedezd fel a
hasonló házakat!Még további házak Marcaliban 35 M Ft körüli értékben
Tovább a hirdetésekhez Frissítve: 17 napja
14
38,3 millió Ft 547,1 ezer Ft/m²
Eladó családi ház, Marcali
Frissítve: 20 napja
20
32,5 millió Ft 357,1 ezer Ft/m²
Eladó családi ház, Marcali

Frissítve: 20 napja
20
32,9 millió Ft 301,8 ezer Ft/m²
Eladó családi ház, Marcali

