+8 fotó
Hirdetéskód: 8860700
Referenciaszám: 209002145
Frissítve: 4 napja
Monor eladó ikerház 4+1 fél szobás: 99,9 millió Ft
99,9 millió Ft
908 182 Ft/m²
110 m²
480 m²
4+1 fél szoba
Megvételre kínálunk Monor egyik legszebb részén, egy HÓSZIVATTYÚS, új építésű, 110 nm-es teraszos, 4 szobás, + 1 félszobás, fürdő + külön WC-s ikerházat, 17 nm-es terasszal + 33 nm-es AJÁNDÉK GARÁZZSA
Megvételre kínálunk Monor egyik legszebb részén, egy HÓSZIVATTYÚS, új építésű, 110 nm-es teraszos, 4 szobás, + 1 félszobás, fürdő + külön WC-s ikerházat, 17 nm-es terasszal + 33 nm-es AJÁNDÉK GARÁZZSAL. Minőségi alapanyagokból, igényes kivitelezés jellemzi a projektet, ahol a biztonság és a kényelem mellett az energiatakarékosság volt a fő szempont. A ház átgondolt tervezésének köszönhetően kényelmes, otthonos, szellős, viszont ugyanakkor bővelkedik a reprezentatív, elegáns elemekkel. Az ingatlan külső falazata a körszerű Viablokk technológiával épül.
Az ingatlan megközelítését aszfaltos utca könnyíti meg.
Az otthon melegéről, valamint a használati melegvíz ellátásáról egy modern, energia takarékos, innovatív levegő-víz hőszivattyú gondoskodik akár H tarifás üzemeltetéssel.
A hőmérséklet helyiségenként állítható.
Ennek köszönhetően a rezsiköltségek minimalizálódnak.
Az ingatlan hűtéséről egy klíma berendezés fog gondoskodni.
AJÁNDÉK DUPLA GARÁZZSAL!
A Viablokk falazó rendszer előnyei a teljesség igénye nélkül: Rendkívül hatékony hő és hangszigetelő, hőhídmentes, kizárólag természetes anyagokat tartalmaz….stb.
Ennél a beruházásnál most lehetősége van kompromisszumok nélkül egy olyan ingatlanba költözni, ahol Ön kiválaszthatja a hideg és melegburkolatokat, szanitereket, beltéri ajtókat, valamint az egyéb kiegészítőket a családja legnagyobb megelégedésére, ez által személyre szabva álmai otthonát.
Az ingatlanhoz 480 nm-es privát telek tartozik.
Igénybe vehető lehetséges kedvezmények:
CSOK
5% Áfa visszatérítés
Babaváró hitel
Illeték kedvezmény vagy mentesség.
Az ingatlan árát a kulcsrakész állapotra adtuk meg.
A hirdetésben feltüntetett fotók között referencia fotók is szerepelnek.
Ezek mellett másik referencia ingatlanokat is tudunk mutatni.
A kulcsra kész ár tartalmazza a redőnyöket, három rétegű nyílászárókat, riasztó előkészítést, kaputelefon és motoros kapu kiépítést.
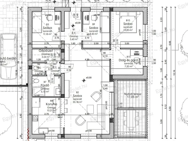
Helyiség lista:
- Közlekedő
- WC
- Gépészeti helyiség
- Három hálószoba
- Dolgozó szoba és gardrób
- Fürdőszoba
- Amerikai konyha,
- Étkező
- Nappali
- Terasz
- Dupla garázs
A telek teljes mérete: 1080 nm
Az ingatlan biztonságos, nyugodt, csendes, kertes házas övezetében, Monor egyik legszebb részén található. A környék fejlett infrastruktúrájának köszönhetően bővelkedik a szociális intézményekben, bölcsőde, óvoda, általános iskola, orvosi intézmények, bevásárlási lehetőségek, találhatóak a közelben.
Közlekedése kiváló, az M4-es autópálya rövid alatt elérhető.
Hitel, CSOK igénylésben díjmentes ügyintézéssel állunk rendelkezésére! Nálunk kiválaszthatja az Ön számára legkedvezőbb ajánlatot.
Várom megtisztelő érdeklődésüket.
Tulajdonságok
Ikerház
1
Új építésű
Hőszivattyú
2026
Nem adta meg a hirdető
Vedd fel a kapcsolatot a hirdetővel
+36 70 550 6
Hitelkalkulátor
Második évtől
429 924 Ft A 13. hónaptól
7,99% 8,49%
Végig fix Futamidő: 20 év Banki visszahívás
Az OTP Bank munkatársai a neked megfelelő napszakban veszik fel veled a kapcsolatot. A becslés a hirdető által megadott adatokon alapul. A jelen tájékoztatás nem minősül ajánlattételnek és nem teljes körű, az egyes feltételek a hitelbírálat eredményétől függően változhatnak. Kérjük, a részletekről tájékozódj az OTP Bank fiókjaiban vagy az OTP Bank honlapján közzétett vonatkozó Üzletszabályzatokból és Hirdetményekből.
Vedd fel a kapcsolatot a hirdetővel
+36 70 550 6
Vedd fel a kapcsolatot a hirdetővel
+36 70 550 6
UI_KIT.CHARACTER_COUNTER__COMPONENT.ACTUAL_CHARACTER__SR_ONLY UI_KIT.CHARACTER_COUNTER__COMPONENT.MAXIMUM_CHARACTER__SR_ONLY
Hasonló eladó ingatlanok Monoron
Frissítve: 22 napja
16
94,9 M Ft 527 222 Ft/m²
Eladó családi ház, Monor
Frissítve: 13 napja
20
107 M Ft 1 000 000 Ft/m²
Eladó ikerház, Monor

Frissítve: ma
20
107 M Ft 1 000 000 Ft/m²
Eladó ikerház, Monor


Fedezd fel a
hasonló házakat!Még további házak Monoron 99,9 M Ft körüli értékben
Tovább a hirdetésekhez Frissítve: 19 napja
15
107 M Ft 1 000 000 Ft/m²
Eladó ikerház, Monor

Frissítve: ma
15
107 M Ft 1 000 000 Ft/m²
Eladó ikerház, Monor

Frissítve: ma
15
107 M Ft 1 000 000 Ft/m²
Eladó ikerház, Monor

