+7 fotó
Hirdetéskód: 8939049
Referenciaszám: 351259
Feltöltve: 5 napja
Mórahalom eladó ikerház 4 szobás: 92 millió Ft
92 millió Ft
814 159 Ft/m² *
* A m² árat a hirdető adta meg.
113 m²
400 m²
4 szoba
Eladó Ház, Mórahalom 92.000.000 Ft
Induló kivitelezéssel, kulcsrakész ikerház, leköthető, Mórahalom újosztású részén!
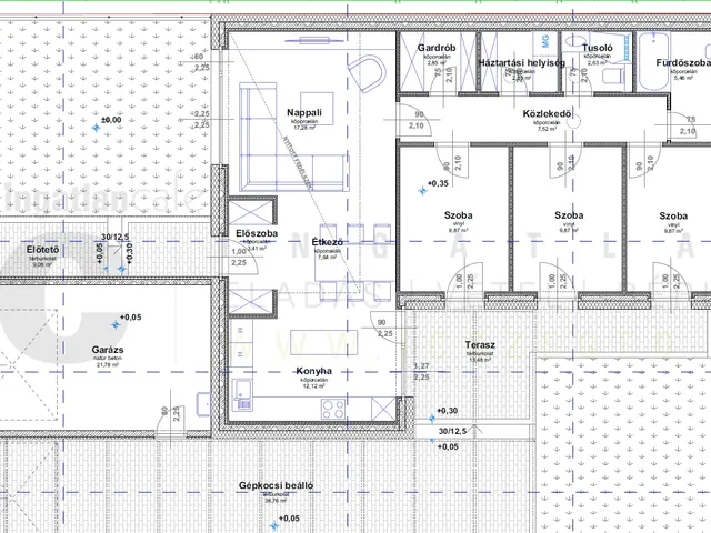
A ház egy 113 m2-es jó elrendezésű egyszintes ingatlan.
A ház jellemzői:
- Elhelyezkedés: Mórahalom, Kissori lakópark
- Egyszintes amerikaikonyhás nappali + 3 szoba, élhető tágas terekkel.
- Az ingatlan optimális kelet-nyugati fekvésű
- 400 m2-es telken, tégla építésű ház A+ energetikai besorolású
- Tervezett átadás: 2026, December.
A hirdetett ház 113 m2 (14 m2-es terasszal)
Műszaki jellemzők:
- szerkezet Porotherm 30 cm téglából+15 cm EPS szigetelés
- fűtés: hőszivattyú, vízteres padlófűtéssel
- gázbekötés nincs
- energetika: A+
- válaszfalak 10 cm könnyűszerkezetes
- garázs 22 m2-es
- választható szaniterek, ajtók, burkolóanyagok jó minőségben
- az ingatlanhoz 14 m2-es terasz tartozik
Az ár kulcsrakész ár!
Pontosabb műszaki tartalmat rendelkezésre tudunk bocsátani.
Következő családtámogatások vehetők fel az ingatlanra:
1. CSOK Plusz 2024 - Családi Otthonteremtési Kedvezmény
2. Kamattámogatott CSOK-hitel több gyermekeseknek
3. Babaváró - egy speciális gyermekvállalási támogatás
4. Illetékkedvezmény
5. Otthon Start hitel
A legújabb energetikai követelményeknek megfelelő kivitelezés.
További információkért keressen bizalommal!
Tulajdonságok
Ikerház
1
Új építésű
2026
A+
Vedd fel a kapcsolatot a hirdetővel
+36 70 385 2
Hitelkalkulátor
Második évtől
395 926 Ft A 13. hónaptól
7,99% 8,49%
Végig fix Futamidő: 20 év Banki visszahívás
Az OTP Bank munkatársai a neked megfelelő napszakban veszik fel veled a kapcsolatot. A becslés a hirdető által megadott adatokon alapul. A jelen tájékoztatás nem minősül ajánlattételnek és nem teljes körű, az egyes feltételek a hitelbírálat eredményétől függően változhatnak. Kérjük, a részletekről tájékozódj az OTP Bank fiókjaiban vagy az OTP Bank honlapján közzétett vonatkozó Üzletszabályzatokból és Hirdetményekből.
Vedd fel a kapcsolatot a hirdetővel
+36 70 385 2
Vedd fel a kapcsolatot a hirdetővel
+36 70 385 2
UI_KIT.CHARACTER_COUNTER__COMPONENT.ACTUAL_CHARACTER__SR_ONLY UI_KIT.CHARACTER_COUNTER__COMPONENT.MAXIMUM_CHARACTER__SR_ONLY
Hasonló eladó ingatlanok Mórahalmon
Feltöltve: 10 hónapja
1
94,9 M Ft 949 000 Ft/m²
Eladó családi ház, Mórahalom
Frissítve: 1 hónapja
15
85 M Ft 913 978 Ft/m²
Eladó ikerház, Mórahalom

Frissítve: 1 hónapja
15
92 M Ft 844 037 Ft/m²
Eladó ikerház, Mórahalom


Fedezd fel a
hasonló házakat!Még további házak Csongrád megyében 92 M Ft körüli értékben
Tovább a hirdetésekhez Frissítve: 1 hónapja
10
96,36 M Ft 803 039 Ft/m²
Eladó családi ház, Mórahalom

Frissítve: 1 hónapja
20
83,6 M Ft 633 333 Ft/m²
Eladó egyéb ház, Mórahalom, Erzsébet Kirányné útja
Frissítve: 28 napja
18
83,6 M Ft 648 062 Ft/m²
Eladó családi ház, Mórahalom
