+5 fotó
Hirdetéskód: 7871494
Frissítve: 3 hónapja
Nyíregyháza eladó ikerház 4 szobás: 79,99 millió Ft
79,99 millió Ft
601,4 ezer Ft/m²
133 m²
518 m²
4 szoba
Vegye meg álmai otthonát Nyíregyháza legkedveltebb részén!
Nyíregyháza - Orosi úton, csendes, kertvárosi, gyermekbarát környezetben, Új építésű ikerház eladó!
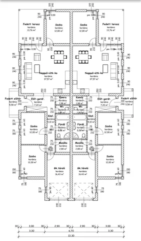
Az ingatlan főbb jellemzői:
• alapterület: 117,45 m2, + 16,43 m2 garázs,
• telek területe: 517,5 m2,
• tégla falazat,
• dupla hangszigetelés,
• 15 cm szigetelés,
• földszintes,
• kelet – nyugat fekvésű,
• alapja: vasbeton sávalap,
• fűtése: hőszivattyús rendszer, padlófűtéssel,
• födém: előregyártott vasbeton gerendák, beton béléstestekkel épülnek,
• áthidalók: előregyártott, illetve monolit vb. áthidalások,
• nyílászárók: műanyag szerkezetű 3 rétegű, 5 légkamrás,
• fa tetőszerkezet, bramac cseréppel fedve,
• a helyiségek padlóburkolata kerámia, illetve laminált parketta,
• a válaszfalak 10 cm-es válaszfallapból,
• járda az épület körül, illetve a gépkocsi beálló tér kövezve, valamint a terület körbekerítése az árban benne van.
Élettér: 3 szoba, nappali-konyha-étkező, előtér-gardrób, kamra, mosókonyha, közlekedő, Fürdőszoba, WC, fedett előtér, fedett terasz, garázs.
A felhasznált anyagok a mai korszerű minőségi és esztétikai elvárásoknak megfelelve kerülnek beépítésre, választható járólap és padló burkolat.
Lakáscsere beszámítására van lehetőség értékegyeztetéssel!
Csok Plusz, Babaváró hitel, Jelzáloghitelek a bankfiókokban elérhető legkedvezőbb feltételekkel, egyedi konstrukciókkal irodánkban igényelhetők!
Teljes körű, gyors, hatékony ingyenes hitelügyintézés.
Ha szeretne egy különleges helyen élni, hívjon...
Tulajdonságok
Ikerház
1
Új építésű
Hőszivattyú
2023
13,7 m²
Nem adta meg a hirdető
Vedd fel a kapcsolatot a hirdetővel
+36 70 698 5
Hitelkalkulátor
Második évtől
344 240 Ft A 13. hónaptól
7,99% 8,49%
Végig fix Futamidő: 20 év Banki visszahívás
Az OTP Bank munkatársai a neked megfelelő napszakban veszik fel veled a kapcsolatot. A becslés a hirdető által megadott adatokon alapul. A jelen tájékoztatás nem minősül ajánlattételnek és nem teljes körű, az egyes feltételek a hitelbírálat eredményétől függően változhatnak. Kérjük, a részletekről tájékozódj az OTP Bank fiókjaiban vagy az OTP Bank honlapján közzétett vonatkozó Üzletszabályzatokból és Hirdetményekből.
Vedd fel a kapcsolatot a hirdetővel
+36 70 698 5
Vedd fel a kapcsolatot a hirdetővel
+36 70 698 5
UI_KIT.CHARACTER_COUNTER__COMPONENT.ACTUAL_CHARACTER__SR_ONLY UI_KIT.CHARACTER_COUNTER__COMPONENT.MAXIMUM_CHARACTER__SR_ONLY
Hasonló eladó ingatlanok Oros városrészben
Frissítve: 5 napja
4
78 millió Ft 666,7 ezer Ft/m²
Eladó ikerház, Nyíregyháza, Oros
Frissítve: 5 napja
9
76 millió Ft 950 ezer Ft/m²
Eladó ikerház, Nyíregyháza, Oros
Feltöltve: 15 napja
6
75,9 millió Ft 665,8 ezer Ft/m²
Eladó ikerház, Nyíregyháza, Oros

Fedezd fel a
hasonló házakat!Még további házak Nyíregyháza, Oros városrészben 79,99 M Ft körüli értékben
Tovább a hirdetésekhez Feltöltve: 2 napja
10
87 millió Ft 725 ezer Ft/m²
Eladó ikerház, Nyíregyháza, Oros
Frissítve: 2 napja
20
83 millió Ft 703,4 ezer Ft/m²
Eladó ikerház, Nyíregyháza, Oros, Központ közeli
Frissítve: 18 napja
10
80 millió Ft 601,5 ezer Ft/m²
Eladó ikerház, Nyíregyháza, Oros

