+4 fotó
Hirdetéskód: 8847804
Referenciaszám: 837193
Feltöltve: 2 napja
Nyíregyháza eladó ikerház 4 szobás: 86 millió Ft
86 millió Ft
803 738 Ft/m²
107 m²
950 m²
4 szoba
Leírás
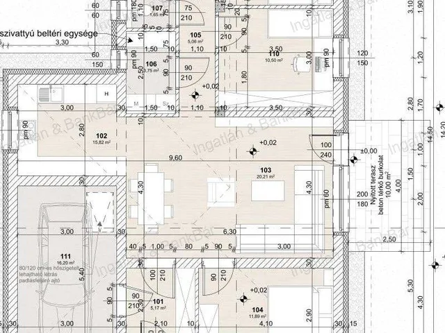
Eladó egy modern, új építésű ikerház Nyíregyháza Oros városrészében, mely ideális választás családok számára. Az ingatlan 2025-ben épül, így a legújabb építési technológiákat és anyagokat alkalmazza. Az alapterülete 107 négyzetméter, míg a telek mérete 950 négyzetméter, ami elegendő teret biztosít a szabadtéri pihenéshez és kikapcsolódáshoz. A házban négy szoba található, a fűtésrendszer hőszivattyúra épül, amely energiatakarékos megoldást biztosít, a másodlagos fűtés pedig klímás hűtés-fűtés rendszerrel egészül ki, így az otthon mindig kellemes hőmérsékletet biztosít minden évszakban. Az összkomfortos kialakítás garantálja a kényelmet, míg az udvari kilátás nyugodt, csendes környezetet teremt. A parkolás a garázsban megoldott, így az autó biztonságban állhat a saját területen. Az ingatlan bútorozatlan, lehetőséget adva új tulajdonosának, hogy saját ízlésének megfelelően alakítsa ki a belső teret. Az energetikai tanúsítvány a++ besorolással rendelkezik, amely a korszerű energiafogyasztást és fenntarthatóságot tükrözi. Ez az ikerház tökéletes választás mindazoknak, akik új otthonra vágynak egy nyugodt, gondozott lakóparkban. Az irányár 81 900 000 Ft, amely a piaci viszonyok és a kiváló elhelyezkedés figyelembevételével kifejezetten kedvező. Teljesen az igényeidhez igazítható, valamint átfogó pénzügyi szolgáltatásunkat is igénybe veheted, amely során:● Az összes Magyarországi bank ajánlatát összehasonlítjuk, ● Segítünk megtalálni a számodra legmegfelelőbb banki konstrukciótNe hagyja ki ezt a lehetőséget, és lépjen kapcsolatba velem még ma!
Tulajdonságok
Ikerház
Új építésű
2025
Nem adta meg a hirdető
Vedd fel a kapcsolatot a hirdetővel
+36 30 339 7
Hitelkalkulátor
Második évtől
370 105 Ft A 13. hónaptól
7,99% 8,49%
Végig fix Futamidő: 20 év Banki visszahívás
Az OTP Bank munkatársai a neked megfelelő napszakban veszik fel veled a kapcsolatot. A becslés a hirdető által megadott adatokon alapul. A jelen tájékoztatás nem minősül ajánlattételnek és nem teljes körű, az egyes feltételek a hitelbírálat eredményétől függően változhatnak. Kérjük, a részletekről tájékozódj az OTP Bank fiókjaiban vagy az OTP Bank honlapján közzétett vonatkozó Üzletszabályzatokból és Hirdetményekből.
Vedd fel a kapcsolatot a hirdetővel
+36 30 339 7
Vedd fel a kapcsolatot a hirdetővel
+36 30 339 7
UI_KIT.CHARACTER_COUNTER__COMPONENT.REMAINING_SPACE__SR_ONLYUI_KIT.CHARACTER_COUNTER__COMPONENT.MAXIMUM_CHARACTER__SR_ONLY
Hasonló eladó ingatlanok Nyíregyházán
Frissítve: 14 napja
20
92 M Ft 571 429 Ft/m²
Eladó ikerház, Nyíregyháza
Frissítve: 22 napja
15
82 M Ft 585 714 Ft/m²
Eladó családi ház, Nyíregyháza
Frissítve: 22 napja
2
86 M Ft 1 075 000 Ft/m²
Eladó ikerház, Nyíregyháza

Fedezd fel a
hasonló házakat!Még további házak Nyíregyházán 86 M Ft körüli értékben
Tovább a hirdetésekhez Frissítve: 24 napja
7
85 M Ft 885 417 Ft/m²
Eladó ikerház, Nyíregyháza

Frissítve: 14 napja
1
82 M Ft 341 667 Ft/m²
Eladó családi ház, Nyíregyháza
Frissítve: 24 napja
19
93,3 M Ft 849 727 Ft/m²
Eladó ikerház, Nyíregyháza

