+17 fotó
Hirdetéskód: 8934941
Referenciaszám: M324748
Frissítve: 7 napja
Nyíregyháza eladó ikerház 2+1 fél szobás: 119 millió Ft
119 millió Ft
1,06 millió Ft/m² *
* A m² árat a hirdető adta meg.
112 m²
600 m²
2+1 fél szoba
Leírás
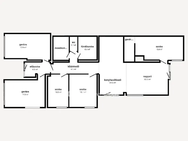
Nyíregyháza egyik legcsendesebb és legkedveltebb részén, a Báthory-lakópark nyugodt, lakó-pihenő övezetében kínálok megvételre egy 2019-ben épült, különleges hangulatú családi otthont, amely a modern kényelmet és a harmonikus életteret ötvözi. A 600 nm-es telken elhelyezkedő ingatlan gondosan kialakított kerttel várja új tulajdonosát, ahol az automata öntözőrendszerrel ellátott pihenőkert valódi kikapcsolódást nyújt a mindennapok után. A ház 112 nm alapterületű, tágas és világos terekkel, ahol a három külön nyíló szoba és az amerikai konyhás nappali kényelmes, családbarát elrendezést biztosít. A nappalit egy elegáns beépített kandalló teszi teljessé, amely a hűvösebb estéken különleges hangulatot teremt. Az otthon egyik legvonzóbb része a közel 60 nm-es fedett terasz, amely ideális helyszíne lehet a nyugodt reggeli kávézásoknak, nyári vacsoráknak vagy baráti összejöveteleknek. A gazdaságos fenntartásról napelemrendszer, gázcirkó fűtés, valamint két darab hűtő-fűtő klíma gondoskodik, míg a kamera- és riasztórendszer a biztonságot szolgálja. A praktikus kialakítás része a külön mosókonyha, a két mellékhelyiség és a kétállásos garázs is. A fürdőszoba 2025-ben teljes körű, igényes felújításon esett át. A beépített bútorok a vételár részét képezik, a további berendezések pedig megegyezés szerint az ingatlanban maradhatnak. Ez az otthon nem csupán egy ingatlan, hanem egy harmonikus élettér, ahol minden adott a nyugodt, hosszú távon is élvezhető mindennapokhoz.
OTP Banki hátterünknek köszönhetően finanszírozási igényekben (pl. Otthon Start Hitelprogram, Babaváró, Falusi CSOK, CSOK Plusz, Lakáshitel, Személyi kölcsön stb.), illetve biztosítások tekintetében is díjmentesen, soron kívüli ügyintézéssel segítem ügyfeleim! Referenciaszám: M324748
Tulajdonságok
Ikerház
1
Újszerű
Gázkazán
2019
Nem adta meg a hirdető
Vedd fel a kapcsolatot a hirdetővel

+36 31 771 3
Hitelkalkulátor
Második évtől
512 122 Ft A 13. hónaptól
7,99%
Végig fix Futamidő: 20 év Banki visszahívás
Az OTP Bank munkatársai a neked megfelelő napszakban veszik fel veled a kapcsolatot. A becslés a hirdető által megadott adatokon alapul. A jelen tájékoztatás nem minősül ajánlattételnek és nem teljes körű, az egyes feltételek a hitelbírálat eredményétől függően változhatnak. Kérjük, a részletekről tájékozódj az OTP Bank fiókjaiban vagy az OTP Bank honlapján közzétett vonatkozó Üzletszabályzatokból és Hirdetményekből.
Vedd fel a kapcsolatot a hirdetővel

+36 31 771 3
Vedd fel a kapcsolatot a hirdetővel

+36 31 771 3
UI_KIT.CHARACTER_COUNTER__COMPONENT.ACTUAL_CHARACTER__SR_ONLY UI_KIT.CHARACTER_COUNTER__COMPONENT.MAXIMUM_CHARACTER__SR_ONLY
Hasonló eladó ingatlanok Nyíregyházán
Frissítve: 22 napja
15
120 millió Ft 197,5 ezer Ft/m²
Eladó családi ház, Nyíregyháza, Csongor utca

Frissítve: 22 napja
20
129 millió Ft 430 ezer Ft/m²
Eladó családi ház, Nyíregyháza

Frissítve: 22 napja
12
129 millió Ft 921,4 ezer Ft/m²
Eladó családi ház, Nyíregyháza


Fedezd fel a
hasonló házakat!Még további házak Nyíregyházán 119 M Ft körüli értékben
Tovább a hirdetésekhez Frissítve: ma
12
120 millió Ft 377,4 ezer Ft/m²
Eladó családi ház, Nyíregyháza
Frissítve: 22 napja
20
119,9 millió Ft 631,1 ezer Ft/m²
Eladó családi ház, Nyíregyháza

Frissítve: 22 napja
16
120,7 millió Ft 851,2 ezer Ft/m²
Eladó ikerház, Nyíregyháza

