+10 fotó
Hirdetéskód: 8840575
Referenciaszám: 729500077
Frissítve: 4 napja
Őrbottyán eladó ikerház 4 szobás: 97,5 millió Ft
97,5 millió Ft
955 882 Ft/m²
102 m²
400 m²
4 szoba
4602: Nappali + 3 szobás, új építésű ikerház Őrbottyánban!!
Kedves Érdeklődő!
Őrbottyán, Vácbottyáni részén magas műszaki tartalommal épülő, nappali + 3 szobás elrendezésű, nettó 90.42 nm lakóterületű + 22.41 nm-es terasszal rendelkező ikerházi lakások eladók, kb. 400 nm-es saját telekrészekkel.
Portfóliónkban számos, különböző paraméterekkel rendelkező új építésű ingatlan megtalálható Őrbottyán területén és környékén, az azonnal beköltözhető ingatlanoktól kezdve, a még szabadon alakítható, saját igényre tervezhető lakásokig. Keressen bizalommal és segítünk megtalálni az elképzeléseinek megfelelő otthonát!
CÉGES ÉPÍTKEZÉS, az aktuális állami támogatások valamint kedvezményes, kamattámogatott hitelek felvehetőek.
Az építő munkájára jellemző a megbízhatóság és igényesség, leinformálható, referencia házai megtekinthetők.
Az ingatlan homlokzati falai 30-as PTH téglából épülnek, külső grafitos hőszigeteléssel.
Műanyag szerkezetű, hőszigetelő üvegezéssel ellátott nyílászárók kerülnek beépítésre, fehér színben.
A tető beton cseréppel lesz fedett.
A ház fűtése modern, hőszivattyús fűtésrendszerrel kerül kialakításra, a hő leadás padlófűtéssel fog történni.
Az ingatlanok H-tarifás órával és napelem kiállással kerülnek átadásra.
EÜ Gerendás födém - tehát pakolható padlástér.
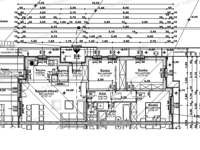
Helyiséglista:
amerikai konyhás nappali (33.22 nm), 3 szoba (12.60 nm, 12.58 nm és 12.01 nm), fürdőszoba (6.79 nm), külön WC (2.15 nm), előtér (3.81 nm), kamra (1.87 nm), közlekedő (5.39 nm), terasz (22.41 nm)
Parkolás: burkolt, udvari beállón kerül kialakításra.
A ház kulcsrakész állapotban kerül átadásra.
Akár 10 %-os foglalózás is lehetséges, a fennmaradó 90 % átadást megelőzően!
Lehetőség van egyedi elképzelések megvalósításra a ház belső elrendezésének tekintetében.
Köszönjük, hogy megtisztel bizalmával, és irodánkat választja új otthona kiválasztására. Tapasztalt és felkészült kollégáink segítenek Önnek akár a hétvégén is.
Ha esetleg még nem sikerült eladni ingatlanát, kedvezményes feltételekkel vállaljuk annak értékesítését!
A fotón az építő már elkészült, azonos paraméterekkel rendelkező háza látható referenciaként, a látványkép pedig berendezési ötletet mutat.
Kulcsrakész ár: 97.500.000.- Ft
Azonosító: 4602
Tulajdonságok
Ikerház
1
Új építésű
Hőszivattyú
2026
A+
Van
Vedd fel a kapcsolatot a hirdetővel
+36 70 418 1
Hitelkalkulátor
Második évtől
419 596 Ft A 13. hónaptól
7,99% 8,49%
Végig fix Futamidő: 20 év Banki visszahívás
Az OTP Bank munkatársai a neked megfelelő napszakban veszik fel veled a kapcsolatot. A becslés a hirdető által megadott adatokon alapul. A jelen tájékoztatás nem minősül ajánlattételnek és nem teljes körű, az egyes feltételek a hitelbírálat eredményétől függően változhatnak. Kérjük, a részletekről tájékozódj az OTP Bank fiókjaiban vagy az OTP Bank honlapján közzétett vonatkozó Üzletszabályzatokból és Hirdetményekből.
Vedd fel a kapcsolatot a hirdetővel
+36 70 418 1
Vedd fel a kapcsolatot a hirdetővel
+36 70 418 1
UI_KIT.CHARACTER_COUNTER__COMPONENT.ACTUAL_CHARACTER__SR_ONLY UI_KIT.CHARACTER_COUNTER__COMPONENT.MAXIMUM_CHARACTER__SR_ONLY
Hasonló eladó ingatlanok Őrbottyánban
Frissítve: ma
3
89,5 M Ft 962 366 Ft/m²
Eladó ikerház, Őrbottyán

Frissítve: 4 napja
3
97,5 M Ft 1 040 444 Ft/m²
Eladó ikerház, Őrbottyán

Frissítve: ma
5
89,5 M Ft 836 449 Ft/m²
Eladó ikerház, Őrbottyán


Fedezd fel a
hasonló házakat!Még további házak Őrbottyánban 97,5 M Ft körüli értékben
Tovább a hirdetésekhez Frissítve: 4 napja
3
92 M Ft 981 753 Ft/m²
Eladó ikerház, Őrbottyán

Frissítve: 4 napja
3
97,5 M Ft 1 040 444 Ft/m²
Eladó ikerház, Őrbottyán

Frissítve: ma
4
95,5 M Ft 712 687 Ft/m²
Eladó ikerház, Őrbottyán

