+5 fotó
Hirdetéskód: 8636804
Referenciaszám: 385226
Frissítve: ma
Pécel eladó ikerház 3+1 fél szobás: 110 millió Ft
110 millió Ft
1,09 millió Ft/m²
101 m²
508 m²
3+1 fél szoba
Eladó ikerház Pécel, 101nm, 110.000.000Ft - Pécel, ikerfél -1 lakás
CSAK NÁLUNK!
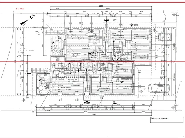
Pécel, kedvelt Levendulás lakóparkjában, eladó egy nettó 101,46 m², bruttó 110,56 m² alapterületű, 2 lakásos lakóépület 1-es lakása. Jogilag lakásnak számít.
A lakásokat, főként aszfaltos úton lehet megközelíteni.
A 101,46 m²-es lakótérben 3 szoba + nappali szoba biztosít kényelmes életteret a jövőbeli lakóknak. A házhoz tartozik egy ~508 m²-es saját kert, ami tökéletes helyszín családi és baráti összejövetelekhez. A 11,28 m²-es teraszról ( alatta 9,1 m²-es tároló) gyönyörű kilátás nyílik a környező tájra.
A lakások szimmetrikus belső elrendezéssel kerültek megtervezésre, földszintes kialakítással, illetve részleges szuterén beépítéssel. A lakások az oldalkerti homlokzatok közepén lévő bejáratokon közelíthetők meg.
Rövid műszaki tartalom:
- Az épület földszinti és emeleti külső határoló falai 30 cm vastag Porotherm 30 X-Therm falazó blokkból, úgynevezett klíma téglából készülnek.
- A külső körítő falak külső oldalai 15 cm grafitos EPS (H 80) hab hőszigetelő vakolatot kapnak.
- A tetőtér hőszigetelése, fújt hőszigetelő hab, kb. 45 cm vastag kőzetgyapotnak fele meg.
- A válaszfalak 10 N+F Porotherm válaszfal lapokból falazott 10 cm vastag falszerkezetek.
- A külső nyílászárók, fehér színben gyártott műanyag 3 rétegű, hőszigetelő üvegezéssel ellátottak (U= 0,9 W/m2K) ablakok lesznek.
- A meleg víz ellátást és a fűtést gáz kondenzációs kazán biztosítja majd, padlófűtés hűleadással.
Az alternatív fűtésről és hűtésről, KLÍMA fog gondoskodni.
A tervezet áram kapacitás 1 x 32A lesz.
Most még, kb. májusig Felár ellenében H-tarifás óra kérhető!
Helységlista:
- Földszint:
- 4,48 m² belépő ,
- 7,59 m² közlekedő,
- 12,12 m² szoba I.,
- 11,68 m² szoba II. ,
- 12,25 m² szoba III.,
- 4,80 m² fürdő,
- 1,44 m² WC,
- 3,68 m² gardrób,
- 3,27 m² háztartási helység,
- 31,03 m² nappali,
- 9,12 m² konyha étkező
- -----------------
101,46 m²
Nyitott terasz 11,28 m²
A terasz alatt szuterén tároló 9,10 m² lesz.
A kert durva tereprendezéssel lesz átadva.
Műszaki tartalom:
-Hideg burkolat 6.000 Ft/m²
-Meleg burkolat 5.000 Ft/m²
-Szaniterek 200.000 Ft-ig
-Beltéri ajtók 60.000 Ft, kilinccsel együtt /db
Magasabb árú építőanyag választás esetén a különbözetet a Vevő finanszírozza.
Az ár tartalmazza még:
- H-tarifa óra előkészítését, az órát és a dobozt nem.
- Kapumozgató elektronika előkészítését,
- Riasztó előkészítését.
A berendezések kiépítése opcionálisan, plusz pénzért megrendelhetők.
A belső VÁLASZFALAK, MÉG MÓDOSÍTHATÓK!
A Kivitelező a műszaki tartalom változtatás jogát fenntartja, az előírt energetikai előírások figyelembe vételével.
Kezdő befizetés 10% foglaló.
A tervezett kezdés 2026 nyara ( a villanyóra függvényében!
A tervezett átadás 1 év (2027 ősze. villanyóra függvényében!
A Cég számos referenciával rendelkezik. Komoly érdeklődés esetén szívesen mutatunk referenciát!
Ne hagyja ki ezt a lehetőséget, legyen Ön az új ikerház tulajdonosa Pécelen!
JÖJJÖN el, NÉZZE meg, SZERESSEN bele!
A GV HitelCentrum, KÖTELEZETTSÉG MENTESEN és DÍJMENTESEN, versenyezteti Önért a bankok hitelajánlatait. Ismerje meg a vissza nem térítendő állami támogatásokat!
* Egyedi, bankfiókban nem elérhető kamat- és díjkedvezmények.
* Ingyenes Hitelképesség vizsgálat.
* Idő, energia és pénz megtakarítás.
* Teljes hivatali ügyintézés.
* Babaváró.
* CSOK+
* Hitel.
* Megtakarítás,
* és EGYÉB BANKI tranzakcióban segítségére lehetünk!
• Igény esetén, ÜGYVÉDI segítséget nyújtunk, MEGFIZETHETŐ áron!
Ha az ingatlannal kapcsolatban bővebb felvilágosításra lenne szüksége, hívjon bizalommal, állok rendelkezésére!
F.M. ...TOVÁBBI, TÖBBEZRES INGATLAN KÍNÁLAT: www.gdn-ingatlan.hu - GDN azonosító: 385226
Tulajdonságok
Ikerház
2
Új építésű
Gázkazán
2026
11 m²
Nem adta meg a hirdető
Vedd fel a kapcsolatot a hirdetővel
+36 20 981 3
Hitelkalkulátor
Második évtől
473 390 Ft A 13. hónaptól
7,99% 8,49%
Végig fix Futamidő: 20 év Banki visszahívás
Az OTP Bank munkatársai a neked megfelelő napszakban veszik fel veled a kapcsolatot. A becslés a hirdető által megadott adatokon alapul. A jelen tájékoztatás nem minősül ajánlattételnek és nem teljes körű, az egyes feltételek a hitelbírálat eredményétől függően változhatnak. Kérjük, a részletekről tájékozódj az OTP Bank fiókjaiban vagy az OTP Bank honlapján közzétett vonatkozó Üzletszabályzatokból és Hirdetményekből.
Vedd fel a kapcsolatot a hirdetővel
+36 20 981 3
Vedd fel a kapcsolatot a hirdetővel
+36 20 981 3
UI_KIT.CHARACTER_COUNTER__COMPONENT.ACTUAL_CHARACTER__SR_ONLY UI_KIT.CHARACTER_COUNTER__COMPONENT.MAXIMUM_CHARACTER__SR_ONLY
Hasonló eladó ingatlanok Levendulás városrészben
Frissítve: ma
10
110 millió Ft 1,12 millió Ft/m²
Eladó ikerház, Pécel, Levendulás

Frissítve: 3 hónapja
18
99,8 millió Ft 988,1 ezer Ft/m²
Eladó ikerház, Pécel
Frissítve: 7 hónapja
1
119 millió Ft 1,06 millió Ft/m²
Eladó sorház, Pécel, Csatáridűlő

Fedezd fel a
hasonló házakat!Még további házak Pécelen 110 M Ft körüli értékben
Tovább a hirdetésekhez Frissítve: 2 hónapja
15
119,9 millió Ft 856,4 ezer Ft/m²
Eladó ikerház, Pécel
Frissítve: 21 napja
20
114,9 millió Ft 1,2 millió Ft/m²
Eladó ikerház, Pécel

Frissítve: ma
20
119,99 millió Ft 521,7 ezer Ft/m²
Eladó családi ház, Pécel

