+3 fotó
Hirdetéskód: 8832233
Referenciaszám: HZ057682-5109317
Feltöltve: ma
Pilis eladó ikerház 4 szobás: 68 millió Ft
68 millió Ft
755 556 Ft/m²
90 m²
494 m²
4 szoba
Tágas terek, nagy terasz
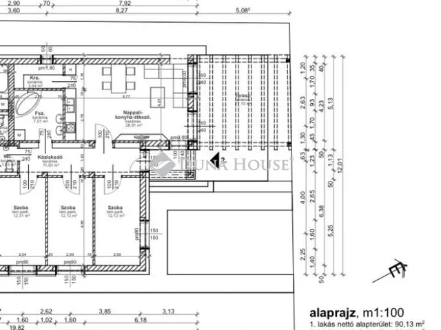
Pilisen eladó egy új építésű, 4 szobás ikerház, mely 90 m2-es alapterületével és kiváló elosztásával ideális otthon családok számára.
Az ingatlanban három tágas hálószoba, egy nagy nappali-konyha-étkező egyben, fürdőszoba, külön WC, kamra, valamint egy 27 m2-es fedett terasz található, ahol kellemesen eltöltheti szabadidejét.
A 494 m2-es telken egy különálló épület is helyet kapott, amely lakhatásra vagy akár irodai célra is alkalmas.
A ház fűtését korszerű hőszivattyú biztosítja, továbbá klímaberendezéssel felszerelt. A belső burkolatok még választhatók, így Ön alakíthatja ízlése szerint az otthonát.
Az ingatlan várható átadása 2 hónapon belül megtörténik.
A környék csendes és családbarát, iskola, óvoda, valamint üzletek csupán pár perc sétára találhatók. Az M4-es autópálya és a 4-es főút könnyen, 3 perc alatt elérhető, Budapest pedig mindössze 25 perc autóútra van.
Amennyiben felkeltette érdeklődését, kérem, keressen bizalommal!
Forduljon hozzám bizalommal a Duna House teljes kínálatával kapcsolatban, illetve eladási szándékával!
Szolgáltatásaink között megtalálható:
-Ingyenes hitelügyintézés a nemzetközileg elismert Credipass segítségével, garantáltan a legjobb feltételekkel és a leggyorsabb ügyintézéssel.
-Teljes körű ügyintézés ingatlan eladásához és vételéhez.
-Energetikai tanúsítvány készítése gyorsan és megbízhatóan.
-Ingyenes tanácsadás és értékbecslés, hogy a legjobb döntést hozhassa meg.
-Megbízható ügyvédi háttér biztosítása az adásvétel zökkenőmentes lebonyolításához.
Érd.: Fülöp Katalin tel.: +36703500147 email: fulop.katalin@dh.hu
Referencia szám: HZ057682
Tulajdonságok
Ikerház
Új építésű
Hőszivattyú
2025
Nem adta meg a hirdető
Vedd fel a kapcsolatot a hirdetővel
+36 29 998 8
Hitelkalkulátor
Második évtől
292 641 Ft A 13. hónaptól
7,99% 8,49%
Végig fix Futamidő: 20 év Banki visszahívás
Az OTP Bank munkatársai a neked megfelelő napszakban veszik fel veled a kapcsolatot. A becslés a hirdető által megadott adatokon alapul. A jelen tájékoztatás nem minősül ajánlattételnek és nem teljes körű, az egyes feltételek a hitelbírálat eredményétől függően változhatnak. Kérjük, a részletekről tájékozódj az OTP Bank fiókjaiban vagy az OTP Bank honlapján közzétett vonatkozó Üzletszabályzatokból és Hirdetményekből.
Vedd fel a kapcsolatot a hirdetővel
+36 29 998 8
Vedd fel a kapcsolatot a hirdetővel
+36 29 998 8
UI_KIT.CHARACTER_COUNTER__COMPONENT.REMAINING_SPACE__SR_ONLYUI_KIT.CHARACTER_COUNTER__COMPONENT.MAXIMUM_CHARACTER__SR_ONLY
Hasonló eladó ingatlanok Pilisben
Frissítve: 27 napja
6
66,63 M Ft 650 000 Ft/m²
Eladó ikerház, Pilis

Frissítve: 9 napja
19
72,5 M Ft 647 321 Ft/m²
Eladó családi ház, Pilis

Frissítve: 27 napja
19
72,5 M Ft 647 321 Ft/m²
Eladó családi ház, Pilis, Bicskei utca


Fedezd fel a
hasonló házakat!Még további házak Pilisben 68 M Ft körüli értékben
Tovább a hirdetésekhez Frissítve: ma
6
66,63 M Ft 659 653 Ft/m²
Eladó ikerház, Pilis

Frissítve: 27 napja
13
68 M Ft 442 420 Ft/m²
Eladó családi ház, Pilis, Toldi Miklós utca

Frissítve: 16 napja
13
68 M Ft 444 444 Ft/m²
Eladó családi ház, Pilis

