+4 fotó
Hirdetéskód: 8754683
Referenciaszám: 360011095-27
Frissítve: 12 napja
Solymár eladó ikerház 4 szobás: 189,99 millió Ft
189,99 millió Ft
1 507 857 Ft/m²
126 m²
350 m²
4 szoba
ELADÓ PRÉMIUM ÚJ ÉPÍTÉSŰ ENERGIAHATÉKONY IKERHÁZ SOLYMÁRON 126 NM
KÖLTÖZZÖN A II. KERÜLET ÉS SOLYMÁR HATÁRÁRA, PRÉMIUM ÚJ ÉPÍTÉSŰ ALACSONY REZSIJŰ IKERHÁZBA
Az építkezés elindult, 1 év múlva beköltözhet új otthonába!
ELADÓ IGÉNYES ÚJ ÉPÍTÉSŰ MODERN IKERHÁZ Solymár Kakukk-hegyen
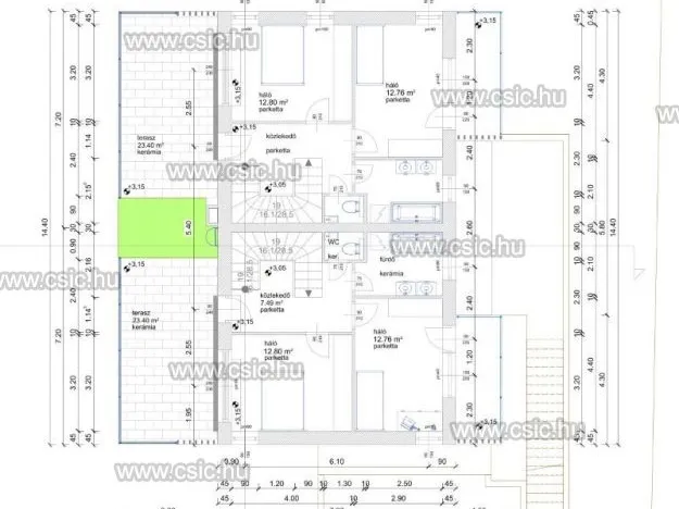
Az ikerházi lakás három szintes, külön bejárattal rendelkezik. A pinceszinten lévő teremgarázsban lakásonként 2-2 gépkocsi parkolhat, melyből 1-et kötelező megvásárolni, a második beálló opcionális. A belső kétszintes lakásba saját használatú lépcsőház vezet fel.
Nappali + 3 szoba, 2 fürdőszoba nyújt komfortos életteret lakói számára. A hatalmas emeleti hatalmas teraszról élvezhetjük a csendet, a természetet, pazar kilátás nyílik a hegyekre. Az ikerházhoz saját kertrésszel tartozik, ahová a nappaliból juthatunk ki.
Az ELADÓ ÚJ ÉPÍTÉSŰ MODERN IKERHÁZ főbb jellemzői:
• Hasznos alapterület: 126 m²
• Belső kétszintes elrendezés, jól elkülönülő életterek
• Nappali + 3 szoba
• 2 fürdőszoba
• Saját kertrész és terasz
• Teremgarázs-beálló 2 autó részére
• Praktikus tároló a pinceszinten
• Kiváló lokáció - tömegközlekedés sétatávolságra, Solymár központja, iskolák, óvodák, bevásárlási lehetőségek elérhető közelségben
Műszaki paraméterek:
• Alapozás: talajmechanikai szakvélemény alapján méretezett vasbeton lemezalap
• Teherhordó falak: Porotherm 30 vázkerámia
• Födém: 20 cm monolit vasbeton födém
• Tetőszerkezet: lapostető (rétegrend:UV álló műanyag lemez vízszigetelés, elválasztó réteg, 5-18 cm Bachl PIR LTL2 hőszigetelés alu kasírozással, 10 cm Bachl PIR alu kasírozással, PZ lemez, 20 cm monolit vb födém)
• Válaszfalak: 10 cm vtg. Porotherm válaszfalelem
• Vízszigetelés: Padlóban, talajnedvesség ellen hegesztett bitumenes lemez, illetve a lapostetőn csapadékvíz ellen UV-álló műanyag lemez, a teraszon műanyag lemez vízszigetelés a zuhanyzókban TÍPUSAI
• Hőszigetelés: Padlóban földszinten 10 cm kőzetgyapot, külső falon 15 cm Baumit homlokzati hőszigetelő rendszer, lábazaton Baumit Mosaic Top M329, tetőfödémben 5-18 cm Bachl PIR LTL2 alu kasírozással, a teraszon 10-14 cm Bachl PIR LTL2 hőszigetelés
• Hangszigetelés: Padlóban födémen, illetve a lakások közti elválasztó fal: 30 cm hanggátló Silka mészhomoktégla, fokozott hangszigeteléssel
• Páravédelem: Hőszigetelés alatt 1 rtg Reflex PZ páraáteresztő alátétfólia
• Padlóburkolatok: Kerámia, laminált parketta
• Falburkolatok: Fürdőkben csempe burkolat, egyéb helyeken javított mészvakolat, glettelés, festés, illetve gipszkarton glettelés, festés
• Külső nyílászárók: Műanyag szerkezetű, 3 rétegű fokozott hő- és hangszigetelésű Schüco prémium fix/bukó-nyíló ajtók, ablakok RAL 9010 színben
• Árnyékolás: műanyag redőny, elektromos előkészítéssel
• Belső ajtók: egyéni választás szerint
• Homlokzatképzés: Baumit hőszigetelő vakolatrendszer 0888 és 0986 színekben Baumit Creative Top vékonyvakolattal
• Gépészet: A lakások fűtését 10-12 kW teljesítményű levegő – víz hőszivattyú adja padló és mennyezet felületfűtéssel-hűtéssel, indirekt melegvíz tárolóval cirkuláltatott hálózattal
• A tetőfelületeken lehetőség van napelemek telepítésére is a vevő költségére
• Teraszok: kerámiával burkoltak
• Járdák, bejárók: Beton térkő burkolattal
• Korlátok: Edzett üveg kivitelűek, rozsdamentes tartószerkezettel - rövid oszlopos üvegkorlát
• Prémium szaniterek, Grohe szerelvények
• Hideg-, és melegburkolatok - választhatók 12.000 Ft/m2 értékben
• Okosotthon-előkészítés - Chameleon rendszer alaphálózat kiépítéssel (árnyékolástechnika, világítás, hűtés-fűtés, öntözőrendszer, videó kaputelefon, elektromos autótöltő, napelemes rendszer vezérlésének lehetősége)
• Hörmann automata garázskapu
Az 1. teremgarázs ára 15 MFt - kötelező megvásárolni, a 2. beálló ára 10 MFt.
Várható átadás: 2026. szeptember
Bővebb információért kérem, hívjon a hét bármely napján!
Kollégáink díjmentes, bankfüggetlen hitelügyintézéssel, jogi segítségnyújtással várják
Tulajdonságok
Ikerház
3
Új építésű
Nem adta meg a hirdető
Vedd fel a kapcsolatot a hirdetővel
+36 20 365 9
Hitelkalkulátor
Második évtől
817 630 Ft A 13. hónaptól
7,99% 8,49%
Végig fix Futamidő: 20 év Banki visszahívás
Az OTP Bank munkatársai a neked megfelelő napszakban veszik fel veled a kapcsolatot. A becslés a hirdető által megadott adatokon alapul. A jelen tájékoztatás nem minősül ajánlattételnek és nem teljes körű, az egyes feltételek a hitelbírálat eredményétől függően változhatnak. Kérjük, a részletekről tájékozódj az OTP Bank fiókjaiban vagy az OTP Bank honlapján közzétett vonatkozó Üzletszabályzatokból és Hirdetményekből.
Vedd fel a kapcsolatot a hirdetővel
+36 20 365 9
Vedd fel a kapcsolatot a hirdetővel
+36 20 365 9
UI_KIT.CHARACTER_COUNTER__COMPONENT.REMAINING_SPACE__SR_ONLYUI_KIT.CHARACTER_COUNTER__COMPONENT.MAXIMUM_CHARACTER__SR_ONLY
Hasonló eladó ingatlanok Solymáron
Frissítve: ma
19
189 M Ft 949 749 Ft/m²
Eladó ikerház, Solymár

Frissítve: 26 napja
5
184,15 M Ft 1 450 000 Ft/m²
Eladó ikerház, Solymár
Frissítve: 12 napja
20
200 M Ft 1 123 596 Ft/m²
Eladó családi ház, Solymár


Fedezd fel a
hasonló házakat!Még további házak Solymáron 189,99 M Ft körüli értékben
Tovább a hirdetésekhez Frissítve: 12 napja
20
182 M Ft 1 011 111 Ft/m²
Eladó családi ház, Solymár

Frissítve: 8 hónapja
1
200 M Ft 1 111 111 Ft/m²
Eladó családi ház, Solymár
Frissítve: 3 napja
20
189 M Ft 1 105 263 Ft/m²
Eladó ikerház, Solymár

