+6 fotó
Hirdetéskód: 8915363
Referenciaszám: 5141
Feltöltve: ma
Százhalombatta eladó ikerház 4 szobás: 109,9 millió Ft
109,9 millió Ft
1 248 864 Ft/m²
88 m²
500 m²
4 szoba
Kód: 5141KE Új építésű saját kertes, N+3 szobás ikerházi lakások
Hivatkozzon erre, kód: 5141KE
- ÚJ ÉPÍTÉSŰ IKERHÁZI LAKÁSOK
- ÖNÁLLÓ HRSZ SZÁM
- NAPPALI + 3 SZOBA, TERASZ, SAJÁT KERT / LAKÁS
- HŐSZIVATTYÚ PADLÓFŰTÉSSEL
- MEGBÍZHATÓ, TŐKEERŐS BERUHÁZÓ
AZ ÁR LAKÁSONKÉNT ÉRTENDŐ!
Százhalombatta Dunafüredi részén csendes, családi házas övezetben saját kerttel rendelkező nettó 87.5m2-es (teraszok felével), nappali + 3 szobás ikerházi lakások leköthetők igény szerinti befejezéssel.
Várható átadás: 2027. tavasz.
A fotók között referencia ingatlan is látható.
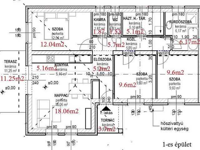
Mindkét lakás egyforma, felosztásuk a következőképpen alakul (nettó 80.03m2 + 14.95m2 teraszok + saját kert / LAKÁS): elő - terasz (3.70m2), előszoba (5.20m2), konyha (5.16m2), nappali-étkező (18.06m2), kamra (1.87m2), wc (1.53m2), fürdőszoba (6.17m2), háztartási helyiség (5.10m2), közlekedő (5.70m2), 3 szoba (12.04m2, 9.60m2, 9.60m2), terasz (11.25m2).
A lakások saját kerttel fognak rendelkezni:
1. lakás kb.300-350nm.
2. lakás kb.450-500nm.
Rövid műszaki ismertető: Beton alap. Porotherm 30-as tégla főfalak, 15cm-es szigeteléssel. Ytong válaszfalak. Fa födém, 25cm-es fújt cellulóz szigeteléssel. A tető betoncserép fedésű, antracit színben. A külső nyílászárók műanyag szerkezetűek, 3 rétegű szigetelt üvegezéssel, rejtett redőnytok beépítéssel (redőny és szúnyogháló nincs az árban).
A belső ajtók 50.000,-Ft/db. áron, míg a hideg és meleg burkolatok 4.000,-Ft/m2 árig vevő által választhatóak.
Fűtés és meleg víz ellátás: Panasonic (5 kW) hőszivattyús rendszer látja el, minden helyiségben padlófűtéssel, 200 literes puffer tartállyal.
Parkolás: saját kerten belül udvari beállóban lehetséges.
Megközelíthetőség és infrastruktúra jó! Buszmegálló, óvoda, iskola, bevásárlási lehetőség, strand hamar elérhető!
További hasonló ingatlanok találhatók még a kínálatunkban!
Szüksége van hitelre? SEGÍTÜNK!
Bankfüggetlen hitel tanácsadónk díjmentesen áll az Ön rendelkezésére! Keressen bizalommal!
A hirdetésben szereplő adatok, információk, képek, alaprajzok stb... tájékoztató jellegűek! Irodánk az esetleges elírásokért felelősséget nem tud vállalni!
Tájékoztatjuk a Tisztelt Érdeklődőket, hogy az ingatlan hirdetésében szereplő telefonszám felhívásával Önök hozzájárulnak személyes adataik (név, telefonszám), a hirdetést feladó -Otthonplusz.hu Kft. - által a bizalmas kezeléshez és nyilvántartáshoz.
Tulajdonságok
Ikerház
1
Új építésű
Hőszivattyú
2026
Nem adta meg a hirdető
Vedd fel a kapcsolatot a hirdetővel
+36 20 976 7
Hitelkalkulátor
Második évtől
472 959 Ft A 13. hónaptól
7,99% 8,49%
Végig fix Futamidő: 20 év Banki visszahívás
Az OTP Bank munkatársai a neked megfelelő napszakban veszik fel veled a kapcsolatot. A becslés a hirdető által megadott adatokon alapul. A jelen tájékoztatás nem minősül ajánlattételnek és nem teljes körű, az egyes feltételek a hitelbírálat eredményétől függően változhatnak. Kérjük, a részletekről tájékozódj az OTP Bank fiókjaiban vagy az OTP Bank honlapján közzétett vonatkozó Üzletszabályzatokból és Hirdetményekből.
Vedd fel a kapcsolatot a hirdetővel
+36 20 976 7
Vedd fel a kapcsolatot a hirdetővel
+36 20 976 7
UI_KIT.CHARACTER_COUNTER__COMPONENT.ACTUAL_CHARACTER__SR_ONLY UI_KIT.CHARACTER_COUNTER__COMPONENT.MAXIMUM_CHARACTER__SR_ONLY
Hasonló eladó ingatlanok Százhalombattán
Frissítve: 8 napja
6
105,7 M Ft 1 148 913 Ft/m²
Eladó ikerház, Százhalombatta
Frissítve: 14 napja
20
99,8 M Ft 712 857 Ft/m²
Eladó családi ház, Százhalombatta

Frissítve: ma
17
105 M Ft 789 474 Ft/m²
Eladó ikerház, Kakucs


Fedezd fel a
hasonló házakat!Még további házak Pest megyében 109,9 M Ft körüli értékben
Tovább a hirdetésekhez Frissítve: 7 napja
20
109 M Ft 630 058 Ft/m²
Eladó ikerház, Gyál

Frissítve: 9 napja
20
105 M Ft 760 870 Ft/m²
Eladó családi ház, Tököl

Frissítve: 14 napja
20
117 M Ft 570 732 Ft/m²
Eladó családi ház, Domony

