Hirdetéskód: 8925486
Referenciaszám: 175314-5171903
Feltöltve: ma
Székesfehérvár eladó ikerház 4 szobás: 79,65 millió Ft
79,65 millió Ft
926 163 Ft/m²
86 m²
800 m²
4 szoba
Új ikerházi lakás a Déli terület legjobb telkein
Az Openhouse Székesfehérvár Ingatlaniroda kínálatában eladó a #175314 hivatkozási számú székesfehérvári ikerház.
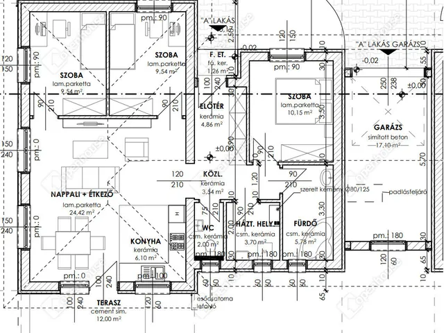
Eladásra kínálok Székesfehérváron épülő ikerházi lakásokat . Az egyszintes házak nettó 80m2-esek, +12m2 terasszal, + 17.1 m2 kocsibeállóval. Nappali-konyha-étkező mellett három hálószoba kerül kialakításra. Belső válaszfalak módosíthatók. Az ingatlanok csak a garázsnál érnek össze, nincs közös használatú falrész.
30-as tégla falak, 10-es tégla válaszfalak,
beton tetőcserép Antracit színben,
15 cm-es EPS hőszigetelés,
három rétegű műanyag nyílászárók,
rejtett redőnytok előkészítés,
Hőszivattyú, padlófűtéssel,
garázs,
törölköző szárító radiátor,
választható burkolatok, (5000Ft/m2)
választható szaniterek,
választhatóbeltéri ajtók, (90.000Ft/db)
konyhabútort és a lámpatesteket nem tartalmaz az ár
A KIVITELEZŐ CÉGRŐL: Az ingatlan építését egy több éve megbízhatóan működő Székesfehérvári bejelentésű építőipari vállalkozás kordinálja. Több, már elkészült Székesfehérváron is megtekinthető referencia ingatlant áll rendelkezésre, hogy Ön is meggyőződjön a megfelelő minőségű kivitelezésről. Az építkezés önerőből zajlik, az ingatlan fejlesztésre a kivitelező cégnek a tőke rendelkezésére ál
Ha felkeltette érdeklődését ez az eladó székesfehérvári ikerház, vagy bármely más ikerház és bővebb információt szeretne, keressen bizalommal.Hivatkozási szám: #175314
Az Openhouse Székesfehérvár Ingatlaniroda tagjaként várom Önt az országos hálózatunk teljes kínálatával.
A ikerház vásárláshoz hitelt igényelne? Ingyenes hitelközvetítéssel segít Önnek bankfüggetlen hitelszakértőnk.
További szolgáltatásainkkal (pl. értékbecslés, energetikai tanúsítvány, jogi háttér) is segítjük Önt a vásárlásban.
Az otthon érték. Az ingatlan üzlet.
Tulajdonságok
Ikerház
Új építésű
Hőszivattyú
2025
B
Vedd fel a kapcsolatot a hirdetővel
+36 30 217 8
Hitelkalkulátor
Második évtől
342 777 Ft A 13. hónaptól
7,99% 8,49%
Végig fix Futamidő: 20 év Banki visszahívás
Az OTP Bank munkatársai a neked megfelelő napszakban veszik fel veled a kapcsolatot. A becslés a hirdető által megadott adatokon alapul. A jelen tájékoztatás nem minősül ajánlattételnek és nem teljes körű, az egyes feltételek a hitelbírálat eredményétől függően változhatnak. Kérjük, a részletekről tájékozódj az OTP Bank fiókjaiban vagy az OTP Bank honlapján közzétett vonatkozó Üzletszabályzatokból és Hirdetményekből.
Vedd fel a kapcsolatot a hirdetővel
+36 30 217 8
Vedd fel a kapcsolatot a hirdetővel
+36 30 217 8
UI_KIT.CHARACTER_COUNTER__COMPONENT.ACTUAL_CHARACTER__SR_ONLY UI_KIT.CHARACTER_COUNTER__COMPONENT.MAXIMUM_CHARACTER__SR_ONLY
Hasonló eladó ingatlanok Székesfehérváron
Feltöltve: 8 napja
20
71,99 M Ft 529 338 Ft/m²
Eladó családi ház, Székesfehérvár

Frissítve: 16 napja
13
78 M Ft 1 000 000 Ft/m²
Eladó családi ház, Székesfehérvár

Frissítve: ma
20
74 M Ft 822 222 Ft/m²
Eladó családi ház, Székesfehérvár

Fedezd fel a
hasonló házakat!Még további házak Székesfehérváron 79,65 M Ft körüli értékben
Tovább a hirdetésekhez Frissítve: 20 napja
20
74 M Ft 822 222 Ft/m²
Eladó családi ház, Székesfehérvár

Feltöltve: 9 napja
20
Garden Lakópark III. ütem
87,5 M Ft 1 215 278 Ft/m²
Eladó sorház, Székesfehérvár, Tasnádi
Frissítve: 20 napja
20
71,99 M Ft 529 338 Ft/m²
Eladó családi ház, Székesfehérvár


