+15 fotó
Hirdetéskód: 8820393
Referenciaszám: 390434
Feltöltve: 4 napja
Szigethalom eladó ikerház 4 szobás: 89 millió Ft
89 millió Ft
1 047 059 Ft/m²
85 m²
420 m²
4 szoba
Eladó ikerház Szigethalom, 85nm, 89.000.000Ft - Pest megye
Szigethalom csendes aszfaltos utcájában a szomszédtól fedett kerti tárolóval elkülönített ikerház belső lakása eladó.
KIVÁLÓ KIVITELEZŐ, VERSENYKÉPES ÁRON, KIVÁLÓ OTTHONT AJÁNL ÖNNEK! CSOK +, H-TARIFA, 2026 06. havi ÁTADÁSSAL!!
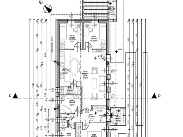
Az otthon 85,64 négyzetméteres, ehhez + kerti tároló 5,55 m2 és 29 m2 terasz kapcsolódik.
Helyiségei: nappali/étkező 27,00 m2, szoba 11,25 m2, szoba 9,12 m2, szoba 9,12 m2, konyha 5,25 m2, fürdő szoba 5,28 m2, közlekedő 3,52 m2, előtér 6,06 m2, kamra 2,34 m2, wc 1,50 m2, hth 5,20 m2, fedett belépő 5,48 m2 fedett terasz 11,79 m2, terasz 11,40 m2, tároló 5,55 m2.
A telek ideális 420 négyzetméteres, a szomszédot csak akkor látjuk és halljuk ha mi is szeretnénk, a teraszon zavartalanul pihenhetünk.
Az otthon beton alapra, tégla falazattal, fa födémmel, beton cserép fedéssel épül meg.
Az épület külső nyílászárói (ablakok) műanyag szerkezetűek 5 légkamrás 3 rétegű hőszigetelt üvegezéssel.
A bejárati biztonsági ajtó több ponton záródó.
A homlokzaton 15 cm Dryvit rendszerű, a födémben 25 cm fújt hőhíd mentes, míg a padlóban 10 cm lépésálló nikecell szigetelés kerül beépítésre.
Fűtése/ hűtése, meleg vízellátása hőszivattyúval (levegő) történik padlófűtéssel.
Burkolatok választhatóak keretösszegig, felette a vevő kompenzál. Szaniterek keretösszegig választhatók.
A kert alap kertrendezéssel kerül átadásra.
Az alaprajz változtatható, burkolatok választhatóak, a kivitelező igyekszik minden vásárlói igényt kielégíteni.
Az ikerfelek külön mérőórával, külön helyrajzi számmal rendelkeznek, társas házi alapító okirat készül.
Első "A" lakás 350 m2 kert, 75 m2 ára: 89.000.000 ft
Hátsó "B" lakás 420 m2 kert, 85,64 m2 ára: 89.000.000 ft
Várom megtisztelő hívását!
FINANSZÍROZÁS:
Nálunk mindent egy helyen intézhet:
- hivatalos ingatlanközvetítés;
- szakszerű jogi képviselet;
- profi CSOK-PLUSZ, és hitelügyintézés: 16 Bank, több mint 100 konstrukció;
A részletes adatvédelmi tájékoztató folyamatosan elérhető a oldalon. ...TOVÁBBI, TÖBBEZRES INGATLAN KÍNÁLAT: www.gdn-ingatlan.hu - GDN azonosító: 390434
Tulajdonságok
Ikerház
1
Új építésű
Hőszivattyú
2025
23 m²
Nem adta meg a hirdető
Vedd fel a kapcsolatot a hirdetővel
+36 30 641 6
Hitelkalkulátor
Második évtől
383 015 Ft A 13. hónaptól
7,99% 8,49%
Végig fix Futamidő: 20 év Banki visszahívás
Az OTP Bank munkatársai a neked megfelelő napszakban veszik fel veled a kapcsolatot. A becslés a hirdető által megadott adatokon alapul. A jelen tájékoztatás nem minősül ajánlattételnek és nem teljes körű, az egyes feltételek a hitelbírálat eredményétől függően változhatnak. Kérjük, a részletekről tájékozódj az OTP Bank fiókjaiban vagy az OTP Bank honlapján közzétett vonatkozó Üzletszabályzatokból és Hirdetményekből.
Vedd fel a kapcsolatot a hirdetővel
+36 30 641 6
Vedd fel a kapcsolatot a hirdetővel
+36 30 641 6
UI_KIT.CHARACTER_COUNTER__COMPONENT.REMAINING_SPACE__SR_ONLYUI_KIT.CHARACTER_COUNTER__COMPONENT.MAXIMUM_CHARACTER__SR_ONLY
Hasonló eladó ingatlanok Szigethalmon
Frissítve: 14 napja
5
89,9 M Ft 926 804 Ft/m²
Eladó családi ház, Szigethalom
Frissítve: 23 napja
20
94,9 M Ft 462 927 Ft/m²
Eladó családi ház, Szigethalom

Frissítve: 14 napja
14
97 M Ft
Eladó családi ház, Szigethalom, Kolozsvári közeli utca


Fedezd fel a
hasonló házakat!Még további házak Szigethalmon 89 M Ft körüli értékben
Tovább a hirdetésekhez Frissítve: 14 napja
10
94,5 M Ft
Eladó családi ház, Szigethalom, SZABADKAI U KÖZELI utca

Feltöltve: 1 éve
1
89,9 M Ft 538 323 Ft/m²
Eladó családi ház, Szigethalom
Frissítve: 20 napja
17
84,99 M Ft 1 053 029 Ft/m²
Eladó családi ház, Szigethalom


Töltsd fel hirdetésed ingyenesen!
Egyszerű