+17 fotó
Hirdetéskód: 8973844
Referenciaszám: M317112-5200456
Frissítve: 1 napja
Szigetszentmiklós eladó ikerház 4 szobás: 83,5 millió Ft
83,5 millió Ft
713,7 ezer Ft/m²
117 m²
547 m²
4 szoba
Eladó Ház, Szigetszentmiklós
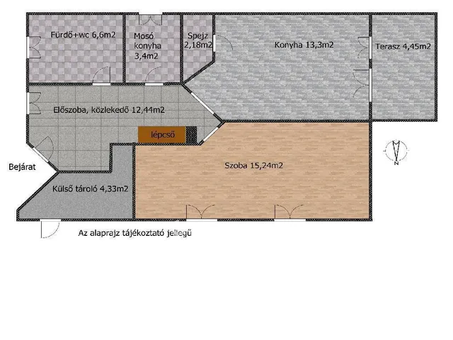
Eladó Szigetszentmiklós egyik legcsendesebb, családbarát részén egy kiváló állapotú, 115 m2-es könnyűszerkezetes ikerház, amely a 2000-es években minőségi anyagok felhasználásával épült.
Az ingatlan tervezése és kivitelezése során nagy hangsúlyt kapott a tartós és biztonságos fa tartószerkezet, a prémium nyílászárók, a minőségi burkolatok, valamint az átgondolt elektromos hálózat. Az egyedi belső elrendezésnek köszönhetően a terek maximálisan kihasználhatók, vagy szükség szerint átépíthetők. A tágas, jellemzően 10 m2 feletti szobák pedig ideálisak akár egy 4 fős család számára is.
A beépített szekrények rengeteg tárolóhelyet biztosítanak, így a mindennapi élet kényelmes és rendezett lehet. Az egyedileg gyártott, hőszigetelt üvegezésű nyílászárók tovább növelik az otthon komfortját.
A fűtésről gáz-cirkó gondoskodik, amelyet két inverteres klíma egészít ki, így a fűtési-hűtési költségek kedvezően alakulnak:
Villany: kb. 13.000 Ft Gáz átalány: kb. 20.000 Ft
A kert részét képező, kb 15 m2-es szaletli és a kerti tűzrakóhely igazi szabadtéri oázist teremtenek, ahol a jó idő beköszöntével élmény a kikapcsolódás. A kertben 4 körös automata öntözőrendszer működik, az elektromos kapu pedig kényelmes behajtást biztosít. Az épület részét képezi egy több mint 4 m2-es külső tároló, amely alkalmas a kerti eszközök vagy szezonális holmik, szerszámok elhelyezésére.
A környék kiváló infrastruktúrával rendelkezik: bevásárlóközpontok, egészségügyi intézmények, óvodák és iskolák könnyen elérhetők. Szigetszentmiklós dinamikusan fejlődő városrésze ideális választás mindazoknak, akik nyugodt környezetben, mégis mindenhez közel szeretnének élni.
Ez az ingatlan remek választás azoknak, akik egy jól megépített, gondosan karbantartott, azonnal költözhető otthont keresnek.
Az OTP Bankcsoport teljes körű ügyintézéssel áll az eladók és a vevők rendelkezésére! A kínálatunkból választott ingatlan finanszírozásához kedvezményes hitelkonstrukciókat kínálunk. Az adásvételi szerződés megkötéséhez igény szerint megbízható ügyvédi közreműködést biztosítunk és segítséget nyújtunk az adásvételhez kapcsolódó ügyek intézéséhez. Referenciaszám: M317112
Tulajdonságok
Ikerház
Jó állapotú
Gázkazán
2000
Nem adta meg a hirdető
Vedd fel a kapcsolatot a hirdetővel

Máté Katalin
OTPip - Szigetszentmiklós Tököli út 19.B - OTP Ingatlanpont Iroda
Az iroda összes hirdetése +36 70 324 2
Hitelkalkulátor
Második évtől
359 346 Ft A 13. hónaptól
7,99%
Végig fix Futamidő: 20 év Banki visszahívás
Az OTP Bank munkatársai a neked megfelelő napszakban veszik fel veled a kapcsolatot. A becslés a hirdető által megadott adatokon alapul. A jelen tájékoztatás nem minősül ajánlattételnek és nem teljes körű, az egyes feltételek a hitelbírálat eredményétől függően változhatnak. Kérjük, a részletekről tájékozódj az OTP Bank fiókjaiban vagy az OTP Bank honlapján közzétett vonatkozó Üzletszabályzatokból és Hirdetményekből.
Vedd fel a kapcsolatot a hirdetővel

Máté Katalin
OTPip - Szigetszentmiklós Tököli út 19.B - OTP Ingatlanpont Iroda
Az iroda összes hirdetése +36 70 324 2
Vedd fel a kapcsolatot a hirdetővel

Máté Katalin
OTPip - Szigetszentmiklós Tököli út 19.B - OTP Ingatlanpont Iroda
Az iroda összes hirdetése +36 70 324 2
UI_KIT.CHARACTER_COUNTER__COMPONENT.ACTUAL_CHARACTER__SR_ONLY UI_KIT.CHARACTER_COUNTER__COMPONENT.MAXIMUM_CHARACTER__SR_ONLY
Hasonló eladó ingatlanok Szigetszentmiklóson
Frissítve: 5 napja
7
89,9 millió Ft 775 ezer Ft/m²
Eladó családi ház, Szigetszentmiklós
Frissítve: 23 napja
13
76,9 millió Ft 295,8 ezer Ft/m²
Eladó családi ház, Szigetszentmiklós
Frissítve: 15 napja
11
84,5 millió Ft 889,5 ezer Ft/m²
Eladó családi ház, Szigetszentmiklós

Fedezd fel a
hasonló házakat!Még további házak Szigetszentmiklóson 83,5 M Ft körüli értékben
Tovább a hirdetésekhez Frissítve: 4 hónapja
20
85 millió Ft 438,1 ezer Ft/m²
Eladó családi ház, Szigetszentmiklós

Frissítve: 15 napja
20
78 millió Ft 376,8 ezer Ft/m²
Eladó családi ház, Szigetszentmiklós

Frissítve: 15 napja
20
78 millió Ft 376,8 ezer Ft/m²
Eladó családi ház, Szigetszentmiklós

