+2 fotó
Hirdetéskód: 8987525
Referenciaszám: 360051015-940
Feltöltve: 2 napja
Tahitótfalu eladó ikerház 4 szobás: 112 millió Ft
112 millió Ft
1,02 millió Ft/m²
110 m²
580 m²
4 szoba
Újépítésű ikerház Tahitótfalu hegy felöli oldalán
DUPLATERASZOS – Eladó Újépítésű ikerház Tahitótfalu hegy felöli oldalán – Kizárólag a Családi Ingatlan kínálatában
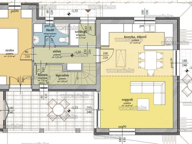
Eladó Tahitótfalu családiházas csendes övezetében egy 101m2 lakóterületű Nappali + 3 szobás , duplakomfortos újépítésű ikerház fél kulcsrakészen, önálló 580 m²-es telekrésszel.
A gondosan megtervezett otthon ideális választás családok számára, akik természetközeli, mégis modern és energiatakarékos ingatlant keresnek.
Főbb jellemzők:
• Tágas nappali–konyha–étkező kamrával
• 3 külön nyíló hálószoba
• 2 fürdőszoba (duplakomfort)
• Tároló és háztartási helyiség
• Fedett, burkolt terasz
• 2 autó számára kialakított beálló
• külső tároló
A két lakóegység teljesen elszeparált, dupla falazattal és szigeteléssel, szinteltolásos kialakítással – így biztosított a zavartalan, csendes élettér.
Az ingatlant tapasztalt, a közelben referenciákkal rendelkező kivitelező építi.
Modern műszaki tartalom:
• Porotherm falazat + 15 cm hőszigetelés
• Hőszivattyús rendszer padlófűtéssel
• 3 rétegű, korszerű nyílászárók
• Tetőszigetelés, cserépfedés
• Redőny-, riasztó- és napelem előkészítés
• Viacolor burkolatú beálló, kerítéssel
Az ingatlan kulcsrakész állapotban kerül átadásra, a burkolatok, szaniterek és belső ajtók választhatók – így saját ízlésére formálhatja új otthonát.
Fontos információk:
• Várható átadás: 2027. I. negyedév
• Konyhabútor nem része az árnak
• OSP (Otthon Start Program) kompatibilis – akár 3%-os hitellel is megvásárolható
Kinek ajánljuk?
Azoknak, akik:
• csendes, zöld környezetben szeretnének élni
• új építésű, alacsony rezsijű otthont keresnek
• értékelik a modern műszaki megoldásokat és az átgondolt elrendezést
Igény esetén független hitelügyintéző kollégánk díjmentesen segít a teljes folyamatban.
Tulajdonságok
Ikerház
Új építésű
Nem adta meg a hirdető
Vedd fel a kapcsolatot a hirdetővel
+36 20 272 9
Hitelkalkulátor
Második évtől
481 997 Ft A 13. hónaptól
7,99% 8,49%
Végig fix Futamidő: 20 év Banki visszahívás
Az OTP Bank munkatársai a neked megfelelő napszakban veszik fel veled a kapcsolatot. A becslés a hirdető által megadott adatokon alapul. A jelen tájékoztatás nem minősül ajánlattételnek és nem teljes körű, az egyes feltételek a hitelbírálat eredményétől függően változhatnak. Kérjük, a részletekről tájékozódj az OTP Bank fiókjaiban vagy az OTP Bank honlapján közzétett vonatkozó Üzletszabályzatokból és Hirdetményekből.
Vedd fel a kapcsolatot a hirdetővel
+36 20 272 9
Vedd fel a kapcsolatot a hirdetővel
+36 20 272 9
UI_KIT.CHARACTER_COUNTER__COMPONENT.ACTUAL_CHARACTER__SR_ONLY UI_KIT.CHARACTER_COUNTER__COMPONENT.MAXIMUM_CHARACTER__SR_ONLY
Hasonló eladó ingatlanok Tahitótfalun
Frissítve: 14 napja
20
120 millió Ft 585,4 ezer Ft/m²
Eladó családi ház, Tahitótfalu

Frissítve: 8 napja
20
119 millió Ft 944,4 ezer Ft/m²
Eladó családi ház, Tahitótfalu

Frissítve: ma
20
119 millió Ft 944,4 ezer Ft/m²
Eladó családi ház, Tahitótfalu


Fedezd fel a
hasonló házakat!Még további házak Pest megyében 112 M Ft körüli értékben
Tovább a hirdetésekhez Frissítve: 22 napja
20
119 millió Ft 944,4 ezer Ft/m²
Eladó családi ház, Tahitótfalu

Frissítve: 22 napja
20
119 millió Ft 944,4 ezer Ft/m²
Eladó családi ház, Tahitótfalu

Frissítve: 3 hónapja
1
105 millió Ft 981,3 ezer Ft/m²
Eladó családi ház, Tahitótfalu
