+9 fotó
Hirdetéskód: 8768803
Referenciaszám: M315675-5074002
Frissítve: 6 napja
Taksony eladó ikerház 4+1 fél szobás: 114,9 millió Ft
114,9 millió Ft
926,6 ezer Ft/m²
124 m²
1961 m²
4+1 fél szoba
Eladó Ház, Taksony
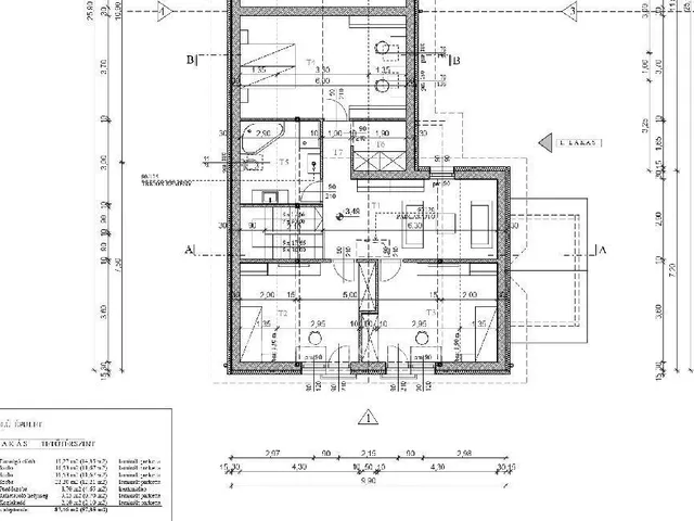
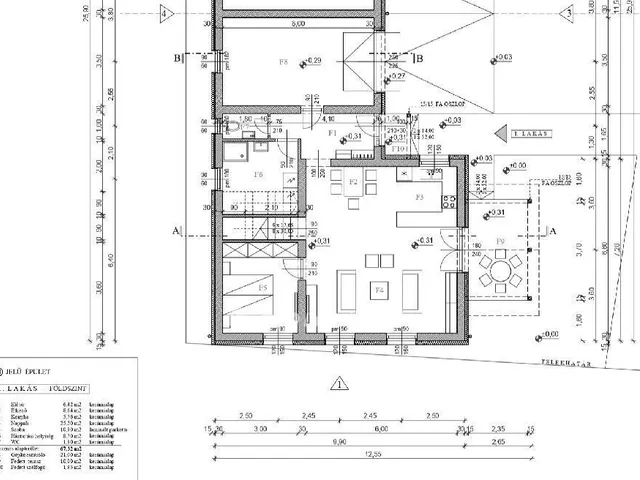
Eladó újépítésű kétszintes ikerház Taksonyban, mely népszerű horgász-, csónakázó- és nyári üdülőhely Pest megyében, a Szigetszentmiklósi járásban, a budapesti agglomerációban. 1961 m2-es telken 2 db kétlakásos lakóépület épül, amely a kényelem és a fenntarthatóság jegyében készül.
A földszint 67,3 m2, a tetőtér 57,3 m2, így a ház 124,6 m2-es. Az alsó szinten helyezkedik el az amerikai konyhás nappali étkezővel (40 m2), egy szoba (11 m2), a háztartási helyiség és egy WC. A felső szinten kapott helyet egy társalgó (18 m2), 3 szoba (12, 12, 12 m2), egy fürdőszoba és egy ruhatároló helyiség. Ezen kívül a házhoz tartozik még 10 m2-es fedett terasz és egy 21 m2-es garázs is - ezek kapcsolódnak össze.
Műszaki tartalom:
- beton alap, tégla falazat, kerámia tetőcserép, 15 cm-es szigetelés
- háromrétegű, hőszigetelt műanyag nyílászárók redőnnyel
- vizes helyiségekben kerámialap, a szobákban laminált parketta.
Fűtése, hűtése és a melegvíz előállítása hőszivattyúval megoldott, padlófűtéses hőleadással, így otthona energiahatékonnyá válik, egy csepp energia sem vész kárba.
Közművek: víz, villany bevezetve, csatorna a telekhatáron. 3*32 A is bevezetésre kerül. Ez a ház magas műszaki tartalommal épül, amely modern és energiatakarékos otthont biztosít.
Finanszírozási lehetőségek: CSOK +, 3%-os Otthon Start és Babaváró hitel
Az árak a lakás elhelyezkedéséből és a telek méretéből adódóan eltérnek:
1. lakás 114,9 M, telek mérete: 273 m2
2. lakás 129,9 M, telek mérete: 558 m2
3. lakás 129,9 M, telek mérete: 558 m2
4. lakás 134,9 M, telek mérete: 572 m2
Taksony a dél-pesti részen, Budapest határától 10 km-re helyezkedik el. Szomszédos települései: Dunaharaszti, Alsónémedi, Bugyi, Dunavarsány, Szigetszentmiklós. A nagyközséget az 510-es út szeli át, az M0-ás autópálya 12 km-re van tőle. A települést a Budapest - Kelebia - vasútvonal érinti.
Árpád unokájának, Taksony fejedelemnek a birtoka volt, innen ered a nagyközség neve. Lakosainak száma 6800 fő. Bölcsőde, német nemzetiségi óvoda ill. iskola várja a tanulni vágyó gyermekeket. Posta, gyermekorvosi rendelő és üzletközpont segíti a mindennapokat. A természetvédelmi terület ritkaságai - a védett úszólápok, a ritka orchideafélék, a gazdag madárvilág, a vízi állatok kiválóan megfigyelhetők itt.
Az emberek ösztönösen vágynak a nyugalomra, a szépre, a természet csöndjére - Taksonyban mindez elérhető.
Ez a ház ideális választás mindazoknak, akik szeretnék a főváros közelségét ötvözni a nyugodt, természetközeli életérzéssel egy impozáns, korszerű otthonban.
Amennyiben felkeltettem érdeklődését, hívjon bizalommal a hét bármely napján!
Az OTP Bankcsoport teljeskörű ügyintézéssel áll az eladók és a vevők rendelkezésére! A kínálatunkból választott ingatlan finanszírozásához kedvezményes hitelkonstrukciókat kínálunk. Az adásvételi szerződés megkötéséhez igény szerint megbízható ügyvédi közreműködést biztosítunk és segítséget nyújtunk az adásvételhez kapcsolódó ügyek intézéséhez.
Referenciaszám: M315675
Az energetikai tanúsítvány készítése folyamatban van, amint rendelkezésre áll, úgy azzal a hirdetés frissítésre kerül.
Tulajdonságok
Ikerház
Új építésű
Hőszivattyú
2025
Nem adta meg a hirdető
Vedd fel a kapcsolatot a hirdetővel

Major Katalin Tünde
OTPip - Szigetszentmiklós Tököli út 19.B - OTP Ingatlanpont Iroda
Az iroda összes hirdetése +36 30 324 8
Hitelkalkulátor
Második évtől
494 477 Ft A 13. hónaptól
7,99% 8,49%
Végig fix Futamidő: 20 év Banki visszahívás
Az OTP Bank munkatársai a neked megfelelő napszakban veszik fel veled a kapcsolatot. A becslés a hirdető által megadott adatokon alapul. A jelen tájékoztatás nem minősül ajánlattételnek és nem teljes körű, az egyes feltételek a hitelbírálat eredményétől függően változhatnak. Kérjük, a részletekről tájékozódj az OTP Bank fiókjaiban vagy az OTP Bank honlapján közzétett vonatkozó Üzletszabályzatokból és Hirdetményekből.
Vedd fel a kapcsolatot a hirdetővel

Major Katalin Tünde
OTPip - Szigetszentmiklós Tököli út 19.B - OTP Ingatlanpont Iroda
Az iroda összes hirdetése +36 30 324 8
Vedd fel a kapcsolatot a hirdetővel

Major Katalin Tünde
OTPip - Szigetszentmiklós Tököli út 19.B - OTP Ingatlanpont Iroda
Az iroda összes hirdetése +36 30 324 8
UI_KIT.CHARACTER_COUNTER__COMPONENT.ACTUAL_CHARACTER__SR_ONLY UI_KIT.CHARACTER_COUNTER__COMPONENT.MAXIMUM_CHARACTER__SR_ONLY
Hasonló eladó ingatlanok Taksonyban
Frissítve: 22 napja
9
114,9 millió Ft 911,9 ezer Ft/m²
Eladó családi ház, Taksony
Frissítve: 2 napja
20
113,3 millió Ft
Eladó ikerház, Taksony

Frissítve: 19 napja
20
125 millió Ft 595,2 ezer Ft/m²
Eladó családi ház, Taksony


Fedezd fel a
hasonló házakat!Még további házak Taksonyban 114,9 M Ft körüli értékben
Tovább a hirdetésekhez Frissítve: 14 napja
9
115 millió Ft 912,7 ezer Ft/m²
Eladó családi ház, Taksony
Frissítve: 22 napja
20
125 millió Ft 595,2 ezer Ft/m²
Eladó családi ház, Taksony

Frissítve: 22 napja
10
113,3 millió Ft 1,1 millió Ft/m²
Eladó ikerház, Taksony
