+2 fotó
Hirdetéskód: 8897847
Referenciaszám: M322692-5155107
Frissítve: ma
Taksony eladó ikerház 5 szobás: 115,9 millió Ft
115,9 millió Ft
1 125 243 Ft/m²
103 m²
553 m²
5 szoba
Eladó Ház, Taksony
Új otthon Taksony csendes övezetében - fejezd be saját ízlésed szerint!
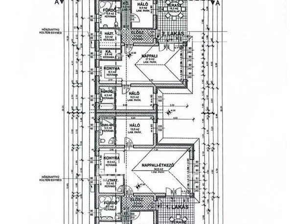
Egy meghitt, barátságos környezetben vár rád ez a 103 nm-es, egy szintes ikerházi családi otthon, amely a nyugalom szigetét kínálja Taksony családi házas, csendes részén.
A 553 nm-es telek (nyéllel együtt) ideális méretű kertet biztosít, ahol elfér a pihenés, a játék, a kertészkedés - minden, ami a családi élethez hozzátartozik.
És ami a legjobb: az otthont saját ízlésed szerint fejezheted be, így valóban olyan lehet, amilyennek megálmodtad.
Elrendezés és belső terek:
- Nappali + 4 hálószoba - tökéletes akár nagyobb családnak is
- Amerikai konyhás nappali, egyben az otthon lelke
- Két fürdőszoba (duplakomfort) - reggeli csúcsforgalomnak búcsút inthetsz
- Hatalmas terasz -18,3 nm - közös reggelik, családi grill esték, pihenős délutánok helyszíne
Fűtés, hűtés, gépészet:
- Hőszivattyús rendszer a fűtésre és melegvízre
- Padlófűtés + radiátoros rásegítés
- Klíma előkészítve/telepítve
Opcionálisan kérhető: redőny, riasztó, motoros kapu, mennyezethűtés
Műszaki paraméterek:
- Vasbeton sávalap vízszigeteléssel
- Padozatban 10 cm lépésálló ROCKWOOL
- 30 cm vastag kerámia kézi falazóblokk
- 10 cm homlokzati hőszigetelés
- Fagerendás födém, 30 cm ROCKWOOL kőzetgyapottal
- Tondach tetőcserép
- Műanyag, 3 rétegű üvegezésű ablakok
- Fa belső ajtók
További infók:
- Zárt szennyvízgyűjtő
- Utcafronton új kerítés kerül kialakításra
- Jogilag rendezett, hitelezhető
Az ingatlan osztatlan közös tulajdon, de ügyvédi megosztással lesz átadva az új tulajdonosoknak, ezért gond nélkül HITELEZHETŐ,
és Otthon Start hitelre is alkalmas.
Átadás várható ideje : 2026. július eleje
Egy otthon, amit együtt álmodtok tovább
Egy szeretetteljes családi élet leendő helyszíne.
Fejezd be a saját ízlésed szerint, válaszd ki a burkolatokat, színeket, megoldásokat, és tedd igazán saját otthonoddá.
További információért és mutatás miatt keress bizalommal a hét bármely napján!
Tulajdonságok
Ikerház
Új építésű
Hőszivattyú
2026
Nem adta meg a hirdető
Vedd fel a kapcsolatot a hirdetővel
Hackenberger Rita OTPip - Szigetszentmiklós Tököli út 19.B - OTP Ingatlanpont Iroda Az iroda összes hirdetése
+36 70 423 8
Hitelkalkulátor
Második évtől
498 781 Ft A 13. hónaptól
7,99% 8,49%
Végig fix Futamidő: 20 év Banki visszahívás
Az OTP Bank munkatársai a neked megfelelő napszakban veszik fel veled a kapcsolatot. A becslés a hirdető által megadott adatokon alapul. A jelen tájékoztatás nem minősül ajánlattételnek és nem teljes körű, az egyes feltételek a hitelbírálat eredményétől függően változhatnak. Kérjük, a részletekről tájékozódj az OTP Bank fiókjaiban vagy az OTP Bank honlapján közzétett vonatkozó Üzletszabályzatokból és Hirdetményekből.
Vedd fel a kapcsolatot a hirdetővel
Hackenberger Rita OTPip - Szigetszentmiklós Tököli út 19.B - OTP Ingatlanpont Iroda Az iroda összes hirdetése
+36 70 423 8
Vedd fel a kapcsolatot a hirdetővel
Hackenberger Rita OTPip - Szigetszentmiklós Tököli út 19.B - OTP Ingatlanpont Iroda Az iroda összes hirdetése
+36 70 423 8
UI_KIT.CHARACTER_COUNTER__COMPONENT.ACTUAL_CHARACTER__SR_ONLY UI_KIT.CHARACTER_COUNTER__COMPONENT.MAXIMUM_CHARACTER__SR_ONLY
Hasonló eladó ingatlanok Taksonyban
Frissítve: 2 napja
20
125 M Ft 595 238 Ft/m²
Eladó családi ház, Taksony

Frissítve: 2 napja
12
114,9 M Ft 926 613 Ft/m²
Eladó ikerház, Taksony

Frissítve: 4 napja
4
115,9 M Ft 1 125 243 Ft/m²
Eladó ikerház, Taksony


Fedezd fel a
hasonló házakat!Még további házak Taksonyban 115,9 M Ft körüli értékben
Tovább a hirdetésekhez Frissítve: 4 napja
9
114,9 M Ft 911 905 Ft/m²
Eladó családi ház, Taksony
Frissítve: 4 napja
20
110 M Ft 880 000 Ft/m²
Eladó családi ház, Taksony

Frissítve: 4 napja
7
113,3 M Ft 1 100 000 Ft/m²
Eladó ikerház, Taksony
