

+2 fotó
Hirdetéskód: 8756347
Referenciaszám: 360041004-2189
Frissítve: ma
Vácrátót eladó ikerház 4 szobás: 82,5 millió Ft
82,5 millió Ft
1 044 304 Ft/m²
79 m²
750 m²
4 szoba
ELADÓ HÁZ VÁCRÁTÓT ÚJÉPÍTÉSŰ
EGYSZINTES TÁRÓLÓKNÁL ÉRINTKEZŐ HÁZ VÁCRÁTÓTON!
BELSŐ ELRENDEZÉSE MÉG IGÉNY SZERINT VÁLTOZTATHATÓ!
HŐSZIVATTYÚS FŰTÉS!
3%-os START PLUSZ - CS.O.K+
Vácrátóton a Szent István lakóparkban épülő, FÖLDSZINTES nappali + 3 hálószobás, CSAK TÁRÓLÓKNÁL ÉRINTKEZŐ házat kínálunk eladásra 750 nm TELKEN!!
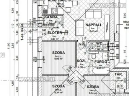
Az ikerház fél alapterülete 79 nm, 1+3szobás, kert és teraszkapcsolatos 28 nm amerikai konyhás nappalival, három világos hálószobával, egy kádas fürdőszobával, külön WC- vel, előszobával, közlekedővel egy 2,21 nm tárólóval és egy 12.24 nm terasszal rendelkezik
- Modern külső megjelenés
- Magas műszaki tartalom épül 30-as téglából +
- 12 dryvit szigeteléssel.
- HŐSZIVATTYÚS, fűtés padlófűtéssel.
- Napelem – előkészítés (igény szerint )
- Műanyag gondozásmentes 3 rétegű nyílászárók
- Biztonsági bejárati ajtó
- Riasztó előkészítés
- Gépkocsibeálló
- Kaputelefon
- Padlásfeljáró
Várható átadás: 2026 nyara
Ha ingatlan vásárláshoz még el kell adnia ingatlanát, CSALÁDI INGATLANNÁL kedvezményesen vállaljuk annak értékesítését!
Ha vásárláshoz hitelre van szüksége, hitel ügyintézőnk INGYENESEN segít Önnek megtalálni a piacon fellelhető legkedvezőbb hitelkonstrukciót.
Várom megtisztelő hívását a hét minden napján!
Tulajdonságok
Ikerház
1
Új építésű
Nem adta meg a hirdető
Vedd fel a kapcsolatot a hirdetővel
+36 20 504 0
Hitelkalkulátor
Második évtől
355 042 Ft A 13. hónaptól
7,99% 8,49%
Végig fix Futamidő: 20 év Banki visszahívás
Az OTP Bank munkatársai a neked megfelelő napszakban veszik fel veled a kapcsolatot. A becslés a hirdető által megadott adatokon alapul. A jelen tájékoztatás nem minősül ajánlattételnek és nem teljes körű, az egyes feltételek a hitelbírálat eredményétől függően változhatnak. Kérjük, a részletekről tájékozódj az OTP Bank fiókjaiban vagy az OTP Bank honlapján közzétett vonatkozó Üzletszabályzatokból és Hirdetményekből.
Vedd fel a kapcsolatot a hirdetővel
+36 20 504 0
Vedd fel a kapcsolatot a hirdetővel
+36 20 504 0
UI_KIT.CHARACTER_COUNTER__COMPONENT.REMAINING_SPACE__SR_ONLYUI_KIT.CHARACTER_COUNTER__COMPONENT.MAXIMUM_CHARACTER__SR_ONLY
Hasonló eladó ingatlanok Vácrátóton
Frissítve: 28 napja

9
89,9 M Ft 1 021 591 Ft/m²
Eladó ikerház, Vácrátót

Frissítve: 28 napja

9
89,9 M Ft 987 912 Ft/m²
Eladó családi ház, Vácrátót

Frissítve: 11 napja

20
84,9 M Ft 668 504 Ft/m²
Eladó ikerház, Vácrátót

Fedezd fel a
hasonló házakat!Még további házak Vácrátóton 82,5 M Ft körüli értékben
Tovább a hirdetésekhez Frissítve: 28 napja

9
89,9 M Ft 1 021 591 Ft/m²
Eladó családi ház, Vácrátót

Frissítve: 28 napja

8
86,5 M Ft 994 253 Ft/m²
Eladó ikerház, Vácrátót

Frissítve: 28 napja

8
86,5 M Ft 994 253 Ft/m²
Eladó családi ház, Vácrátót


Töltsd fel hirdetésed ingyenesen!
Egyszerű