+17 fotó
Hirdetéskód: 8957753
Referenciaszám: HZ060440-5192252
Frissítve: ma
Vecsés eladó ikerház 5 szobás: 149,9 millió Ft
149,9 millió Ft
936 875 Ft/m²
160 m²
460 m²
5 szoba
Eladó ház, Vecsés
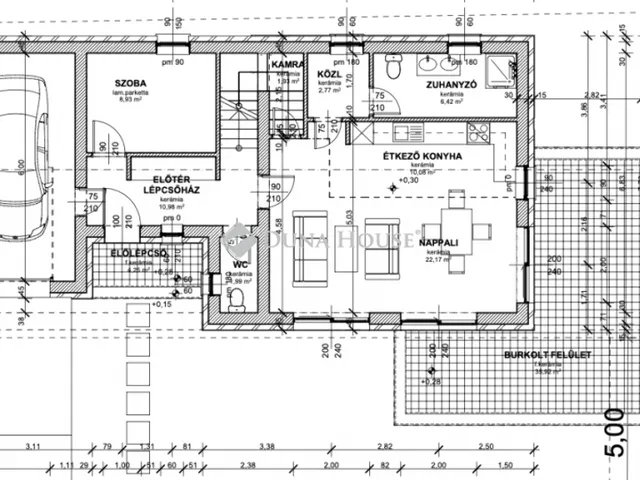
Vecsés csendes családias részénVecsés Krakkón barátságos utcában eladó új építésű családi házak.A kivitelező sok éves múlttal és rengeteg elégedett ügyféllel rendelkezik, referenciák Vecsési lakóparkokban és a 18.kerületben is megtekinthetőek.Költözzön egy privát zárt lakóparkba melyet saját magánúton zárt kapuk mögött lehet megközelíteni. 4 ház épül a lakópark területén, a privát kerteken kívül közös kertrész is kialakításra kerül, melyre a kivitelező privát játszóteret és sütögetőt alakít ki.Az otthonok 160.88 négyzetméter hasznos lakótérrel rendelkeznek, mely két szinten fekszik és 460 négyzetméter kert tartozik hozzá. A földszinten egy kényelmes méretű 32 négyzetméteres amerikai konyhás nappalival rendelkezik melyre egy L alakú 35.92 négyzetméteres részben fedett teraszon keresztül jutunk a saját kertünkbe. 4 nagyobb méretű hálószobával, 2 gardróbbal és 2 fürdőszobával+1 illemhelyiséggel rendelkezik.Műszaki adatok:-30-as Prototherm tégla falazat-15 cm-es homlokzati szigetelés-25 cm-es szigetelés az aljzat felől-25 cm-es szigetelés a födém felől-3 rétegű műanyag nyílászárók kívülről antracit belülről fehér színűek-elektromos garázskapu antracit színnel-Hőszivattyús fűtés/hűtés-2 fürdőszoba-kamra-riasztó-elektromos redőny-térkövezett autóbeálló-kétállásos garázs-napelem/kamera kiállásBurkolatok/beltéri ajtók/szaniterek még választhatóak.A HÁZAK CSAK A DUPLAGARÁZSNÁL ÉRINTKEZNEK, UTCAFRONTJA MINDEGYIK INGATLANNAK VAN!A lakópark teljesen új modern környezet, játszótérrel, fákkal. Közlekedést tekintve autóval a Gyorsforgalmi út, Üllői út, Gyömrői út az M0-ás és a 4-es út 3 perc alatt megközelíthető.Tömegközlekedés 3 perc sétára Volánbuszmegálló Kőbánya Kispest vasútállomásig közlekedik, 15 perc sétára Vecsési vonatállomás, melyről a Nyugati pályaudvarig közlekednek a vonatok.Felkeltette érdeklődését keressen bizalommal a hét bármely napján!Átadás: 2026.július
Referencia szám: HZ060440-ZE
Tulajdonságok
Ikerház
Új építésű
Hőszivattyú
2025
Nem adta meg a hirdető
Vedd fel a kapcsolatot a hirdetővel
+36 70 421 5
Hitelkalkulátor
Második évtől
645 101 Ft A 13. hónaptól
7,99% 8,49%
Végig fix Futamidő: 20 év Banki visszahívás
Az OTP Bank munkatársai a neked megfelelő napszakban veszik fel veled a kapcsolatot. A becslés a hirdető által megadott adatokon alapul. A jelen tájékoztatás nem minősül ajánlattételnek és nem teljes körű, az egyes feltételek a hitelbírálat eredményétől függően változhatnak. Kérjük, a részletekről tájékozódj az OTP Bank fiókjaiban vagy az OTP Bank honlapján közzétett vonatkozó Üzletszabályzatokból és Hirdetményekből.
Vedd fel a kapcsolatot a hirdetővel
+36 70 421 5
Vedd fel a kapcsolatot a hirdetővel
+36 70 421 5
UI_KIT.CHARACTER_COUNTER__COMPONENT.ACTUAL_CHARACTER__SR_ONLY UI_KIT.CHARACTER_COUNTER__COMPONENT.MAXIMUM_CHARACTER__SR_ONLY
Hasonló eladó ingatlanok Vecsésen
Frissítve: 13 napja
19
162,9 M Ft 839 691 Ft/m²
Eladó családi ház, Vecsés, Teréz utca

Frissítve: 13 napja
18
159 M Ft 504 762 Ft/m²
Eladó családi ház, Vecsés, Küküllői utca

Frissítve: 3 napja
19
162,9 M Ft 839 691 Ft/m²
Eladó családi ház, Vecsés


Fedezd fel a
hasonló házakat!Még további házak Vecsésen 149,9 M Ft körüli értékben
Tovább a hirdetésekhez Frissítve: 3 napja
19
162,9 M Ft 839 691 Ft/m²
Eladó családi ház, Vecsés

Frissítve: 12 napja
20
140 M Ft 437 500 Ft/m²
Eladó családi ház, Vecsés

Frissítve: 3 napja
19
162,9 M Ft 839 691 Ft/m²
Eladó családi ház, Vecsés

