+17 fotó
Hirdetéskód: 8919890
Referenciaszám: M324311
Frissítve: 15 napja
Pápa eladó iroda és irodaház 670 m² alapterületű: 139 millió Ft
139 millió Ft
207,5 ezer Ft/m² *
* A m² árat a hirdető adta meg.
670 m²
15+4 fél szoba
Leírás
ELADÓ IRODAHÁZ PÁPÁN ? KIVÁLÓ LOKÁCIÓ, SZÉLESKÖRŰ HASZNOSÍTÁSI LEHETŐSÉGEK!
Használaton kívüli irodaház | Kereskedelmi és üzleti célokra kiválóan alkalmas!
Telek mérete: 2.844 m2
Építés éve: 1970
Összes nettó alapterület: 670 m2
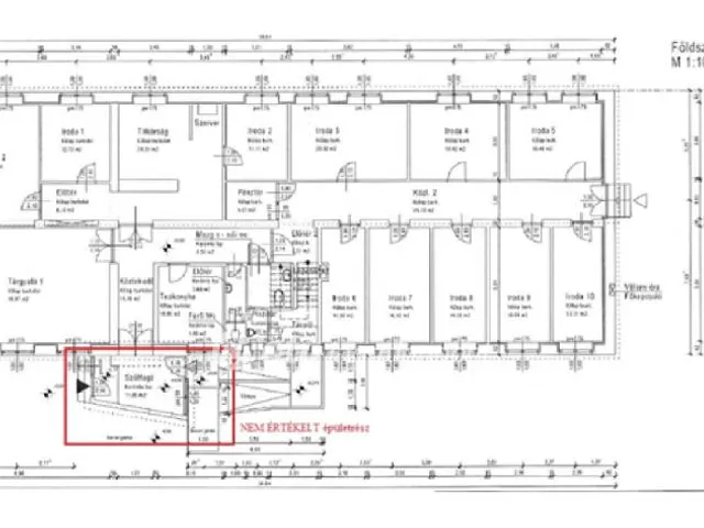
KÉPEK LEÍRÁSA :
- Az ingatlan egy tégla szerkezetű, földszint + tetőtér kialakítású irodaházból áll, amely irodai és kereskedelmi célokra is könnyen átalakítható.
- A környezete ipari és kereskedelmi övezetben található, a telek részben betonozott, részben füvesített.
- A belső tér elrendezése praktikus, az alsó szinten irodák, tárgyaló és szociális helyiségek kaptak helyet, míg a tetőtérben további irodák és tárolók találhatók.
- Az épület külső homlokzata vakolt, de homlokzati szigetelés nélkül.
INGATLAN RÉSZLETES BEMUTATÁSA:
IRODAI ÉPÜLET (670 m2)
Földszint:
- Tágas recepció és ügyfélfogadó tér
- Több irodai helyiség
- Tárgyaló
- Teakonyha, étkező
- Mosdók, zuhanyzók, öltözők (női és férfi külön-külön)
- Raktár és egyéb kiszolgáló helyiségek
Tetőtér:
- További irodák és pihenőszobák
- Tároló és padlástér
Épületszerkezeti jellemzők:
- Falazat: Tégla
- Födém: Vasbeton szerkezet
- Tetőszerkezet: Fa nyeregtető, kerámiacserép héjazattal
- Nyílászárók: Fa ablakok és ajtók
- Padlóburkolatok: Kerámia, laminált parketta, beton
Műszaki jellemzők:
- Közművek: Víz, villany, gáz, csatorna 2 önálló közműórákkal
- Fűtés: 2 db gázkazán, radiátoros hőleadókkal
- Meleg víz: Gáz bojler
- Biztonság: Riasztórendszer kiépítve
- Klíma: Csak bizonyos irodákban
KÉPEK ALAPJÁN:
- A tárgyaló és irodák tágasak, világosak, az ablakok biztosítják a természetes fényt.
- A mosdók és teakonyha megfelelő állapotú, de korszerűsítésre szorulhat.
- A lépcsőház és folyosók jól karbantartottak, könnyen átalakíthatók.
LOKÁCIÓ, MEGKÖZELÍTHETŐSÉG:
Frekventált ipari-kereskedelmi övezetben, kiváló elhelyezkedéssel
Közlekedési adottságok:
- Könnyű megközelítés az aszfaltozott útról
- 83-as főút, valamint Pápa ipari központja gyorsan elérhető
- Vasútállomás és autóbusz-pályaudvar 6 km-en belül
- Tömegközlekedés kb. 300 m távolságra
- Az ÉNy-i és DK-i homlokzat jól látható a környező ipari területekről.
- A főbejárat széles, jól megközelíthető, az udvar részben parkolásra alkalmas.
TELEK ÉS BEÉPÍTHETŐSÉG:
Övezeti besorolás: GKSZ-4 (gazdasági-szolgáltató övezet)
Beépíthetőség: 40%
Zöldterület minimális aránya: 25%
Maximális építménymagasság: 14 m
A telek mérete és elhelyezkedése lehetőséget ad további fejlesztésekre vagy átalakításokra.
---
KINEK AJÁNLJUK?
*Vállalkozásoknak, amelyek irodát és raktárat egy helyen szeretnének*
*Kereskedelmi és üzleti célra alkalmas befektetőknek*
*Szolgáltató szektor képviselőinek (pl. autókereskedés, logisztikai központ)*
*Társasházzá vagy egyéb funkciójú ingatlanná alakításra is lehetőség van*
Az ingatlan *használaton kívül van*, így azonnal birtokba vehető és átalakítható!
Hitelügyintézés és teljes körű jogi támogatás irodánkon keresztül elérhető
További információért és megtekintésért hívjon bizalommal!
Tulajdonságok
Iroda és irodaház
2
Átlagos
Gázkazán
1970
Nem adta meg a hirdető
Vedd fel a kapcsolatot a hirdetővel
+36 30 265 5
Vedd fel a kapcsolatot a hirdetővel
+36 30 265 5
Vedd fel a kapcsolatot a hirdetővel
+36 30 265 5
UI_KIT.CHARACTER_COUNTER__COMPONENT.ACTUAL_CHARACTER__SR_ONLY UI_KIT.CHARACTER_COUNTER__COMPONENT.MAXIMUM_CHARACTER__SR_ONLY
Hasonló eladó ingatlanok Pápán
Frissítve: 7 napja
6
137 millió Ft 570,8 ezer Ft/m²
Eladó kereskedelmi és ipari ingatlan, Kővágóörs

Frissítve: ma
20
148,35 millió Ft 10,4 ezer Ft/m²
Eladó kereskedelmi és ipari ingatlan, Gógánfa, Nincs utca

Frissítve: 1 napja
20
150 millió Ft 625 ezer Ft/m²
Eladó kereskedelmi és ipari ingatlan, Pécsely

Frissítve: 1 napja
18
129 millió Ft 247,6 ezer Ft/m²
Eladó kereskedelmi és ipari ingatlan, Ajka

Feltöltve: 1 éve
1
150 millió Ft 136,5 ezer Ft/m²
Eladó kereskedelmi és ipari ingatlan, Lesencetomaj
Frissítve: 15 napja
20
150 millió Ft 625 ezer Ft/m²
Eladó kereskedelmi és ipari ingatlan, Pécsely

