+17 fotó
Hirdetéskód: 8967967
Referenciaszám: M298308-5198720
Feltöltve: 11 napja
Kulcs eladó kertes ház 90 m² alapterületű: 16,5 millió Ft
16,5 millió Ft
183,3 ezer Ft/m²
90 m²
898 m²
2 szoba
Eladó Ház, Kulcs
Nyaraló Kulcson, csodás kilátással!
Eladásra kínálok egy nyaralót Kulcson üdülőövezetben, a Dunától rövid sétányi távolságra.
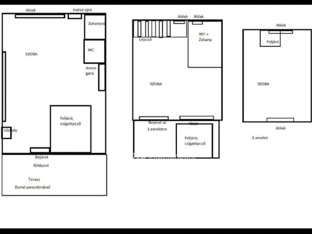
A nyaraló 50 m2 alapterületű, 3 szintes, összesen kb 90 m2-es, mely 898 m2-es telken helyezkedik el. Az épület téliesített, állandó lakhatásra alkalmas szigetelt faház, terasszal.
Az ingatlanban 2 szoba, nappali konyhával, zuhanyzós fürdőszoba, 2 wc található.
Keletre néző ablakaiból gyönyörű örök panorámás kilátás esik a Dunára. Vezetékes víz, villany a házban, emésztő a ház mellett lett kiépítve.
2 autónak alkalmas betonozott beálló a ház előtt található.
Iskola, óvoda, bölcsőde 15 perc séta.
Az M6-os ill. 6-os út közelségének köszönhetően könnyen megközelíthető Dunaújváros, illetve Budapest és környéke is.
A faluban sportpálya, játszótér, orvosi rendelő is van.
Megtekintésért, vagy ha kérdése lenne, forduljon hozzám bizalommal, akár hétvégén is.
Referenciaszám:M298308
Tulajdonságok
Kertes ház
Átlagos
Elektromos
1974
Nem adta meg a hirdető
Vedd fel a kapcsolatot a hirdetővel

Pásztor Hajnalka
OTPip - Szigetszentmiklós Tököli út 19.B - OTP Ingatlanpont Iroda
Az iroda összes hirdetése +36 70 615 3
Hitelkalkulátor
Második évtől
71 008 Ft A 13. hónaptól
7,99%
Végig fix Futamidő: 20 év Banki visszahívás
Az OTP Bank munkatársai a neked megfelelő napszakban veszik fel veled a kapcsolatot.Vedd fel a kapcsolatot a hirdetővel

Pásztor Hajnalka
OTPip - Szigetszentmiklós Tököli út 19.B - OTP Ingatlanpont Iroda
Az iroda összes hirdetése +36 70 615 3
Vedd fel a kapcsolatot a hirdetővel

Pásztor Hajnalka
OTPip - Szigetszentmiklós Tököli út 19.B - OTP Ingatlanpont Iroda
Az iroda összes hirdetése +36 70 615 3
UI_KIT.CHARACTER_COUNTER__COMPONENT.ACTUAL_CHARACTER__SR_ONLY UI_KIT.CHARACTER_COUNTER__COMPONENT.MAXIMUM_CHARACTER__SR_ONLY
Hasonló eladó ingatlanok Kulcson
Frissítve: ma
20
16,5 millió Ft 183,3 ezer Ft/m²
Eladó üdülő, hétvégi ház, Kulcs

Feltöltve: 1 éve
1
16,5 millió Ft 330 ezer Ft/m²
Eladó üdülő, hétvégi ház, Kulcs
Frissítve: 17 napja
20
16,5 millió Ft 183,3 ezer Ft/m²
Eladó üdülő, hétvégi ház, Kulcs


Fedezd fel a
hasonló hirdetéseket!Még további üdülő és hétvégi házak Fejér megyében 16,5 M Ft körüli értékben
Tovább a hirdetésekhez Frissítve: 3 napja
7
14,99 millió Ft 416,4 ezer Ft/m²
Eladó üdülő, hétvégi ház, Kulcs, Sőtér sétány

Frissítve: 17 napja
11
16,5 millió Ft 471,4 ezer Ft/m²
Eladó üdülő, hétvégi ház, Kulcs
Frissítve: 1 napja
6
16,5 millió Ft 220 ezer Ft/m²
Eladó üdülő, hétvégi ház, Kulcs

