

+1 fotó
Hirdetéskód: 8265429
Referenciaszám: T036814-4757353
Frissítve: 6 napja
Nadap eladó külterületi telek 60001 m² telekterületű: 399 millió Ft
399 millió Ft
60001 m²
Eladó telek Nadap
Szuper befektetési lehetőség!
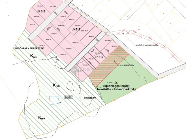
Eladó Nadap- Velence határán egy fejlesztési terület melynek a nagysága 60001 négyzetméter.
A fejlesztési területen korábban folytatott felszíni bányászat az eredeti terepfelszínt jelentősen átalakította, így annak eredeti állapota ma csak fejlesztési terület déli részén, kisebb területen, a közigazgatási határvonal mentén található meg.
Jelenleg a HÉSZ szerint Má–1 általános mezőgazdasági terület besorolású, bármilyen mezőgazdasági művelésre, hasznosításra alkalmatlan, nagy részben spontán vissza erdősült vagy parlag terület.
A fejlesztési terület délről, északnyugatról és északkeletről részben EV–1 védelmi erdőterületek, Üh_1 területek, Kspl Lovassport területek határolják.
Településrendezési eszközök módosításának tartalma, szabályozási koncepció:
A fejlesztési cél megvalósulásához a Nadap község hatályos településszerkezeti tervét helyi építési szabályzatát és a belterületi szabályozási tervet módosítani kell.
Természetesen már az előkészületek megkezdődtek tárgyalások egyeztetések folyamatosak.
A területen a következő tervezett területfelhasználási övezetek lesznek kialakítva módosítás után:
18 db – LKE–4 kertvárosi lakóterület
Beépítési módja: szabadon álló
Kialakítható minimum telekterület darabonként 1200 négyzetméter .
Max: beépíthetőség: 15%
terepszint alatti max. beépíthetőség: 15%
Max épületmagasság: 5 méter.
Min zöldterület: 60%
KB-rek: 5 különleges rekreációs terület:
Beépítési mód: Szabadon álló
Kialakítható min telekterület: 7500 négyzetméter
Max. beépíthetőség: 10%
terepszint alatt max. beépíthetőség: 10%
Max. épület magasság: 6,50 Méter
Min zöldterület: 60%
Ek-1 Közjóléti erdő:
Beépítési mód: Szabadon álló
Kialakítható min telekterület: kialakult
Max. beépíthetőség: 0.5 %
terepszint alatt max. beépíthetőség: 0%
Max. épület magasság:4.50 Méter
Min zöldterület: 95%
Az ingatlan teljes céggel együtt eladó. A mellékelt terveken jól látszik a várható telkek területek kialakítása. Mindegyik telek külön helyrajzi számmal fog rendelkezni a HÉSZ módosítás után.
A közművek közül a területtől a víz 100 méterre, a villany 300 méterre található.
Bármilyen kérdéssel kapcsolatban keressen bizalommal.
Tulajdonságok
Külterületi telek
Vedd fel a kapcsolatot a hirdetővel
+36 70 465 6
Hitelkalkulátor
Második évtől
1 779 921 Ft A 13. hónaptól
8,49%
Végig fix Futamidő: 20 év Banki visszahívás
Az OTP Bank munkatársai a neked megfelelő napszakban veszik fel veled a kapcsolatot.Vedd fel a kapcsolatot a hirdetővel
+36 70 465 6
Vedd fel a kapcsolatot a hirdetővel
+36 70 465 6
UI_KIT.CHARACTER_COUNTER__COMPONENT.REMAINING_SPACE__SR_ONLYUI_KIT.CHARACTER_COUNTER__COMPONENT.MAXIMUM_CHARACTER__SR_ONLY
Hasonló eladó ingatlanok Nadapon
Frissítve: 2 napja

11
399 M Ft
Eladó telek, Nadap

Frissítve: 11 napja

2
399 M Ft 6 650 Ft/m²
Eladó telek, Nadap

Frissítve: 8 napja

3
377,52 M Ft
Eladó telek, Bicske

Frissítve: 8 napja

1
386 M Ft
Eladó telek, Bicske

Frissítve: 12 napja

5
360 M Ft 1 871 Ft/m²
Eladó telek, Seregélyes

Frissítve: 11 napja

7
425 M Ft 591 099 Ft/m²
Eladó telek, Budapest VIII. kerület, József utca


Töltsd fel hirdetésed ingyenesen!
Egyszerű