+15 fotó
Hirdetéskód: 8924832
Referenciaszám: 674400282
Feltöltve: 2 napja
Budapest X. kerület eladó panellakás 3 szobás: 68,7 millió Ft
68,7 millió Ft
1 010 294 Ft/m²
68 m²
3 szoba
9. emelet
Budapest, Újhegyi lakótelep
CSAK NÁLUNK!
68m²-es, 3 szobás, erkélyes lakás eladó az Újhegyi lakótelepen – akár azonnali bérleti hozammal!
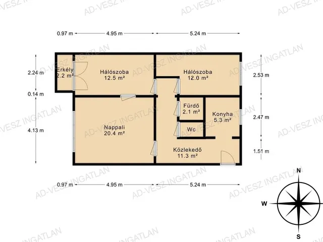
Budapest X. kerületében, az Újhegyi lakótelep kedvelt részén, a Dombtető utcában eladó egy 68m²-es, nappali + 2 hálószobás, erkélyes panellakás, amely panelprogramon átesett, szigetelt társasház 9. emeletén.
Az 1980-as években épült, lapostetős épület 10cm-es külső hőszigetelést kapott, ami kedvezőbb rezsiköltséget, és komfortosabb lakókörnyezetet biztosít.
A lakás elosztása:
-tágas nappali
-2 külön nyíló hálószoba
-konyha
-előszoba / közlekedő
-fürdőszoba
-külön WC
-erkély
Főbb jellemzők:
-68m² alapterület
-fa nyílászárók
-távfűtés
-átlagos állapot
-jól alakítható alaprajz
A lakás teljes berendezéssel, és elektromos háztartási gépekkel együtt eladó (mosógép, hűtő, tűzhely), így akár azonnal használható, vagy kiadható.
Befektetőknek különösen jó lehetőség:
Az ingatlanban jelenleg bérlők laknak, akik szívesen maradnának, így az új tulajdonos számára azonnali bérleti bevétel is elérhető.
Az Újhegyi lakótelep zöld, parkos környezet, a közelben:
boltok és bevásárlási lehetőségek
iskola, óvoda
parkok, játszóterek
jó tömegközlekedési kapcsolatok
Az átlagos állapotú lakás a felújított liftes lépcsőházból közelíthető meg, egy zárható loggián keresztül, melyen egy kedves szomszéddal kell csak osztozni.
Az ingatlan fa biztonsági bejárati ajtóval, és jó állapotú fa nyílászárókkal rendelkezik. Az otthon melegét távfűtés biztosítja.
A körbejárható lakás elosztása praktikus.
Az előszoba, és közlekedő tágas 11,5m², megfelelő tárolási lehetőségeket biztosít, beépített szekrényekkel van ellátva, járólappal burkolt.
A világos konyha önálló helyiségben kapott helyet, praktikusan berendezhető, jól használható.
A fürdőszoba, és a WC külön helyiségben található, ami a mindennapi használat során jelentős kényelmi szempont.
A kényelmes, és hangulatos parkettás nappali 21m2-es.
A két kisebb szobából az egyik 12m²-es parkettával burkolt, dolgozó szobának, vendégszobának, gyerekszobának, vagy hálószobának is tökéletesen alkalmas, ehhez tartozik egy 3m2-es beépített erkélly.
A másik hálószoba 12,5m²-es, parkettával burkolt.
A lakás alacsony rezsivel fenntartható. A jelenlegi közös költség kb. 18000Ft, ami magába foglalja a közös épületrészek fogyasztását, karbantartását, a takarító díját, és a felújítási alapot is. A távfűtés átlag 13000 Ft/hó. Az áram, és a víz egyéni fogyasztás szerint, mérőóra alapján fizetendő. A gáztűzhely esetében negyedévente kell átalányt fizetni, melynek összege 2000 Ft/hó. Minden kábeltévé, és internet szolgáltató elérhető a házban.
A környék infrastruktúrája kimagasló: orvosi rendelők, játszóterek, bölcsőde, óvoda, iskolák, gyógyszertárak, Spar, Penny, Lidl, éttermek, pékségek, számtalan kis üzlet közül tetszése szerint választhat. Egyéb vásárlások és szolgáltatások tekintetében a KÖKI Terminál áll rendelkezésre.
A kikapcsolódást segítő, szépségéről méltán híres Újhegyi tó és sétány, parkok és zöldterületek mind-mind karnyújtásnyira található.
Az M5, M4 és M0 autópálya gyorsan megközelíthető.
A tömegközlekedés (buszok, M3 metró) könnyen elérhető, ugyanakkor az autóval közlekedők számára is kedvező az elhelyezkedés.
Az utcai parkolás ingyenes, ami a fővárosban komoly előnyt jelent.
A lakás május 1-től, megegyezés alapján költözhető, vagy bérbe adható.
Kiváló választás lehet családok számára, akik világos, jól élhető lakást keresnek, valamint befektetőknek is, akik hosszú távon értékálló ingatlant szeretnének vásárolni stabil környezetben.
Összességében egy ritka adottságokkal rendelkező, panorámás, bár átlagos állapotú, igény szerint felújítandó lakásról van szó, amely elhelyezkedése, elosztása és kedvező kínálati ára miatt kiemelkedik a környék kínálatából!
További információért, és megtekintés egyeztetéshez keressen, akár hétvégén is!
Sinkóné Varga Klára
+36-20/432-1227
Tulajdonságok
Panellakás
1
Átlagos
Távfűtés
3 m²
Nem adta meg a hirdető
Vedd fel a kapcsolatot a hirdetővel
+36 20 432 1
Hitelkalkulátor
Második évtől
295 653 Ft A 13. hónaptól
7,99%
Végig fix Futamidő: 20 év Banki visszahívás
Az OTP Bank munkatársai a neked megfelelő napszakban veszik fel veled a kapcsolatot.Hitelfelvétel esetén akár egy héttel rövidebb lehet az ügyintézés.
Ez az ingatlan a nálunk meglévő adatok alapján azonnali értékbecslésre alkalmas lehet.
A becslés a hirdető által megadott adatokon alapul. A jelen tájékoztatás nem minősül ajánlattételnek és nem teljes körű, az egyes feltételek a hitelbírálat eredményétől függően változhatnak. Kérjük, a részletekről tájékozódj az OTP Bank fiókjaiban vagy az OTP Bank honlapján közzétett vonatkozó Üzletszabályzatokból és Hirdetményekből.
Vedd fel a kapcsolatot a hirdetővel
+36 20 432 1
Vedd fel a kapcsolatot a hirdetővel
+36 20 432 1
UI_KIT.CHARACTER_COUNTER__COMPONENT.ACTUAL_CHARACTER__SR_ONLY UI_KIT.CHARACTER_COUNTER__COMPONENT.MAXIMUM_CHARACTER__SR_ONLY
Hasonló eladó ingatlanok Budapest X. kerületben
Frissítve: 10 hónapja
16
Kincsem by Bayer
69,9 M Ft 1 553 333 Ft/m²
Eladó lakás, Budapest X. kerület, Gyógyszergyári út 6-12.
Frissítve: 8 hónapja
16
Kincsem by Bayer
71 M Ft 1 145 161 Ft/m²
Eladó lakás, Budapest X. kerület, Gyógyszergyári út 6-12.
Frissítve: 8 hónapja
16
Kincsem by Bayer
69,9 M Ft 1 059 091 Ft/m²
Eladó lakás, Budapest X. kerület, Gyógyszergyári út 6-12.

Fedezd fel a
hasonló lakásokat!Még további lakások Budapest X. kerületben 68,7 M Ft körüli értékben
Tovább a hirdetésekhez Frissítve: 8 hónapja
16
Kincsem by Bayer
65 M Ft 1 178 728 Ft/m²
Eladó lakás, Budapest X. kerület, Gyógyszergyári út 6-12.
Frissítve: 8 hónapja
16
Kincsem by Bayer
67 M Ft 1 178 728 Ft/m²
Eladó lakás, Budapest X. kerület, Gyógyszergyári út 6-12.
Frissítve: 17 napja
9
63,9 M Ft 852 000 Ft/m²
Eladó lakás, Budapest X. kerület

