+17 fotó
Hirdetéskód: 8984441
Feltöltve: ma
Budapest XI. kerület eladó panellakás 1+2 fél szobás: 69,99 millió Ft
69,99 millió Ft
1,32 millió Ft/m²
53 m²
1+2 fél szoba
földszint
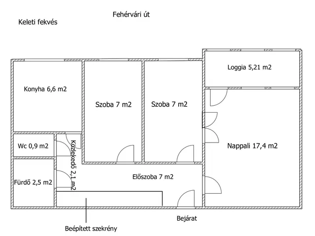
1+2 félszobás lakás a Fehérvári úton a Savoya parkhoz közel
Eladó Budapest XI. kerületének egyik legkedveltebb részén, a Fehérvári úton, mindössze néhány perces távolságra a Savoya Parktól egy 53 m²-es, 1+2 félszobás, loggiás lakás, amely kiváló adottságainak és elhelyezkedésének köszönhetően remek lehetőséget kínál mind saját otthont keresők, mind pedig befektetők számára.
Az ingatlan a földszinten található, alatta fűtött pince húzódik, amely hozzájárul a lakás kedvező hőérzetéhez és energetikai tulajdonságaihoz.
A lakás közepes állapotú, azonban a fontosabb korszerűsítések már megtörténtek: műanyag redőnyös nyílászárók kerültek beépítésre, a villamosvezetékeket teljes egészében cserélték, melyek a falban lettek elvezetve, továbbá friss tisztasági festés is várja az új tulajdonost.
Az ingatlan elosztása praktikus és jól kihasználható: tágas nappali és két külön nyíló hálószoba biztosítja a kényelmes mindennapokat. A beépített loggia igény szerint könnyedén visszaalakítható eredeti funkciójára, de akár a nappalival is teljesen egybenyitható, így még nagyobb, világosabb és szellősebb közösségi tér alakítható ki.
A ház panelprogramos, a korszerűsítés teljes összege rendezve lett, továbbá a fűtés távhővel, egyedi mérőórákkal történik, amely kiválóan szabályozható és gazdaságos működést garantál.
A társasház rendezett, folyamatosan karbantartott, szövetkezeti formában működik, ahol a közös képviselet kiemelten odafigyel a ház állapotára és lakóközösségének igényeire.
A fenntartási költségek kedvezőek: a közös költség mindössze 17.500 Ft, a távfűtés díja az egyedi mérésnek köszönhetően jellemzően 10.000 Ft alatt marad, a gáz készenléti díja pedig 4.225 Ft.
A lakáshoz tartozik egy 14 m²-es saját, fűtött pincehelyiség is, amely jelenleg kizárólagos használatban van. A társasház szabályzata alapján tulajdonosváltáskor, amennyiben a lakók egyike sem tart igényt a pince használatára, az új tulajdonos havi 800 Ft ellenében továbbra is élvezheti annak kizárólagos használatát – ez kivételes tárolási lehetőséget és extra kényelmet biztosít.
A környék infrastruktúrája kiemelkedően jó: néhány perc alatt több bevásárlási lehetőség (LIDL, COOP, a hamarosan megnyíló piac) elérhető, a villamosmegálló közelségének köszönhetően pedig a Savoya Park mindössze 5 perc alatt megközelíthető. A környezet rendezett, zöldövezeti elemekkel, kényelmes közlekedési kapcsolatokkal és minden szükséges szolgáltatással.
Az ingatlan irányára: 69.990.000 Ft.
A további részletekért kérem érdeklődjön telefonon.
Tulajdonságok
Panellakás
10
Átlagos
Távfűtés egyedi méréssel
5,2 m²
C
Nincs
20 000 Ft/hó
Vedd fel a kapcsolatot a hirdetővel
+36 20 265 0
Hitelkalkulátor
Második évtől
301 205 Ft A 13. hónaptól
7,99%
Végig fix Futamidő: 20 év Banki visszahívás
Az OTP Bank munkatársai a neked megfelelő napszakban veszik fel veled a kapcsolatot.Hitelfelvétel esetén akár egy héttel rövidebb lehet az ügyintézés.
Ez az ingatlan a nálunk meglévő adatok alapján azonnali értékbecslésre alkalmas lehet.
A becslés a hirdető által megadott adatokon alapul. A jelen tájékoztatás nem minősül ajánlattételnek és nem teljes körű, az egyes feltételek a hitelbírálat eredményétől függően változhatnak. Kérjük, a részletekről tájékozódj az OTP Bank fiókjaiban vagy az OTP Bank honlapján közzétett vonatkozó Üzletszabályzatokból és Hirdetményekből.
Vedd fel a kapcsolatot a hirdetővel
+36 20 265 0
Vedd fel a kapcsolatot a hirdetővel
+36 20 265 0
UI_KIT.CHARACTER_COUNTER__COMPONENT.ACTUAL_CHARACTER__SR_ONLY UI_KIT.CHARACTER_COUNTER__COMPONENT.MAXIMUM_CHARACTER__SR_ONLY
Hasonló eladó ingatlanok Albertfalva városrészben
Frissítve: 5 napja
20
69,9 millió Ft 1,55 millió Ft/m²
Eladó lakás, Budapest XI. kerület, Albertfalva

Frissítve: 8 napja
14
67,9 millió Ft 1,41 millió Ft/m²
Eladó lakás, Budapest XI. kerület, Albertfalva, Sáfrány utca
Frissítve: 1 éve
1
65,5 millió Ft 1,39 millió Ft/m²
Eladó lakás, Budapest XI. kerület, Albertfalva

Fedezd fel a
hasonló lakásokat!Még további lakások Budapest XI. kerület, Albertfalva városrészben 69,99 M Ft körüli értékben
Tovább a hirdetésekhez Frissítve: 10 napja
14
68 millió Ft 1,42 millió Ft/m²
Eladó lakás, Budapest XI. kerület, Albertfalva, Sáfrány utca 54
Frissítve: 2 napja
20
69,9 millió Ft 1,55 millió Ft/m²
Eladó lakás, Budapest XI. kerület, Albertfalva

Feltöltve: 14 napja
18
63,9 millió Ft 1,52 millió Ft/m²
Eladó lakás, Budapest XI. kerület, Albertfalva

