+16 fotó
Hirdetéskód: 8982959
Referenciaszám: M322616
Frissítve: 1 napja
Budapest XV. kerület eladó panellakás 1+2 fél szobás: 61,99 millió Ft
61,99 millió Ft
1,13 millió Ft/m²
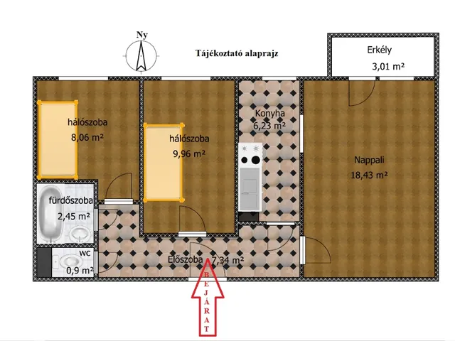
55 m²
1+2 fél szoba
1. emelet
Panel, kertvárosi környezetben!
Kertvárosi környezet és a panelok kényelme ötvözve egy ingatlanban!
Vásároljon saját igényeire szabható lakást Rákospalota-Kertvárosában! Ezen a környéken ritkaságnak számít a hasonló adottságú, eladó ingatlan, NE MARADJON LE RÓLA!
Egy jó állapotú, az elmúlt években folyamatosan karbantartott, felújított házban, mindössze másfél emeletnyi lépcsőzéssel jutunk el ehhez a nappali + 2 hálószobás lakáshoz.
Elrendezését tekintve minden helyiség különnyíló, a 3 szobán kívül még egy ablakos konyha, fürdőszoba és wc szolgálja kényelmét. Valamint egy, a nappaliból nyíló erkély is lehetőséget biztosít az ejtőzésre.
Az ingatlan felújítandó állapotú:
A helyiségek festése és a szobák padlóburkolása után akár költözhető állapotúvá tehető, de hosszútávon cserélendő a víz-, és villanyhálózat valamint a nyílászárók is.
Sétatávolságra lévő tömegközlekedési eszközökkel közvetlenül elérhető Újpest-Központ (170), Bosnyák tér (124,125), Mexikói út (225) valamint a Buapest-Nyugati – Vác közötti vasútvonal állomásai. Az éjszakai órákban is könnyedén közlekedhet a 950-es busszal.
A környéken ingyenes a parkolás.
Gyemekes családoknak is tökéletes választás, mivel óvoda és általános iskola is van a közvetlen közelben.
Az ingatlan megfelel az Otthon_Start_Program (Fix3% Lakáshitel Program) feltételeinek.
Felkeltette érdeklődését az általam kínált ingatlan?
Keressen bizalommal!
Ha épp nem tudom felvenni, ne aggódjon! Visszahívom!
Ha eladó ingatlant keres vegye igénybe ingyenes és kötelezettségmentes szolgáltatásunkat,
melynek keretében megkönnyítjük Önnek új otthona megtalálását.
Az igényfelmérést követően megkezdődik az Önnek leginkább megfelelő ingatlan felkutatása.
Amennyiben jelenlegi ingatlana értékesítésében is segítségére lehetek,
ezen ügyekben is keressen bizalommal!
Az OTP Ingatlanpont, mint egyetlen közvetlen banki hátterű ingatlanközvetítő társaság teljes körű ügyintézéssel áll az eladók és a vevők rendelkezésére! A kínálatunkból választott ingatlan finanszírozásához minősített fogyasztóbarát, piaci és kedvezményes hitel- és lízingkonstrukciókat kínálunk (lakásvásárlási hitel, szabad felhasználású hitel, Otthon Start Program, Babaváró hitel, CSOK Plusz-intézés, Otthonfelújítási Támogatás, egyéb felújítási hitelek).
Az adásvételi szerződés megkötéséhez igény szerint megbízható ügyvédi közreműködést biztosítunk, és segítséget nyújtunk a birtokbaadáshoz kapcsolódó ügyek intézéséhez is.
Amennyiben felkeltette érdeklődését az általam kínált ingatlan, keressen bizalommal!
Tulajdonságok
Panellakás
4
Felújítandó
Házközponti
1983
3 m²
Nem adta meg a hirdető
Vedd fel a kapcsolatot a hirdetővel
+36 30 386 4
Hitelkalkulátor
Második évtől
266 777 Ft A 13. hónaptól
7,99%
Végig fix Futamidő: 20 év Banki visszahívás
Az OTP Bank munkatársai a neked megfelelő napszakban veszik fel veled a kapcsolatot.Hitelfelvétel esetén akár egy héttel rövidebb lehet az ügyintézés.
Ez az ingatlan a nálunk meglévő adatok alapján azonnali értékbecslésre alkalmas lehet.
A becslés a hirdető által megadott adatokon alapul. A jelen tájékoztatás nem minősül ajánlattételnek és nem teljes körű, az egyes feltételek a hitelbírálat eredményétől függően változhatnak. Kérjük, a részletekről tájékozódj az OTP Bank fiókjaiban vagy az OTP Bank honlapján közzétett vonatkozó Üzletszabályzatokból és Hirdetményekből.
Vedd fel a kapcsolatot a hirdetővel
+36 30 386 4
Vedd fel a kapcsolatot a hirdetővel
+36 30 386 4
UI_KIT.CHARACTER_COUNTER__COMPONENT.ACTUAL_CHARACTER__SR_ONLY UI_KIT.CHARACTER_COUNTER__COMPONENT.MAXIMUM_CHARACTER__SR_ONLY
Hasonló eladó ingatlanok Rákospalota városrészben
Frissítve: 6 hónapja
1
58,49 millió Ft 1,5 millió Ft/m²
Eladó lakás, Budapest XV. kerület, Rákospalota
Feltöltve: 1 éve
1
65 millió Ft 1,12 millió Ft/m²
Eladó lakás, Budapest XV. kerület, Rákospalota
Frissítve: 10 hónapja
1
62 millió Ft 1,03 millió Ft/m²
Eladó lakás, Budapest XV. kerület, Rákospalota, Illyés Gyula utca 24

Fedezd fel a
hasonló lakásokat!Még további lakások Budapest XV. kerület, Rákospalota városrészben 61,99 M Ft körüli értékben
Tovább a hirdetésekhez Frissítve: 6 hónapja
1
58,5 millió Ft 1,5 millió Ft/m²
Eladó lakás, Budapest XV. kerület, Rákospalota
Frissítve: 3 napja
20
66,9 millió Ft 1,17 millió Ft/m²
Eladó lakás, Budapest XV. kerület, Rákospalota, Vasgolyó utca

Frissítve: 4 hónapja
8
59 millió Ft 819,4 ezer Ft/m²
Eladó lakás, Budapest XV. kerület, Rákospalota

