+11 fotó
Hirdetéskód: 8976695
Referenciaszám: M326066-5199209
Feltöltve: ma
Győr eladó panellakás 2+1 fél szobás: 65 millió Ft
65 millió Ft
1 031 746 Ft/m²
63 m²
2+1 fél szoba
1. emelet
Eladó Lakás, Győr
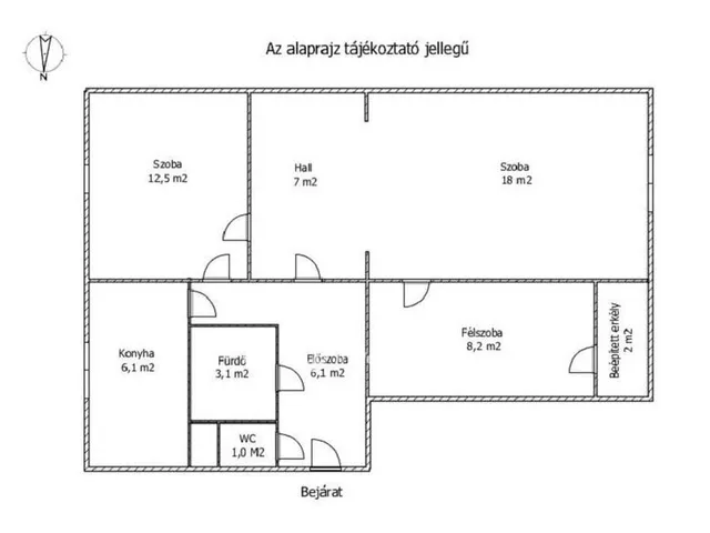
Eladásra kínálok Győrben, a Szigethy Attila úton egy 63 nm-es, 2+1 félszobás, hallos, beépített erkélyes lakást, amely egy 10 emeletes, távfűtött épület első emeletén található. A lakás rendkívül csendes, az egyik szoba és a konyha nyugodt, parkos hátsó részre néz. Az épület 2014-ben teljes energetikai korszerűsítésen esett át, amely magában foglalta a külső szigetelést és a nyílászárók cseréjét. Az erkély a kisszobával akár egybenyitható, így tovább növelhető a térérzet. 2022-ben megtörtént a lakásokat ellátó függőleges közművezetékek (hideg- és melegvíz, csatorna) cseréje is, a lakás egyedi vízmérőkkel rendelkezik.
A környék infrastruktúrája kiváló: a közelben boltok, iskola, óvoda, orvosi rendelő és gyógyszertár is megtalálható, a parkolás pedig közterületen ingyenes. A lakás jó elhelyezkedésének és adottságainak köszönhetően ideális választás otthonnak vagy befektetésnek is.
Az ingatlan megfelel az Otthon Start Hitelprogram feltételeinek.
További információért és megtekintésért keressen bizalommal!
Referenciaszám: M326066
Tulajdonságok
Panellakás
Jó állapotú
Távfűtés egyedi méréssel
1980
A+
Vedd fel a kapcsolatot a hirdetővel
+36 30 650 1
Hitelkalkulátor
Második évtől
279 730 Ft A 13. hónaptól
7,99%
Végig fix Futamidő: 20 év Banki visszahívás
Az OTP Bank munkatársai a neked megfelelő napszakban veszik fel veled a kapcsolatot.Hitelfelvétel esetén akár egy héttel rövidebb lehet az ügyintézés.
Ez az ingatlan a nálunk meglévő adatok alapján azonnali értékbecslésre alkalmas lehet.
A becslés a hirdető által megadott adatokon alapul. A jelen tájékoztatás nem minősül ajánlattételnek és nem teljes körű, az egyes feltételek a hitelbírálat eredményétől függően változhatnak. Kérjük, a részletekről tájékozódj az OTP Bank fiókjaiban vagy az OTP Bank honlapján közzétett vonatkozó Üzletszabályzatokból és Hirdetményekből.
Vedd fel a kapcsolatot a hirdetővel
+36 30 650 1
Vedd fel a kapcsolatot a hirdetővel
+36 30 650 1
UI_KIT.CHARACTER_COUNTER__COMPONENT.ACTUAL_CHARACTER__SR_ONLY UI_KIT.CHARACTER_COUNTER__COMPONENT.MAXIMUM_CHARACTER__SR_ONLY
Hasonló eladó ingatlanok Nádorváros városrészben
Feltöltve: 11 hónapja
1
63,9 M Ft 1 141 071 Ft/m²
Eladó lakás, Győr, Nádorváros
Frissítve: 12 napja
20
59,8 M Ft 854 286 Ft/m²
Eladó lakás, Győr, Nádorváros

Feltöltve: 5 hónapja
1
68 M Ft 1 079 365 Ft/m²
Eladó lakás, Győr, Nádorváros

Fedezd fel a
hasonló lakásokat!Még további lakások Győrben 65 M Ft körüli értékben
Tovább a hirdetésekhez Frissítve: 6 napja
15
61,9 M Ft 910 294 Ft/m²
Eladó lakás, Győr, Nádorváros

Feltöltve: 2 hónapja
1
60 M Ft 1 276 596 Ft/m²
Eladó lakás, Győr, Nádorváros, Tihanyi Árpád út 10/A
Frissítve: ma
17
59,9 M Ft 921 538 Ft/m²
Eladó lakás, Győr, Nádorváros


