+2 fotó
Hirdetéskód: 8950305
Referenciaszám: 3621387-5183535
Frissítve: ma
Kecskemét eladó raktár 200 m² alapterületű: 80 millió Ft
80 millió Ft
400 ezer Ft/m²
200 m²
ELADÓ Gksz terület felépítményekkel!
Kecskeméten a Kisfáiban ELADÓ egy könnyen megközelíthető helyen lévő Gksz területi besorolású ingatlan felépítményekkel.
Jellemzői:
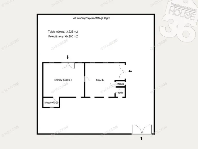
- Telek mérete: 3.226 m2
- Összes felépítmény: kb.200 m2
- Közművek: gáz, villany (3x32A), víz
- Falazat: tégla
- Lokáció: aszfaltozott útról kb.200 méter járható földút, M5 autópályától kb.10 km, Mercedes gyártól kb.7 km
- Beépíthetőség: 40% (össz.: 1.290,4 m2)
- Kerítéssel ellátott
- Bejáratok (kapuk) a területre alkalmasak a kamionos forgalomhoz is
- Az ingatlan környezetében több működő ipari, kereskedelmi vállalkozás található
Jelenleg az épület egyik fele saját használatra asztalos műhelyként üzemel és a másik felében bérlők vannak.
Figyelem az adatlap megbízónktól kapott adatok alapján készült, pontosságáért felelősséget nem tudunk vállalni!
Szolgáltatásaink Kereső ügyfeleink számára INGYENESEK!
Amennyiben eladó-kiadó ingatlana van vagy finanszírozási megoldást keres , hívjon, megtaláljuk a legjobb lehetőséget Önnek!
A HOUSE36 kínálatában található összes ingatlannal kapcsolatban tudok felvilágosítást nyújtani!
Hívjon bizalommal!
Az iroda legfrissebb, aktuális kínálatát a HOUSE36 saját weboldalán találja!
Tulajdonságok
Raktár
Jó állapotú
Egyéb
Nem adta meg a hirdető
Vedd fel a kapcsolatot a hirdetővel
+36 70 336 3
Vedd fel a kapcsolatot a hirdetővel
+36 70 336 3
Vedd fel a kapcsolatot a hirdetővel
+36 70 336 3
UI_KIT.CHARACTER_COUNTER__COMPONENT.ACTUAL_CHARACTER__SR_ONLY UI_KIT.CHARACTER_COUNTER__COMPONENT.MAXIMUM_CHARACTER__SR_ONLY
Hasonló eladó ingatlanok Kisfái városrészben
Frissítve: ma
14
74,9 millió Ft 713,3 ezer Ft/m²
Eladó kereskedelmi és ipari ingatlan, Kecskemét
Frissítve: 25 napja
2
74,5 millió Ft 106,4 ezer Ft/m²
Eladó kereskedelmi és ipari ingatlan, Kecskemét

Frissítve: ma
14
74,9 millió Ft 713,3 ezer Ft/m²
Eladó kereskedelmi és ipari ingatlan, Kecskemét

Fedezd fel a
hasonló hirdetéseket!Még további kereskedelmi és ipari ingatlanok Bács-Kiskun megyében 80 M Ft körüli értékben
Tovább a hirdetésekhez Frissítve: 3 hónapja
1
74,99 millió Ft 551,4 ezer Ft/m²
Eladó kereskedelmi és ipari ingatlan, Kecskemét, Belváros, Kossuth tér 6-7
Frissítve: 4 napja
7
85 millió Ft 13,4 ezer Ft/m²
Eladó kereskedelmi és ipari ingatlan, Kecskemét

Frissítve: 1 hónapja
2
74,5 millió Ft 106,4 ezer Ft/m²
Eladó kereskedelmi és ipari ingatlan, Kecskemét

