+10 fotó
Hirdetéskód: 8970617
Referenciaszám: HK-5200633-5200633
Frissítve: ma
Biatorbágy eladó sorház 5 szobás: 145,5 millió Ft
145,5 millió Ft
1,35 millió Ft/m²
108 m²
91 m²
5 szoba
Eladó Lakás, Biatorbágy
Biatorbágy frekventált, csendes, kertvárosias részén, új építésű, lakóparki környezetben ELADÓ egy 2012-ben épült, 4 lakásos társasház, modern kialakítású, belső kétszintes, terasz- és kertkapcsolatos lakása, amely ideális választás lehet gyermekes családok, de akár idősebb generáció részére is.
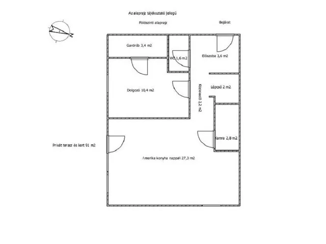
A lakás nettó 108 m2 alapterületű, Nappali+4 szobából áll, praktikus, jól élhető elosztással, valamint a hozzá tartozó, önálló, 91 m2-es kert, ami részben füves, részben térkővel ellátot privát teraszból áll.
Dél-Nyugati fekvésének köszönhetően a lakás meleg, barátságos hangulatot biztosít az itt élők számára. Itt mindent megtalál, ami a hétköznapokban a maximális komfortérzethez szükséges. További előnyök: hatalmas tároló (16,39 m2) helyiség, saját gépkocsi beálló (16 m2) melyet a vételár tartalmaz. Különnyíló, kellemes méretű hálószobák, duplakomfort, beépített gardróbok, valamint tágas, kényelmes Amerika konyhás Nappali.
Földszint:
-előtér
-világos, tágas Amerika konyhás nappali
-dolgozószoba saját gardrobbal
-vendég WC, piszoár, kézmosóval,
-közlekedő.
Emelet:
-3 jó méretű, különnyíló hálószoba, erkéllyel.
-tágas fürdőszoba épített zuhannyal és káddal, innen nyílik a külön mosókonyha és kazán helyiség.
-kényelmes méretű közlekedő.
Főbb műszaki jellemzők:
-kondenzációs kazán
-padló fűtés az emeleti fürdőszobában
-1 db hűtő-fűtő klíma az emeleten
-2 rétegű műanyag nyílászárók, az emeleten szúnyoghálóval ellátva
-alacsony rezsi, minimális közösköltség
A terasz és kertkapcsolat igényesen kialakított, összesen 91 m2-es, részben pázsitos, részben térköves, amely tökéletes helyszíne lehet családi vagy baráti összejöveteleknek.
Lokáció:
Az ingatlan elhelyezkedése több, mint kiváló: minden fontos szolgáltatás, bolt, iskola, óvoda, játszótér és közlekedési lehetőség könnyen elérhető, így ideális választás azok számára, akik nyugodt, mégis kiváló infrastrukturális környezetben szeretnek élni. A település biztonságos, tiszta környezettel és stabil szolgáltatói ellátással rendelkezik. Szeretettel ajánlom ezt a páratlan otthont, mert Biatorbágyon barátságos és segítőkész emberek élnek, így itt Ön is biztonságban és nyugalomban töltheti a mindennapjait.
Az ingatlan per- és tehermentes, azonnal költözhető.
Amennyiben Önnek még el kell adni az ingatlanát, úgy ez esetben is szívesen állok rendelkezésére, kérem, forduljon hozzám bizalommal! Az OTP Ingatlanpont teljes körű ügyintézéssel áll az eladók és a vevők rendelkezésére! A kínálatunkból választott ingatlan finanszírozásához kedvezményes hitelkonstrukciókat, lakástakarék-pénztári megoldásokat kínálunk. CSOK, Babaváró, jelzálog stb. hitel ügyintézést díjmentesen vállalunk. Az adásvételi szerződés megkötéséhez igény szerint megbízható ügyvédi közreműködést biztosítunk, és segítséget nyújtunk az adásvételhez kapcsolódó ügyek intézéséhez. Bővebb információért, illetve a megtekintéssel kapcsolatban kérem, hívjon bizalommal a hét bármelyik napján! Referencia: M326029
Tulajdonságok
Sorház
Felújított
Gázkazán
2012
Nem adta meg a hirdető
Vedd fel a kapcsolatot a hirdetővel

Simon Andrea Éva
OTPip - Érd Bajcsy-Zsilinszky út 160 - OTP Ingatlanpont Iroda
Az iroda összes hirdetése +36 20 311 4
Hitelkalkulátor
Második évtől
626 166 Ft A 13. hónaptól
7,99%
Végig fix Futamidő: 20 év Banki visszahívás
Az OTP Bank munkatársai a neked megfelelő napszakban veszik fel veled a kapcsolatot. A becslés a hirdető által megadott adatokon alapul. A jelen tájékoztatás nem minősül ajánlattételnek és nem teljes körű, az egyes feltételek a hitelbírálat eredményétől függően változhatnak. Kérjük, a részletekről tájékozódj az OTP Bank fiókjaiban vagy az OTP Bank honlapján közzétett vonatkozó Üzletszabályzatokból és Hirdetményekből.
Vedd fel a kapcsolatot a hirdetővel

Simon Andrea Éva
OTPip - Érd Bajcsy-Zsilinszky út 160 - OTP Ingatlanpont Iroda
Az iroda összes hirdetése +36 20 311 4
Vedd fel a kapcsolatot a hirdetővel

Simon Andrea Éva
OTPip - Érd Bajcsy-Zsilinszky út 160 - OTP Ingatlanpont Iroda
Az iroda összes hirdetése +36 20 311 4
UI_KIT.CHARACTER_COUNTER__COMPONENT.ACTUAL_CHARACTER__SR_ONLY UI_KIT.CHARACTER_COUNTER__COMPONENT.MAXIMUM_CHARACTER__SR_ONLY
Hasonló eladó ingatlanok Biatorbágyon
Frissítve: ma
13
150 millió Ft 1,67 millió Ft/m²
Eladó családi ház, Biatorbágy

Frissítve: 2 napja
15
144,9 millió Ft 1,07 millió Ft/m²
Eladó családi ház, Biatorbágy

Frissítve: 9 napja
13
150 millió Ft 1,67 millió Ft/m²
Eladó családi ház, Biatorbágy, Sóskúti út


Fedezd fel a
hasonló házakat!Még további házak Biatorbágyon 145,5 M Ft körüli értékben
Tovább a hirdetésekhez Frissítve: 18 napja
20
157,9 millió Ft 612 ezer Ft/m²
Eladó családi ház, Biatorbágy

Frissítve: 9 napja
18
145 millió Ft 725 ezer Ft/m²
Eladó családi ház, Biatorbágy, Nagy utca

Frissítve: ma
18
145 millió Ft 725 ezer Ft/m²
Eladó családi ház, Biatorbágy

