+3 fotó
Hirdetéskód: 8901594
Frissítve: 29 napja
Budapest XX. kerület eladó sorház 4 szobás: 104,9 millió Ft
104,9 millió Ft
1,17 millió Ft/m²
90 m²
230 m²
4 szoba
Leírás
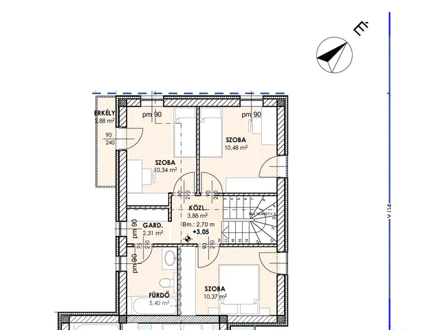
XX. Erzsébeten, az Erzsébetfalvi részen, csendes mellékutcában eladó egy 90 m2-es, (+8 m2 erkély és terasz), nappali plusz 3 hálószobás, 2 fürdőszobás, új építésű,szélső sorházi lakás kb: 240 m2-es saját telekkel, autóbeállóval, 2026 nyári átadással, helyi kivitelezőtől, kedvezményes, bevezető áron! Az ingatlan megvásárlásához minimum 20% önerő szükséges. A képek referenciák, a kivitelező több hasonló házat épített a környéken! A sorházban 3 lakás épül! A fűtést hőszivattyú biztosítja padlófűtésen keresztül!
Melléklet az adás – vételi szerződéshez mely szerves része és nem elkülöníthető:
Burkolatok:
Az árak bruttó árak.
fürdőszoba: csempe ajtómagasságig 7.000.- Ft/m2
kerámia padlóburkolat 7.000/m2
WC: csempe 150 cm-ig 7.000 Ft/m2
kerámia padlóburkolat 7.000 Ft/m2
szobák: laminált parketta vagy szőnyegpadló 6.000 Ft/m2
konyha: laminált parketta 6.000 Ft/m2
előszoba: laminált parketta 6.000 Ft/m2
A burkolásra megadott m2 árak segédanyagokkal együtt értendők (parketta esetében szegéllyel és polifómmal). Az általunk megadott áraktól bármilyen irányú eltérés lehetséges. Amennyiben az alapárat meghaladja a választott burkolat ára, azt a Beruházó nem egyenlíti ki, alapáron felüli összeg megfizetése mindig a Vevő kötelessége. A beruházó által megjelölt szaküzlet csak javaslat, az általunk javasolt partnernél történő burkolat választás esetén, Vevőt nem terheli a helyszínre szállítás feladata. Amennyiben nem az általunk megjelölt partner végzi a burkolatok szállítását, abban az esetben a Vevő feladatkörébe tartozik a burkolatot helyszínre szállítása és annak a lakásba való elhelyezése. Ebben az esetben a burkolati alapárat a Beruházó a burkolóanyagok hiánytalan helyszínre szállítását követően, a cég nevére szóló áfás számla ellenében tudja készpénzben megfizetni Vevő részére. A terasz és erkélyburkolatokat a Beruházó választja ki.
Konyhabútor nem kerül beépítésre.
Festés:
Diszperziós fehér festés
Nyílászárók:
Lakás bejárati ajtó:
1db műanyag biztonsági bejárati ajtó.
Belső nyílászárók:
Ajtók kilincsekkel MDF borítású dekorfóliás vagy erősített CPI fóliával ellátva
(kalkulált ár: 45.000 Ft)
Külső nyílászárók:
Német, műanyag profilú hőszigetelt ablakok, külső felület fehér színben, színazonos külső
párkánnyal, valamint erkélyajtók bukó-nyíló pánttal szerelve, illeszkedő
külső párkánnyal készre szerelve. TOLÓAJTÓK NEM KERÜLNEK BEÉPÍTÉSRE.
Az építési engedélyben szereplő méretekkel.
Általános meghatározás
Víz és fűtésszerelés:
padlófűtés kiépítése
nyomóvezeték: KPE, többrétegű műanyag csőből
lefolyó vezeték: PVC csőből
fűtéscsövezés: műanyag csővel + rézcsővel
vízcsövezés: műanyag csővel + rézcsővel
fűtés: Hőszivattyú-lakásonkénti hőmennyiségmérővel
meleg víz: Hőszivattyú - lakásonkénti vízórával
fürdőszobában: fürdőszobánként 1db elektromos törülközőszárítós radiátor
fürdőkád: 1db akril kád fehér színben, (kalk.ár: 55.000 Ft)
mosdó: 1db Alföldi vagy azzal megegyező (kalk.ár 25.000 Ft)
WC: 1-2 db beépített Geberit vagy azzal megegyező wc
kádtöltő csaptelep: egykaros krómozott kivitelben (kalk.ár: 19.500 Ft)
mosdó csaptelep: egykaros krómozott kivitelben (kalk.ár 19.500 Ft)
1 db mosógép kiállás a fürdőszobában vagy a konyhában elhelyezve
A lakásokban egyedi közműórák kerülnek elhelyezésre:
(hideg-meg víz 1-1 órával, elektromos áram villanyóra, fűtés hőmennyiségmérő) lakásonként önállóan
mérhetők
Elektromos szerelés:
elektromos teljesítmény: 1x 32A / lakás
elektromos hálózat kiépítése műanyag védőcsőben, vezetékekkel szerelve
A konyhában 1 db elektromos tűzhely kiállás 100x100-as kötődobozban
Prodax,Legrand vagy ezzel megegyező típusú elektromos szerelvények:
Konnektorok: Konyha: 4 db, Nappali: 4 db, szobánkként 2 db, közlekedőnkként 1 db,
fürdőszobánkként 2 db vízmentes.
Minden lámpatesthez 1 db kapcsoló
TV csatlakozás minden szobában és a nappaliban kiépítésre kerül
Épületszerkezet kialakítása:
Statikai Tervek szerint kerülnek kialakításra
Födémek: a földszinten vasbeton, az emeleten fafödém. A padlásterek nem lesznek elválasztva egymástól.
Teherhordó falazat: kitöltő falazású LEIER vagy Porotherm 30 N + vázkitöltéssel
Lakásokat elválasztó hangszigetelő falazat: Silka hang gátlóval
Válaszfalak: 10 cm vastagságú LEIER N+F téglából falazva
Külső homlokzat kialakítása:
Dryvit rendszer: 10 cm Nikecell, Dryvit háló ragasztása + fedőszínezés, kiviteli terv szerint
Terasz:
Az építési engedélyben feltüntetett méretű terasz kerül kialakításra.
Teraszok lekerítése korláttal került kivitelezésre.
Tereprendezés:
Tereprendezett terület kialakítása.
Példa, hitelre történő vásárlás esetére:
10% FOGLALÓ KÉSZPÉNZBEN
20% VÉTELÁRRÉSZ ÁTUTALÁSSAL
70% HITEL, VAGY CSOK HITEL.
Fizetési ütemezés készpénzes fizetés esetén:
10 % FOGLALÓ
20 % LEMEZALAP ÉS FÖLDSZINTI FŐFALAK
20 % FÖLDSZINTI FÖDÉM ÉS EMELETI FŐFALAK
10 % BELSŐ VÁLASZFALAK ÉS KÜLSŐ NYÍLÁSZÁRÓK
5 % VILLANY ALAPSZERELÉS ÉS GÉPÉSZETI ALAPSZERELÉS
5% BELSŐ VAKOLÁS
10 % DRYVIT SZIGETELÉS
10 % HIDEG ÉS MELEG BURKOLATOK, BELSŐ NYÍLÁSZÁRÓK
10 % BIRTOKBAADÁSKOR.
Tulajdonságok
Sorház
2
Új építésű
Hőszivattyú
2026
4 m²
4 m²
Nem adta meg a hirdető
Nincs
18 000 Ft/hó
Vedd fel a kapcsolatot a hirdetővel
NI
Nefelejcs Ingatlaniroda Az iroda összes hirdetése
+36 70 638 8
Hitelkalkulátor
Második évtől
451 442 Ft A 13. hónaptól
7,99% 8,49%
Végig fix Futamidő: 20 év Banki visszahívás
Az OTP Bank munkatársai a neked megfelelő napszakban veszik fel veled a kapcsolatot. A becslés a hirdető által megadott adatokon alapul. A jelen tájékoztatás nem minősül ajánlattételnek és nem teljes körű, az egyes feltételek a hitelbírálat eredményétől függően változhatnak. Kérjük, a részletekről tájékozódj az OTP Bank fiókjaiban vagy az OTP Bank honlapján közzétett vonatkozó Üzletszabályzatokból és Hirdetményekből.
Vedd fel a kapcsolatot a hirdetővel
NI
Nefelejcs Ingatlaniroda Az iroda összes hirdetése
+36 70 638 8
Vedd fel a kapcsolatot a hirdetővel
NI
Nefelejcs Ingatlaniroda Az iroda összes hirdetése
+36 70 638 8
UI_KIT.CHARACTER_COUNTER__COMPONENT.ACTUAL_CHARACTER__SR_ONLY UI_KIT.CHARACTER_COUNTER__COMPONENT.MAXIMUM_CHARACTER__SR_ONLY
Hasonló eladó ingatlanok Pesterzsébet városrészben
Frissítve: 1 éve
1
95 millió Ft 633,3 ezer Ft/m²
Eladó családi ház, Budapest XX. kerület, Pesterzsébet, Hosszú utca 60.
Frissítve: 8 hónapja
1
295 000 Euro
105,91 millió Ft 1,06 millió Ft/m²
Eladó családi ház, Budapest XX. kerület, Pesterzsébet
Frissítve: 2 hónapja
1
105 millió Ft 1,24 millió Ft/m²
Eladó családi ház, Budapest XX. kerület, Pesterzsébet

Fedezd fel a
hasonló házakat!Még további házak Budapest XX. kerületben 104,9 M Ft körüli értékben
Tovább a hirdetésekhez Frissítve: 14 napja
17
105 millió Ft 1,07 millió Ft/m²
Eladó családi ház, Budapest XX. kerület, Pesterzsébet

Frissítve: 1 hónapja
19
104,5 millió Ft 950 ezer Ft/m²
Eladó családi ház, Budapest XX. kerület, Pesterzsébet
Frissítve: 14 napja
20
99,9 millió Ft 1,04 millió Ft/m²
Eladó házrész, Budapest XX. kerület, Pesterzsébet

