+17 fotó
Hirdetéskód: 8985260
Referenciaszám: P4379-C1-01-NA-002-5210773
Feltöltve: 2 napja
Cegléd eladó sorház 4 szobás: 73,12 millió Ft
73,12 millió Ft
925,6 ezer Ft/m²
79 m²
34 m²
4 szoba
Eladó ház Cegléd
Nappali + 3 szobás, belső kétszintes lakás. A lakáshoz tartozik egy 8 nm-es fedett terasz és egy 6 nm-es tornác is. Az ingatlanhoz tartozik egy kötelezően megvásárolandó gépkocsi beálló, melynek ára 1,5 millió forint valamint saját udvarrésszel is rendelkezik. A lakóparkon belül játszótér, pihenőpark kerül kialakításra.
- 30-as Porotherm tégla falazat
- 18 cm-es hőszigetelés
- Creaton tetőcserép
- műanyag nyílászárók 3 rétegű üvegezéssel, aluredőnyökkel
- egyedi hőszivattyús hűtés-fűtés padlófűtéssel és fan coillokkal
- lakásonként 3x20A elektromos áram + H tarifa
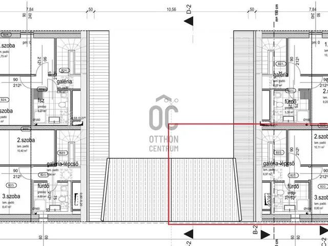
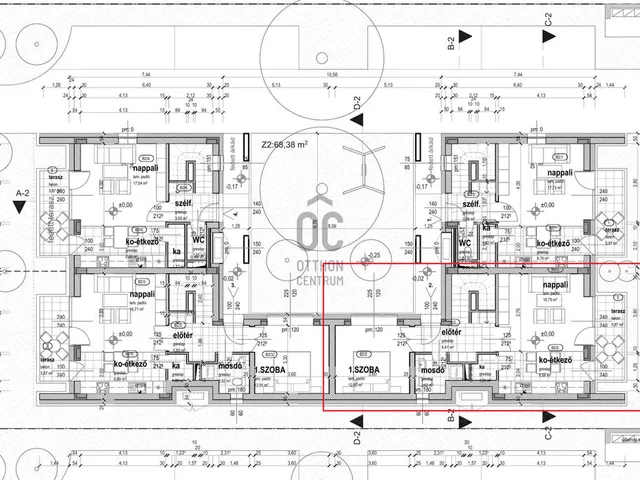
79 m2 alapterületű 4 szobás lakás. A lakás földszint + tetőteres kialakítású.
A földszinten elhelyezett étkezőkonyha és nappali összesített alapterülete meghaladja a 26 m2-t. A nappali mérete
meghaladja a 16 m2-t, amely területből étkező nem foglal el helyet. A lakáshoz nagyméretű, 1, 5 m széles fedett
terasz kapcsolódik, mind az étkezőkonyhából, mind a nappaliból önálló kijutási lehetőséget biztosítottunk a teraszra.
A földszinten a két főtömeget összekötő szárnyban egy szobát alakítottunk ki. A tágas földszinti mosdó helyiségben
helyeztük el a hőszivattyú beltéri egységét. A lakásnak van külön WC-je és kamrája a földszinten.
Az emeletre húzottkarú, gipszbeton szerkezetű lépcső vezet fel. Mindkét tetőtéri szobára 2-2 db tetőablakot terveztünk. A lakások
fűtése/hűtése víz-levegős hőszivattyúval történik , a lakáson belüli hőleadás padlófűtésen és fan-coil berendezésen keresztül történik.
Parkolást a telken belül oldjuk meg szilárd burkolaton, garázsépület nélkül. A hőszivattyú kültéri egységét a földszinti mosdó mellett
a külső falba süllyesztetten alakítottuk ki rácsos takarással, a beltéri egységet az emeleti tágas fürdőszobában helyeztük el.
A kültéri egységet az oldalhatári homlokzatba süllyesztve helyeztük el rácsos takaróajtóval. Az emeleti fürdőszobában mosógép, mosdó WC és tusoló kap helyet.
Projekt bemutatása
Stílus - Minőség - Biztonság - Környezettudatosság - Alacsony fenntartási költségek
Ezek a mai ingatlanfejlesztések legfontosabb hívószavai! Cegléd legújabb lakóparkja ezeknek az elvárásoknak kíván megfelelni szem előtt tartva a közösségépítést és az egyedi igények megvalósítását is!
A Vadvirág Lakópark Cegléd nyugati kapujában épül, közvetlenül természetvédelmi terület szomszédságában, ahol a fokozottan védett Pókbangó nevű ritka orchidea faj legjelentősebb hazai termőterülete található. A városközponttól 2 km-re fekszik, kerékpárúton is megközelíthető. Szupermarket a közvetlen közelben található, a Vasútállomás 3,5 km. A Ceglédi Termálfürdő 5 km, az M4 autópálya legközelebbi felhajtója 3,5 km, Budapest autóval 40 perc alatt elérhető. A terület könnyen megközelíthető mégis csöndes, természetközeli élményt tud nyújtani. A teraszáról a naplementében gyönyörködhet.
Tervek szerint a lakóparkban 40 db lakás épül, 10 db 4 lakásos sorház formájában. A lakások belső kétszintesek, tetőtérbeépítéssel. Minden lakáshoz saját kertrész tartozik. Minden egységhez biztosított egy gépkocsi tárolása garázs, fedett beálló vagy nyitott beálló formájában. A lakások terasszal vagy erkéllyel rendelkeznek. 3 típusú társasház közül lehet majd választani, a lakások mérete 61 és 95 nm közé esik, elrendezésük szerint nappali + 2 vagy 3 hálószobával.
A kortárs stílusú épületek a legjobb minőségű anyagokból készültek, és a legmodernebb technológiákat használtuk a fenntartható életvitel érdekében. Energetikailag a mai kor igényeinek mindenben megfelelnek. Az épületek korszerű homlokzati-, padló- és padlásszigeteléssel, hőszivattyús hűtés-fűtéssel rendelkeznek amit oldalfali fancoilok és padlófűtés biztosítanak. Opcióként az energiahatékonyság növelése érdekében lakásonként egyedi napelemes rendszert is árulunk. A korszerű, színben illeszkedő nyílászárókat alumínium redőnyökkel szereljük.
Az eladó társasházi lakásaink nagyszerű lehetőséget kínálnak mindazoknak, akik egy modern, zöld és közösségi életmódra vágynak. Ezért a saját élettér mellett fontos szerepet játszik a közösségi terek kialakítása is. Saját park, sétányok, szökőkút és játszótér fog gondoskodni a nyugodt pihenésről. A biztonságot a terület körbekerítése és kapukon keresztüli megközelítése fogja garantálni.
A kivitelezés már javában zajlik. Az első húsz lakás már tető alatt van, a belső munkálatokat végzik. Az első lakások átadására várhatóan 2025 őszén kerül sor.
A szerződéskötés részleteiről és feltételeiről személyes találkozó keretében tudom tájékoztatni!
Amennyiben hitel vagy CSOK Plusz érdekli, úgy az Otthon Centrum az ország egyik legnagyobb és legmegbízhatóbb hitelközvetítőjeként teljes körű és
díjmentes hitelügyintézéssel, biztosításkötéssel áll rendelkezésére!
Kérje személyre szabott ajánlatunkat Kollégáinktól!
Tulajdonságok
Sorház
Új építésű
Hőszivattyú
2026
A+
Vedd fel a kapcsolatot a hirdetővel
+36 70 465 6
Hitelkalkulátor
Második évtől
314 675 Ft A 13. hónaptól
7,99% 8,49%
Végig fix Futamidő: 20 év Banki visszahívás
Az OTP Bank munkatársai a neked megfelelő napszakban veszik fel veled a kapcsolatot. A becslés a hirdető által megadott adatokon alapul. A jelen tájékoztatás nem minősül ajánlattételnek és nem teljes körű, az egyes feltételek a hitelbírálat eredményétől függően változhatnak. Kérjük, a részletekről tájékozódj az OTP Bank fiókjaiban vagy az OTP Bank honlapján közzétett vonatkozó Üzletszabályzatokból és Hirdetményekből.
Vedd fel a kapcsolatot a hirdetővel
+36 70 465 6
Vedd fel a kapcsolatot a hirdetővel
+36 70 465 6
UI_KIT.CHARACTER_COUNTER__COMPONENT.ACTUAL_CHARACTER__SR_ONLY UI_KIT.CHARACTER_COUNTER__COMPONENT.MAXIMUM_CHARACTER__SR_ONLY
Hasonló eladó ingatlanok Cegléden
Frissítve: 13 napja
20
75 millió Ft 390,6 ezer Ft/m²
Eladó családi ház, Cegléd
Frissítve: 3 napja
20
Vadvirág Lakópark
73,81 millió Ft 946,3 ezer Ft/m²
Eladó sorház, Cegléd

Frissítve: 6 napja
18
75 millió Ft 300 ezer Ft/m²
Eladó családi ház, Cegléd


Fedezd fel a
hasonló házakat!Még további házak Cegléden 73,12 M Ft körüli értékben
Tovább a hirdetésekhez Frissítve: 6 napja
20
76,8 millió Ft 480 ezer Ft/m²
Eladó családi ház, Cegléd

Frissítve: 3 napja
20
Vadvirág Lakópark
73,12 millió Ft 925,6 ezer Ft/m²
Eladó sorház, Cegléd

Frissítve: 2 hónapja
9
66,9 millió Ft 760,2 ezer Ft/m²
Eladó családi ház, Cegléd
