

+11 fotó
Hirdetéskód: 8629824
Referenciaszám: 216877
Frissítve: ma
Dunaharaszti eladó sorház 4 szobás: 94,9 millió Ft
94,9 millió Ft
1 090 805 Ft/m²
87 m²
544 m²
4 szoba
Dunaharaszti városában újépítésű tároló kapcsolatos sorházi lakások nagy telekkel Eladó!
Minőségi referenciával rendelkező céges építtetőtől eladó, CSOK+ és babaváró igénylésével megvásárolható!
jelenleg 3 sorházi lakás elérhető még:
"A" lakás: 99 900 000 Ft, alapterület: 86,9 m2, telek: 544 m2
"B" lakás: 99 900 000 Ft, alapterület: 86,9 m2, telek: 306 m2
"C" lakás: 99 900 000 Ft, alapterület: 86,9 m2, telek: 373 m2
Tervezett átadás: 2025. szeptember
Az ingatlan:
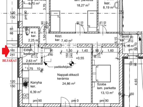
- Elrendezése: Előtér, közlekedő, amerikai konyhás nappali + 3 szoba, kádas fürdőszoba, külön wc, kamra, tároló
- Fűtést és meleg vizet hőszivattyús berendezés biztosítja, padlófűtéses hő leadással,
- Tartószerkezeti falak Porotherm 30 NF tégla, válaszfalak 10 cm Porotherm tégla, kétszeri gletteléssel, fehérre festéssel
- Választható hideg- (4000 Ft/m2), konyhai fali burkolatok (4000 Ft/m2) és melegburkolat (3.500 Ft/m2-ig) hálószoba, közlekedő, igény esetén a nappaliban is
- 15 cm dryvit rendszer.
- Cseréptető fedés, 1 osztályú impregnált faanyag
- Műanyag nyílászárók fehér színben, bukó-nyíló, 3 rétegű hőszigetelt üveggel, rejtett redőnytokkal
- Beltéri ajtók fa szerkezetűek
- Födémszigetelés 25 cm vastagságban.
- Terasz: simitott beton
A redőny, konyhabútor, karnisok, lámpák stb. beszerzése a megrendelők feladata és költsége.
A LEÍRÁS KIZÁRÓLAG TÁJÉKOZTATÓ JELLEGŰ!
Tulajdonságok
Sorház
Új építésű
2025
AA (2016-2023-as besorolás)
Vedd fel a kapcsolatot a hirdetővel
+36 70 365 5
Hitelkalkulátor
Második évtől
408 406 Ft A 13. hónaptól
7,99% 8,49%
Végig fix Futamidő: 20 év Banki visszahívás
Az OTP Bank munkatársai a neked megfelelő napszakban veszik fel veled a kapcsolatot. A becslés a hirdető által megadott adatokon alapul. A jelen tájékoztatás nem minősül ajánlattételnek és nem teljes körű, az egyes feltételek a hitelbírálat eredményétől függően változhatnak. Kérjük, a részletekről tájékozódj az OTP Bank fiókjaiban vagy az OTP Bank honlapján közzétett vonatkozó Üzletszabályzatokból és Hirdetményekből.
Vedd fel a kapcsolatot a hirdetővel
+36 70 365 5
Vedd fel a kapcsolatot a hirdetővel
+36 70 365 5
UI_KIT.CHARACTER_COUNTER__COMPONENT.REMAINING_SPACE__SR_ONLYUI_KIT.CHARACTER_COUNTER__COMPONENT.MAXIMUM_CHARACTER__SR_ONLY
Hasonló eladó ingatlanok Dunaharasztiban
Frissítve: 12 napja

8
94,9 M Ft 949 000 Ft/m²
Eladó sorház, Dunaharaszti
Frissítve: 20 napja

8
94,9 M Ft 949 000 Ft/m²
Eladó sorház, Dunaharaszti
Frissítve: 2 hónapja

16
94,9 M Ft 316 333 Ft/m²
Eladó családi ház, Dunaharaszti

Fedezd fel a
hasonló házakat!Még további házak Dunaharasztiban 94,9 M Ft körüli értékben
Tovább a hirdetésekhez Frissítve: 29 napja

6
99,9 M Ft 999 000 Ft/m²
Eladó sorház, Dunaharaszti
Frissítve: 29 napja

6
99,9 M Ft 1 009 091 Ft/m²
Eladó sorház, Dunaharaszti
Frissítve: 29 napja

6
99,9 M Ft 1 040 625 Ft/m²
Eladó sorház, Dunaharaszti

Töltsd fel hirdetésed ingyenesen!
Egyszerű