+17 fotó
Hirdetéskód: 8987958
Referenciaszám: M327274-5211925
Feltöltve: ma
Miskolc eladó sorház 4+2 fél szobás: 84,99 millió Ft
84,99 millió Ft
491,3 ezer Ft/m²
173 m²
356 m²
4+2 fél szoba
Eladó Ház, Miskolc
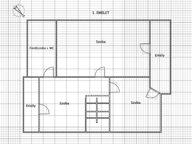
Eladó Miskolc, Bábonyibérc városrészen egy tégla falszerkezetű, jó állapotú sorház. A 2 lakószintes, nettó 255 m2-es ingatlan egy 356 m2-es, összközműves telken található. Az ingatlan alagsor (82 m2), földszint (76 m2), emelet (69 m2) + tetőtér (51 m2) szintmegosztású, a teraszok összesen 36 m2-esek. Az 1989-ben épült családi ház 2005-ben részleges átalakításon és gépészetileg teljeskörű felújításon esett át. Homlokzata 5 cm nikecell hőszigetelést kapott. 2015-2021 között napkollektoros rendszer, új kazán és fűtésrendszer, 2019-ben pedig 4,6 kw-os napelemrendszer került kiépítésre, a lakószintek klimatizáltak. A tetőtéri szinten konditerem és egy 4 személyes infraszauna található. Az ingatlan parkosított kertje automata öntözőrendszerrel ellátott, melyhez külön vízóra is tartozik. Az épület figyelőszolgálatra csatlakoztatott riasztóval ellátott. Az udvaron három gépkocsi számára van férőhely, egy a garázsban, egy a fedett-nyitott gépkocsibeállóban, egy pedig a garázs előtti felhajtón. Az új és korszerű gépészettel az elmúlt 1 éves gázfogyasztás 900 m3/ év, az elektromos fogyasztás 0 kW / év volt. Az ingatlan per és tehermentes. Amennyiben az ingatlan felkeltette érdeklődését keressen bizalommal, nézzük meg együtt. Az OTP Ingatlanpont teljes körű ügyintézéssel áll az eladók és a vevők rendelkezésére! Banki hátterünknek köszönhetően kedvezményes hitel, CSOK, babaváró ügyintézéssel segítem ügyfeleimet. Az adásvételi szerződés megkötéséhez igény szerint megbízható ügyvédi közreműködést biztosítunk és segítséget nyújtunk az adásvételhez kapcsolódó ügyek intézéséhez. Referenciaszám: M327274
Referencia szám: M327274
Tulajdonságok
Sorház
Jó állapotú
Gázkazán
2006
Nem adta meg a hirdető
Vedd fel a kapcsolatot a hirdetővel

Piskóti Tibor Lajos
OTPip - Miskolc Szemere Bertalan utca 20 - OTP Ingatlanpont Iroda
Az iroda összes hirdetése +36 70 322 2
Hitelkalkulátor
Második évtől
365 758 Ft A 13. hónaptól
7,99%
Végig fix Futamidő: 20 év Banki visszahívás
Az OTP Bank munkatársai a neked megfelelő napszakban veszik fel veled a kapcsolatot. A becslés a hirdető által megadott adatokon alapul. A jelen tájékoztatás nem minősül ajánlattételnek és nem teljes körű, az egyes feltételek a hitelbírálat eredményétől függően változhatnak. Kérjük, a részletekről tájékozódj az OTP Bank fiókjaiban vagy az OTP Bank honlapján közzétett vonatkozó Üzletszabályzatokból és Hirdetményekből.
Vedd fel a kapcsolatot a hirdetővel

Piskóti Tibor Lajos
OTPip - Miskolc Szemere Bertalan utca 20 - OTP Ingatlanpont Iroda
Az iroda összes hirdetése +36 70 322 2
Vedd fel a kapcsolatot a hirdetővel

Piskóti Tibor Lajos
OTPip - Miskolc Szemere Bertalan utca 20 - OTP Ingatlanpont Iroda
Az iroda összes hirdetése +36 70 322 2
UI_KIT.CHARACTER_COUNTER__COMPONENT.ACTUAL_CHARACTER__SR_ONLY UI_KIT.CHARACTER_COUNTER__COMPONENT.MAXIMUM_CHARACTER__SR_ONLY
Hasonló eladó ingatlanok Miskolcon
Frissítve: 21 napja
0
90 millió Ft 703,1 ezer Ft/m²
Eladó családi ház, Miskolc
Frissítve: 11 hónapja
1
88 millió Ft 488,9 ezer Ft/m²
Eladó családi ház, Miskolc
Frissítve: 21 napja
5
85,5 millió Ft 838,2 ezer Ft/m²
Eladó családi ház, Miskolc


Fedezd fel a
hasonló házakat!Még további házak Miskolcon 84,99 M Ft körüli értékben
Tovább a hirdetésekhez Frissítve: 7 napja
20
84,9 millió Ft 369,1 ezer Ft/m²
Eladó családi ház, Miskolc, Báthory sor

Frissítve: 21 napja
15
84,99 millió Ft 333,3 ezer Ft/m²
Eladó sorház, Miskolc

Frissítve: 21 napja
10
89 millió Ft 917,5 ezer Ft/m²
Eladó családi ház, Miskolc
