+11 fotó
Hirdetéskód: 8931636
Referenciaszám: HK-5175541-5175541
Frissítve: 13 napja
Tököl eladó sorház 2+1 fél szobás: 79,9 millió Ft
79,9 millió Ft
1,21 millió Ft/m²
66 m²
159 m²
2+1 fél szoba
Eladó sorház, Tököl
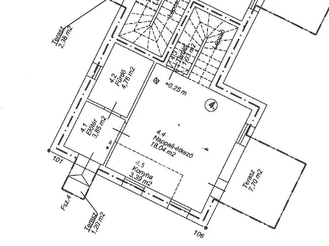
Tököl csendes, nyugodt részén eladó egy 4 lakásos sorház egyik nettó 66 nm-es, kétszintes lakása, amely ideális választás lehet mindazok számára, akik modern, kertkapcsolatos otthont keresnek. Az ingatlan teljesen elszeparált, saját telekrésszel rendelkezik, így valódi családi ház érzetét nyújtja, miközben a társasházi forma előnyeit is élvezheti. A nappali közvetlen kertkapcsolattal rendelkezik, így a természet közelsége a mindennapok részévé válik.
Az új építésű ingatlan társasházi alapító okirattal rendelkezik, megfelel az Otthon Start hitel feltételeinek, valamint CSOK Plusz is igényelhető, ami kiváló lehetőséget nyújt az otthonteremtéshez. A lakás világos, jól átgondolt elosztású, élhető terekkel.
A földszinten előszoba, nappali-konyha-étkező egy légtérben, fürdőszoba és tároló található. Az emeleten közlekedő, három külön nyíló szoba és külön WC kapott helyet.
A modern műszaki tartalomról kondenzációs gázkazán gondoskodik padlófűtéses hő leadással, az oldalfalakon 12 cm grafitos szigetelés található, a korszerű műanyag hőszigetelt nyílászárók pedig hozzájárulnak az energiatakarékos működéshez. Az udvaron autóbeállási lehetőség biztosított. Az ingatlan rövid időn belül költözhető, a fizetési feltételek pedig rugalmasak, így ideális választás lehet mindazok számára, akik gyorsan szeretnének új, modern otthonukba költözni.
A vásárlást teljes körű, díjmentes tanácsadás és helyben történő, gyors és egyszerű hitelügyintézés segíti. Ne maradjon le erről a kedvező lehetőségről, érdeklődjön bizalommal.
Az energetikai tanúsítvány készítése folyamatban van, amint rendelkezésre áll, úgy azzal a hirdetés frissítésre kerül.
Tulajdonságok
Sorház
Új építésű
Gázkazán
2026
Nem adta meg a hirdető
Vedd fel a kapcsolatot a hirdetővel
Hackenberger Rita
OTPip - Szigetszentmiklós Tököli út 19.B - OTP Ingatlanpont Iroda
Az iroda összes hirdetése +36 70 423 8
Hitelkalkulátor
Második évtől
343 853 Ft A 13. hónaptól
7,99% 8,49%
Végig fix Futamidő: 20 év Banki visszahívás
Az OTP Bank munkatársai a neked megfelelő napszakban veszik fel veled a kapcsolatot. A becslés a hirdető által megadott adatokon alapul. A jelen tájékoztatás nem minősül ajánlattételnek és nem teljes körű, az egyes feltételek a hitelbírálat eredményétől függően változhatnak. Kérjük, a részletekről tájékozódj az OTP Bank fiókjaiban vagy az OTP Bank honlapján közzétett vonatkozó Üzletszabályzatokból és Hirdetményekből.
Vedd fel a kapcsolatot a hirdetővel
Hackenberger Rita
OTPip - Szigetszentmiklós Tököli út 19.B - OTP Ingatlanpont Iroda
Az iroda összes hirdetése +36 70 423 8
Vedd fel a kapcsolatot a hirdetővel
Hackenberger Rita
OTPip - Szigetszentmiklós Tököli út 19.B - OTP Ingatlanpont Iroda
Az iroda összes hirdetése +36 70 423 8
UI_KIT.CHARACTER_COUNTER__COMPONENT.ACTUAL_CHARACTER__SR_ONLY UI_KIT.CHARACTER_COUNTER__COMPONENT.MAXIMUM_CHARACTER__SR_ONLY
Hasonló eladó ingatlanok Tökölön
Feltöltve: 1 éve
12
80,9 millió Ft 715,9 ezer Ft/m²
Eladó családi ház, Tököl

Frissítve: 10 hónapja
0
86 millió Ft 392,7 ezer Ft/m²
Eladó családi ház, Tököl
Frissítve: 2 napja
20
75,9 millió Ft 517,7 ezer Ft/m²
Eladó családi ház, Tököl


Fedezd fel a
hasonló házakat!Még további házak Tökölön 79,9 M Ft körüli értékben
Tovább a hirdetésekhez Frissítve: 22 napja
17
78,8 millió Ft 1,05 millió Ft/m²
Eladó családi ház, Tököl
Frissítve: 14 napja
20
75,9 millió Ft 519,9 ezer Ft/m²
Eladó családi ház, Tököl

Frissítve: 1 hónapja
19
80 millió Ft 1,14 millió Ft/m²
Eladó ikerház, Tököl

