+4 fotó
Hirdetéskód: 8910292
Referenciaszám: M287137-5162008
Frissítve: 14 napja
Balatonfüred eladó téglalakás 4 szobás: 171,36 millió Ft
171,36 millió Ft
979 206 Ft/m²
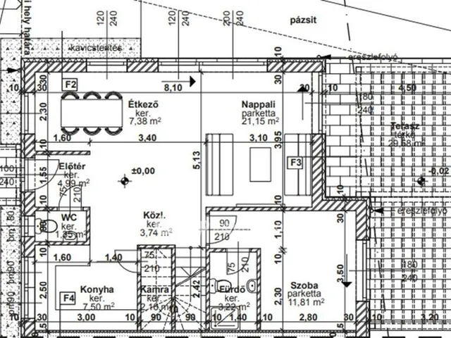
175 m²
4 szoba
földszint
Eladó Lakás, Balatonfüred
Eladó Balatonfüred Arács városrészében, csendes, kertvárosias környezetben két különálló ikerház, melyek társasházi formában kerülnek kialakításra. Az ingatlanok hegyoldali elhelyezkedésűek, Déli tájolású panoráma nélkül, ideális választást nyújtva azok számára, akik a nyugalmat, a minőségi kivitelezést és a modern élettereket részesítik előnyben.
Főbb jellemzők:
Lakásméretek:
146 m²
175 m²
2 db 184 m²-es lakás
Telek: 700 m², alapszintű kertépítéssel
Állapot: szerkezetkész, tető alatt, a belső munkálatok folyamatban
Várható átadás: 2026
Műszaki tartalom:
30 cm-es tégla falazat
15 cm hőszigetelés
Bramac cseréptető
Légkondicionálás
Riasztó- és redőny-előkészítés
Alacsony energiaigényű kialakítás
A letisztult megjelenésű, korszerű otthonok ideálisak családok számára, állandó lakhatásra vagy hosszú távú befektetésként egyaránt. Az ingatlanok hitellel is megvásárolhatók, így rugalmas finanszírozást biztosítanak.
Helyszín: Balatonfüred – Arács városrész
Amennyiben új építésű, prémium minőségű otthont keres Balatonfüreden, nyugodt környezetben, ez a lehetőség kiváló választás.
További információért és alaprajzokért keressen bizalommal!
171361000 Ft
Referencia szám: M287137
Tulajdonságok
Téglalakás
Új építésű
Egyéb
2024
Nem adta meg a hirdető
Vedd fel a kapcsolatot a hirdetővel
+36 70 393 4
Hitelkalkulátor
Második évtől
737 460 Ft A 13. hónaptól
7,99% 8,49%
Végig fix Futamidő: 20 év Banki visszahívás
Az OTP Bank munkatársai a neked megfelelő napszakban veszik fel veled a kapcsolatot. A becslés a hirdető által megadott adatokon alapul. A jelen tájékoztatás nem minősül ajánlattételnek és nem teljes körű, az egyes feltételek a hitelbírálat eredményétől függően változhatnak. Kérjük, a részletekről tájékozódj az OTP Bank fiókjaiban vagy az OTP Bank honlapján közzétett vonatkozó Üzletszabályzatokból és Hirdetményekből.
Vedd fel a kapcsolatot a hirdetővel
+36 70 393 4
Vedd fel a kapcsolatot a hirdetővel
+36 70 393 4
UI_KIT.CHARACTER_COUNTER__COMPONENT.ACTUAL_CHARACTER__SR_ONLY UI_KIT.CHARACTER_COUNTER__COMPONENT.MAXIMUM_CHARACTER__SR_ONLY
Hasonló eladó ingatlanok Balatonfüreden
Frissítve: 6 napja
13
Agro Lakópark
163,98 M Ft 2 215 946 Ft/m²
Eladó lakás, Balatonfüred

Frissítve: 14 napja
7
178,84 M Ft 971 957 Ft/m²
Eladó lakás, Balatonfüred

Frissítve: 6 napja
13
Agro Lakópark
163,98 M Ft 2 215 946 Ft/m²
Eladó lakás, Balatonfüred


Fedezd fel a
hasonló lakásokat!Még további lakások Balatonfüreden 171,36 M Ft körüli értékben
Tovább a hirdetésekhez Frissítve: 1 napja
7
178,84 M Ft 971 957 Ft/m²
Eladó lakás, Balatonfüred

Frissítve: 6 napja
13
Agro Lakópark
163,98 M Ft 2 215 946 Ft/m²
Eladó lakás, Balatonfüred

Frissítve: 14 napja
7
164,3 M Ft 1 507 335 Ft/m²
Eladó lakás, Balatonfüred

