

+13 fotó
Hirdetéskód: 8723102
Referenciaszám: 52108
Feltöltve: 6 napja
Eladó 2 szobás téglalakás 97,13 millió Ft értékben Balatonszepezden
97,13 millió Ft
1 765 922 Ft/m² *
* A m² árat a hirdető adta meg.
55 m²
2 szoba
tetőtér
Leírás
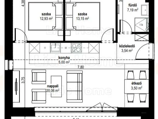
A Lido Home Balatonalmádi Ingatlaniroda eladásra kínálja az alábbi ÚJ ÉPÍTÉSŰ prémium lakást Balatonszepezden! Fő jellemzői: -Tetőtéri, 2 szoba+nappalis lakás, 23,31 m2-es terasszal, 3,25 m2 tárolóval. -A projekt 3 db épületből áll, épületenként 3 szinttel rendelkezik. -Minden lakáshoz tágas terasz tartozik, csodás balatoni kilátással, emellett a földszinti lakások saját kerttel, az emeletek lakásai pedig saját tárolóval rendelkeznek. -A teherhordó és külső falak 30 cm vastag Porotherm 30 N+F neo téglából, falazóhabarccsal készülnek, biztosítva a stabil és tartós szerkezetet. -A belső válaszfalak POROTHERM 10 N+F lapokból épülnek, cementes-mészhabarccsal falazva, a lakások optimális térbeosztásáért. -A nyílászárók fa-aluminium tokos szerkezetűek, háromrétegű üvegezéssel; a belső párkány tömörfa, a külső fémlemez burkolatú. -A belső ajtók fa tok- és szárnyszerkezetűek, míg a bejárati ajtók acél biztonsági ajtók, a maximális védelmet és eleganciát biztosítva. -Az épületben modern multi-split klímarendszer biztosítja a hűtést és fűtést, a vizesblokkokban pedig elektromos padlófűtés javítja a komfortérzést. -A lakóparkhoz 20 m² privát horgászstég is tartozik. -A precíz kivitelezés és igényes design mellett futópályák, kültéri edzőrészek biztosítják a mozgás örömét a mindennapokban. -A lakások kulcsrakészen kerülnek átadásra, prémium anyaghasználattal és modern dizájnnal! -Várható átadás: 2027 május Balatonszepezd festői, nyugodt települése és a közeli Szepezdfürdő vízparti üdülőterülete ideális választás mindazoknak, akik a Balaton közelségét és a csendes, panorámás környezetet keresik - akár állandó lakhatásra, akár befektetésre! Lido Home - Ingatlanok egy életen át!
Tulajdonságok
Téglalakás
3
Új építésű
Hőszivattyú
2027
23 m²
Nem adta meg a hirdető
Vedd fel a kapcsolatot a hirdetővel
+36 30 684 7
Hitelkalkulátor
Második évtől
417 985 Ft A 13. hónaptól
7,99% 8,49%
Végig fix Futamidő: 20 év Banki visszahívás
Az OTP Bank munkatársai a neked megfelelő napszakban veszik fel veled a kapcsolatot. A becslés a hirdető által megadott adatokon alapul. A jelen tájékoztatás nem minősül ajánlattételnek és nem teljes körű, az egyes feltételek a hitelbírálat eredményétől függően változhatnak. Kérjük, a részletekről tájékozódj az OTP Bank fiókjaiban vagy az OTP Bank honlapján közzétett vonatkozó Üzletszabályzatokból és Hirdetményekből.
Vedd fel a kapcsolatot a hirdetővel
+36 30 684 7
Vedd fel a kapcsolatot a hirdetővel
+36 30 684 7
UI_KIT.CHARACTER_COUNTER__COMPONENT.REMAINING_SPACE__SR_ONLYUI_KIT.CHARACTER_COUNTER__COMPONENT.MAXIMUM_CHARACTER__SR_ONLY
Hasonló eladó ingatlanok Balatonszepezden
Feltöltve: 6 napja

15
97,13 M Ft 1 765 922 Ft/m²
Eladó lakás, Balatonszepezd

Feltöltve: 6 napja

15
97,13 M Ft 1 765 922 Ft/m²
Eladó lakás, Balatonszepezd

Feltöltve: 6 napja

15
97,13 M Ft 1 765 922 Ft/m²
Eladó lakás, Balatonszepezd


Fedezd fel a
hasonló lakásokat!Még további lakások Veszprém megyében 97,13 M Ft körüli értékben
Tovább a hirdetésekhez Feltöltve: 6 napja

15
97,13 M Ft 1 765 922 Ft/m²
Eladó lakás, Balatonszepezd

Feltöltve: 6 napja

15
97,13 M Ft 1 765 922 Ft/m²
Eladó lakás, Balatonszepezd

Frissítve: 6 napja

20
98 M Ft 2 000 000 Ft/m²
Eladó lakás, Balatonfüred


Töltsd fel hirdetésed ingyenesen!
Egyszerű