+17 fotó
Hirdetéskód: 8908199
Referenciaszám: 125294
Frissítve: 12 napja
Békéscsaba eladó téglalakás 3 szobás: 56,9 millió Ft
56,9 millió Ft
849 254 Ft/m²
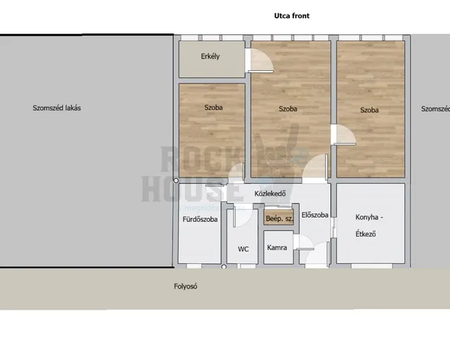
67 m²
3 szoba
3. emelet
ELADÓ! Békéscsaba belvárosában felújított, erkélyes, 3 szobás téglalakás!
Békés vármegye, Békéscsaba belvárosi részén, az Andrássy úton kínálok megvételre egy 67 m²-es, teljes körűen felújított, erkélyes téglalakást.
Az ingatlan a liftes, rendezett társasház harmadik emeletén található, ahonnan szép, panorámás kilátás nyílik a belvárosra.
A lakás teljesen felújított, igényes kialakítású. A három külön nyíló szoba, a gépesített konyha, a sarokkádas fürdőszoba, a külön WC és a kamra praktikus és élhető tereket biztosítanak. A külső műanyag nyílászárók elektromos redőnnyel és szúnyoghálóval felszereltek, a helyiségek minőségi burkolatot kaptak, a fűtést gázcirkó és hűtő-fűtő klíma biztosítja. A fenntartása igen kedvező, a havi közös költség 11.400 Ft.
Az ingatlan elhelyezkedése kiváló: a város központi része néhány perc sétával elérhető, a közelben bevásárlási lehetőségek, gyógyszertárak, iskolák, bankok és éttermek, szórakozóhelyek találhatók. A környék biztonságos (az utca bekamerázott), rendezett, lakóközössége kulturált, a parkolás a ház mögött kedvezményesen megoldható.
Ez az otthon ideális választás mindazoknak, akik modern, azonnal költözhető, belvárosi lakást keresnek, vagy befektetőknek, akik értékálló ingatlanba szeretnének beruházni.
Most szeretnél az épületben körülnézni? Megteheted!
Nyisd meg a következő linket: https://tinyurl.com/2mwnz8ca
Személyesen is megtekintené az ingatlant?
Előre egyeztetett időpontban személyesen is megmutatjuk!
Rock House Ingatlan Iroda – Teljes körű ügyintézés egy helyen!
Szerződéskötés megbízható ügyvéddel Gyors energetikai tanúsítvány Közjegyzői nyilatkozatok, ingatlanjogi segítség.
Magyar és külföldi ügyfeleink részére folyamatosan keresünk ELADÓ és KIADÓ ingatlanokat!
Érdeklődés esetén a lakás előre egyeztetett időpontban megtekinthető. Keressen bizalommal – akár hétvégén is!
Tulajdonságok
Téglalakás
Újszerű
Nem adta meg a hirdető
Vedd fel a kapcsolatot a hirdetővel
+36 20 969 1
Hitelkalkulátor
Második évtől
244 872 Ft A 13. hónaptól
7,99%
Végig fix Futamidő: 20 év Banki visszahívás
Az OTP Bank munkatársai a neked megfelelő napszakban veszik fel veled a kapcsolatot.Hitelfelvétel esetén akár egy héttel rövidebb lehet az ügyintézés.
Ez az ingatlan a nálunk meglévő adatok alapján azonnali értékbecslésre alkalmas lehet.
A becslés a hirdető által megadott adatokon alapul. A jelen tájékoztatás nem minősül ajánlattételnek és nem teljes körű, az egyes feltételek a hitelbírálat eredményétől függően változhatnak. Kérjük, a részletekről tájékozódj az OTP Bank fiókjaiban vagy az OTP Bank honlapján közzétett vonatkozó Üzletszabályzatokból és Hirdetményekből.
Vedd fel a kapcsolatot a hirdetővel
+36 20 969 1
Vedd fel a kapcsolatot a hirdetővel
+36 20 969 1
UI_KIT.CHARACTER_COUNTER__COMPONENT.ACTUAL_CHARACTER__SR_ONLY UI_KIT.CHARACTER_COUNTER__COMPONENT.MAXIMUM_CHARACTER__SR_ONLY
Hasonló eladó ingatlanok Belváros városrészben
Frissítve: 3 napja
20
51,9 M Ft 610 588 Ft/m²
Eladó lakás, Békéscsaba, Belváros
Frissítve: 12 napja
20
58 M Ft 542 057 Ft/m²
Eladó lakás, Békéscsaba, Belváros

Frissítve: 3 napja
13
52,5 M Ft 921 053 Ft/m²
Eladó lakás, Békéscsaba, Belváros

Fedezd fel a
hasonló lakásokat!Még további lakások Békéscsabán 56,9 M Ft körüli értékben
Tovább a hirdetésekhez Frissítve: 2 hónapja
14
51,9 M Ft 513 861 Ft/m²
Eladó lakás, Békéscsaba, Belváros
Frissítve: 13 napja
20
56,9 M Ft 849 254 Ft/m²
Eladó lakás, Békéscsaba, Belváros
Frissítve: 3 napja
9
61,9 M Ft 711 494 Ft/m²
Eladó lakás, Békéscsaba, Belváros
