+11 fotó
Hirdetéskód: 8944949
Referenciaszám: M325384-5184723
Frissítve: 6 napja
Budapest II. kerület eladó téglalakás 2+1 fél szobás: 154,9 millió Ft
154,9 millió Ft
1,84 millió Ft/m²
84 m²
2+1 fél szoba
2. emelet
Eladó Lakás, Budapest 2. ker.
Budai életérzés a Rózsadomb lábánál. Tágas, erkélyes családi otthon a II. kerületben
Eladó egy különleges hangulatú, Bauhaus stílusú társasház legfelső szintjén található lakás a II. kerületi Kút utcában, a budai oldal egyik legélhetőbb, legkeresettebb részén.
Ez az otthon tökéletes választás mindazok számára, akik szeretnék ötvözni a városi kényelmet a nyugodt, zöld budai környezettel, és ideális lehet családok számára, akik hosszú távra terveznek.
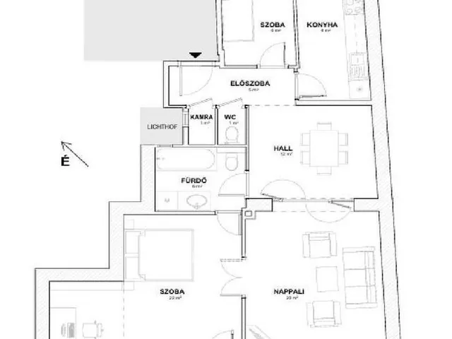
Főbb jellemzők: 84 nm alapterület, 2 + fél szoba + hall (könnyen alakítható akár 3?4 szobássá), erkélyes, világos terek, 2,9 m belmagasság, két tájolás (DNY,ÉK) egész napos természetes fény, legfelső szint, nincs felső szomszéd, saját 6 nm-es pincetároló, közös, zöld belső kert használata.
Budai életérzés, minden karnyújtásnyira. A lakás elhelyezkedése kivételes: pár perc sétával elérhető minden, ami a kényelmes mindennapokhoz szükséges. miközben az utca csendes, nyugodt, átmenő forgalomtól szinte mentes. A közelben: Margit híd, Széll Kálmán tér, Mammut bevásárlóközpont, Fény utcai piac, Millenáris park, Margit-sziget.
Ez a környék tökéletes egyensúlyt teremt a városi pezsgés és a természet közelsége között.
Családra tervezve: a lakás elrendezése és alakíthatósága miatt ideális választás családoknak. Külön nyíló, jól szeparálható szobák, könnyen bővíthető szobaszám (akár 3 vagy 4 szobára), világos, élhető közösségi terek, biztonságos, barátságos lakóközösség
A nagy ablakoknak köszönhetően akár több fürdőszoba kialakítása is megoldható, így a lakás hosszú távon is kényelmes életteret biztosít.
Épület: 1940-es években épült, Bauhaus jellegű társasház, hőszigetelt, karbantartott állapot, 12 lakásos, csendes közösség, nagy, zöld belső kert, felújított, világos lépcsőház.
Lehetőség és érték egyben: a lakás jó állapotú, igény szerint korszerűsíthető, ugyanakkor már most is otthonos és azonnal költözhető. Kiváló választás azoknak, akik saját igényeikre formálható, értékálló budai otthont keresnek.
Az energetikai tanúsítvány készítése folyamatban van, amint rendelkezésre áll, úgy azzal a hirdetés frissítésre kerül.
Tulajdonságok
Téglalakás
Jó állapotú
Házközponti
1940
Nem adta meg a hirdető
Vedd fel a kapcsolatot a hirdetővel

+36 70 367 6
Hitelkalkulátor
Második évtől
666 619 Ft A 13. hónaptól
7,99%
Végig fix Futamidő: 20 év Banki visszahívás
Az OTP Bank munkatársai a neked megfelelő napszakban veszik fel veled a kapcsolatot.Hitelfelvétel esetén akár egy héttel rövidebb lehet az ügyintézés.
Ez az ingatlan a nálunk meglévő adatok alapján azonnali értékbecslésre alkalmas lehet.
A becslés a hirdető által megadott adatokon alapul. A jelen tájékoztatás nem minősül ajánlattételnek és nem teljes körű, az egyes feltételek a hitelbírálat eredményétől függően változhatnak. Kérjük, a részletekről tájékozódj az OTP Bank fiókjaiban vagy az OTP Bank honlapján közzétett vonatkozó Üzletszabályzatokból és Hirdetményekből.
Vedd fel a kapcsolatot a hirdetővel

+36 70 367 6
Vedd fel a kapcsolatot a hirdetővel

+36 70 367 6
UI_KIT.CHARACTER_COUNTER__COMPONENT.ACTUAL_CHARACTER__SR_ONLY UI_KIT.CHARACTER_COUNTER__COMPONENT.MAXIMUM_CHARACTER__SR_ONLY
Hasonló eladó ingatlanok Budapest II. kerületben
Frissítve: ma
17
164 millió Ft 1,98 millió Ft/m²
Eladó lakás, Budapest II. kerület

Frissítve: 23 napja
8
162 millió Ft 1,5 millió Ft/m²
Eladó lakás, Budapest II. kerület

Frissítve: ma
8
162 millió Ft 1,5 millió Ft/m²
Eladó lakás, Budapest II. kerület


Fedezd fel a
hasonló lakásokat!Még további lakások Budapest II. kerületben 154,9 M Ft körüli értékben
Tovább a hirdetésekhez Frissítve: 23 napja
17
164 millió Ft 1,98 millió Ft/m²
Eladó lakás, Budapest II. kerület

Frissítve: 15 napja
17
145 millió Ft 1,61 millió Ft/m²
Eladó lakás, Budapest II. kerület
Frissítve: 21 napja
20
158 millió Ft 1,36 millió Ft/m²
Eladó lakás, Budapest II. kerület

