+5 fotó
Zenga
Premier
Hirdetéskód: 8967014
Referenciaszám: U0049661
Feltöltve: ma
Budapest III. kerület eladó téglalakás 4 szobás: 238 millió Ft
238 millió Ft
2 735 632 Ft/m²
87 m²
4 szoba
földszint

Friss hirdetések, amiket nem találsz meg más ingatlankereső portálon.
Fedezd fel elsőként a Zenga Premier címkés eladó ingatlanokat! További részletek A Duna House, OTP Ingatlanpont, Otthon Centrum és további hálózatok új, kizárólagos hirdetéseinek nagy részét a zenga.hu és koltozzbe.hu ingatlankeresőn láthatod legelőször, és a feltöltéstől két hétig nem érhetők el más ingatlankeresőn!
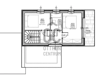
ÚJÉPÍTÉSŰ, KÉTSZINTES, KÉT TERASZOS LAKÁS ELADÓ A III. KERÜLETBEN – TESTVÉRHEGYEN
Budapest III. kerületének egyik legkedveltebb, zöldövezeti részén, Testvérhegyen kínálunk megvételre egy újépítésű, kétszintes társasházi lakást, amely tökéletes választás mindazok számára, akik modern, élhető tereket keresnek nyugodt, természetközeli környezetben.
Az ingatlan 87,4 m²-es, (brutto 108 m2) 4 szobás, praktikus, családbarát elosztással. A kétszintes kialakításnak köszönhetően a nappali és a privát terek jól elkülönülnek, így ideális akár nagyobb család számára is. A lakásban 2 fürdőszoba került kialakításra, ami jelentősen növeli a mindennapi komfortot.
Az otthon egyik legnagyobb értéke a két különálló, összesen közel 41 m²-es TERASZKAPCSOLAT:
egy 33,11 m²-es tágas terasz, amely kiváló helyszín pihenésre, étkezésre vagy baráti összejövetelekre
valamint egy 8,25 m²-es második terasz, amely még tovább növeli az életteret
A modern műszaki tartalom részeként az ingatlan hőszivattyús fűtési rendszerrel rendelkezik, amely energiatakarékos, környezetbarát működést és alacsony fenntartási költségeket garantál.
A lakáshoz tartozó garázs opcionálisan megvásárolható, ára 10 millió forint, így a parkolás kényelmesen és biztonságosan megoldható.
Testvérhegy a III. kerület egyik legértékállóbb és legkeresettebb része: csendes, zöldövezeti utcák, tiszta levegő és nyugodt, családias környezet jellemzi. A természet közelsége – kirándulóhelyek, zöld területek – ideális életminőséget biztosít, miközben a város könnyedén elérhető. A közelben minden fontos infrastruktúra megtalálható: bevásárlási lehetőségek, iskolák, óvodák, valamint kiváló közlekedési kapcsolatok.
Ez az ingatlan tökéletes választás mindazok számára, akik egy modern, kétszintes, nagy teraszos, energiatakarékos otthont keresnek Budapest egyik legjobb adottságú lokációjában.
Egyedi igényekre szabott lakáshitelekkel állunk rendelkezésére.
Bankfüggetlen Hitelcentrumunk az országban elérhető összes bank és hitelintézet ajánlatát versenyezteti az Ön számára díjmentesen.
Munkatársaink nagy szakmai tapasztalattal, teljes körű CSOK PLUSZ és OTTHON START PROGRAM ügyintézéssel várják Önt előre egyeztetett időpontban akár a normál munkaidő után is.
Tulajdonságok
Téglalakás
Új építésű
Hőszivattyú
2026
8,3 m²
33,1 m²
Nem adta meg a hirdető
Vedd fel a kapcsolatot a hirdetővel
+36 70 465 6
Hitelkalkulátor
Második évtől
1 024 243 Ft A 13. hónaptól
7,99% 8,49%
Végig fix Futamidő: 20 év Banki visszahívás
Az OTP Bank munkatársai a neked megfelelő napszakban veszik fel veled a kapcsolatot.Hitelfelvétel esetén akár egy héttel rövidebb lehet az ügyintézés.
Ez az ingatlan a nálunk meglévő adatok alapján azonnali értékbecslésre alkalmas lehet.
A becslés a hirdető által megadott adatokon alapul. A jelen tájékoztatás nem minősül ajánlattételnek és nem teljes körű, az egyes feltételek a hitelbírálat eredményétől függően változhatnak. Kérjük, a részletekről tájékozódj az OTP Bank fiókjaiban vagy az OTP Bank honlapján közzétett vonatkozó Üzletszabályzatokból és Hirdetményekből.
Vedd fel a kapcsolatot a hirdetővel
+36 70 465 6
Vedd fel a kapcsolatot a hirdetővel
+36 70 465 6
UI_KIT.CHARACTER_COUNTER__COMPONENT.ACTUAL_CHARACTER__SR_ONLY UI_KIT.CHARACTER_COUNTER__COMPONENT.MAXIMUM_CHARACTER__SR_ONLY
Hasonló eladó ingatlanok Testvérhegy városrészben
Frissítve: 4 napja
20
225 M Ft 1 814 516 Ft/m²
Eladó lakás, Budapest III. kerület, Testvérhegy

Frissítve: 2 napja
20
225 M Ft 1 814 516 Ft/m²
Eladó lakás, Budapest III. kerület, Testvérhegy

Feltöltve: ma
7
258 M Ft 2 529 412 Ft/m²
Eladó lakás, Budapest III. kerület, Testvérhegy


Fedezd fel a
hasonló lakásokat!Még további lakások Budapest III. kerületben 238 M Ft körüli értékben
Tovább a hirdetésekhez Frissítve: 4 napja
20
225 M Ft 1 814 516 Ft/m²
Eladó lakás, Budapest III. kerület, Testvérhegy

Frissítve: 3 napja
13
219,9 M Ft 1 773 387 Ft/m²
Eladó lakás, Budapest III. kerület, Testvérhegy

Frissítve: 4 napja
13
219,9 M Ft 1 773 387 Ft/m²
Eladó lakás, Budapest III. kerület, Testvérhegy

